
Vantaan asuntomessut: kohteet 32–41
Vuoden 2015 asuntomessuilla Vantaalla on yhteensä 41 kohdetta, joista Meidän talo esittelee kaikki 32 pientalokohdetta.
Kohde 32: Plania Amanda
5h + k + khh + s 161 m²
Näytteilleasettaja: Planiatalo Arkkitehti: Arkkitehtitoimisto Eero Korhonen Energialuokka: B E-luku: 101 Arvioitu lämmitysenergiankulutus (kWh/vuosi): 6 653 Runkomateriaali: Puurunko, suurelementti Lämmitysjärjestelmä: Kaukolämpö
Erityistä: Loiva 1-lappeinen katto tuo puutaloon modernin ilmeen. Julkisivuihin on saatu elävyyttä kapealla tehostepaneelilla. Tilankäytön lähtökohtana oli tontin koko ja muoto sekä tilojen käytettävyys. Sisätiloihin on haettu valoisuutta, avaruutta ja selkeyttä. Sisustuksen tavoitteena oli luoda normaalista asuntomessukodista poikkeava kotoisa ja asuttava sisustus. Sisustuksessa on pinnoissa ja tekstiileissä nostettu esiin erilaisia struktuureja. Luonnonmateriaalit ovat tämän kodin sisustuksessa ”se juttu”. Olohuoneen värimaailma on ihanan pastellimaisen utuinen ja tekstiileiden kuoseissa on mahtavaa vesivärimäisyyttä. Vaalea tammi ja avohyllyt tuovat valkoiseen keittiöön uuden ja trendikkään ilmeen, jonka viimeistelee ohut ja mustaksi läpivärjätty laminaattitaso.
Pihasta suunniteltiin helppohoitoinen, moderni piha lapsiperheelle. Pienelle kaupunkipihalle on jätetty vapaata tilaa leikeille. Takapihalla luonnollisesti kaareutuva istutusalue puu- perenna- ja koristeheinäistutuksineen elävöittää oleskelualuetta. Etupihan suoraviivaisempaa muotokieltä korostavat pihan katutilasta rajaavat rungolliset pikkupuut.






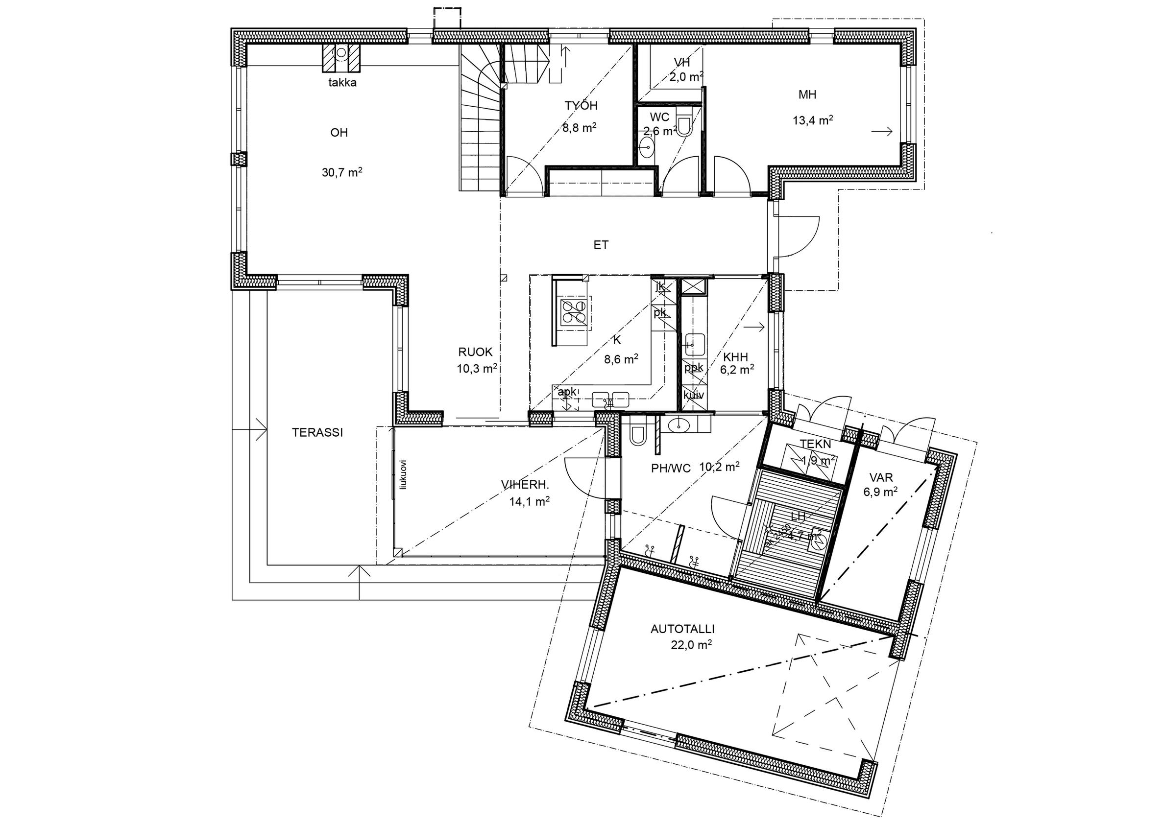
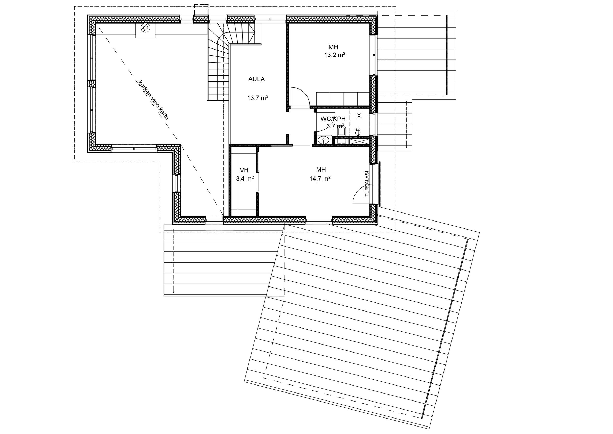
Kohde 33: Panthera Tigris
5 h + k + rt + khh +s 153 m²
Näytteilleasettaja: HEVI kivitalot, puh. 040 731 7173 Arkkitehti: Lauri Pöyhönen Energialuokka: A E-luku: 78 Arvioitu lämmitysenergiankulutus (kWh/vuosi): 9 900 Runkomateriaali: kivi (FinnEPS-valuharkko) Lämmitysjärjestelmä: kaukolämpö, aurinkokeräimet
Erityistä: Panthera Tigris on viisihenkiselle perheelle suunniteltu kompakti kaksikerroksinen kivitalo, joka lumoaa tiikerimäisellä linjakkuudellaan ja yksilöllisyydellään. Talon persoonallista arkkitehtuuria täydentävät sisätilojen erilaiset struktuuripinnat ja valaistus, joka osaltaan edustaa tulevaisuuden energiatehokasta ja asumismukavuutta lisäävää linjaa.
Talo kätkee sisäänsä käytännöllisiä yksityiskohtia: mm. säilytysratkaisujen monipuolisuus ja tilojen muunneltavuus sekä helppohoitoisuus. Alakerta on perheen yhteisille hetkille suunniteltu toimiva ja valoisa kokonaisuus, kaarevine saunaosastoineen. Puolipyöreä sauna kutsuu pesämäisellä muodollaan ja tunnelmallaan löylyttelijöitä syleilyynsä. Yläkerrassa on mm. ylellinen ja rohkeasti avoimella kaariseinällä toteutettu päämakuuhuone.
Sisustus on rohkea ja paikka paikoin jopa humoristinen, mutta silti tyylikäs ja ehyt kokonaisuus, jonka on tarkoitus tuoda iloa ja viihtyisyyttä arkeen.
Pihan ideana kauneusarvojen lisäksi on helppohoitoisuus. Kun kasvit on oikein valittu, kasvupaikat jouhevasti nurmikonleikkuu huomioiden muotoillut, ja niiden rajauksista huolehdittu maahan asennettavin reunuksin, pihan pitäminen siistinä on helppoa. Rikkakasviongelmaa ehkäisee puunkuorikatteen alle asennettu maatuva katekangas. Pihan kauneimmat koristepensaat ja -puut on sijoitettu tontin reunoille siten, että terassin suunnalta näkyy katseltavaa kaikkina vuodenaikoina. Pihalla on nurmikkoaukio pelejä varten, aamukahvipaikka omenapuun alla patiolla, ja sen yhteydessä on pieni herukka- ja mansikkamaa. Hyötykasviharrastusta varten on oma alueensa, johon on sijoitettu viljelylaatikot ja istutuspöytä. Päällystekiven materiaaliksi valikoitui uusi kierrätysinnovaatio Puukivi: puukuitua sisältävä betonikivi.






Kohde 34: Urban Villa 2
5 h + k +khh + s + ullakkohuone 116,5 m²
Näytteilleasettaja: ATV Invest & Co, puh. 040 371 6598 Arkkitehti: Olli Jokinen Energialuokka: C E-luku: 155 Arvioitu lämmitysenergiankulutus (kWh/vuosi): 8 033 Runkomateriaali: kivi (Harkkoblock elementtijärjestelmä/eristeharkko EMHU-380) Lämmitysjärjestelmä: kaukolämpö
Erityistä: Kansainvälistä arkkitehtuuria urbaanille perheelle. Talo edustaa kubistista arkkitehtuuria. Perusmuodoltaan rakennus on kuutiomainen, joka on jaoteltu lohkomalla ja värejä käyttämällä kolmeen osaan. Osia sitoo toisiinsa niiden välinen valoisa käytävämäinen tila. Minimalistinen arkkitehtuuri luo rakennukseen staattisen, rauhallisen ja arvokkaan tunnelman. Toiminnallisesti talo on jaettu kahteen kerrokseen. Maantasokerros on varattu aktiiviselle elämälle ja toinen kerros on varattu levolle ja puhtaudelle. Ylimpänä on vielä pieni tornihuone, jonka kautta on kulku kattoterassille, joka on tarkoitettu urbaanille, yksityiselle vapaa-ajalle.
Piha korostaa luonnon monimuotoisuutta. Piha on myös esteettinen kokemus, jossa brittiläisen puutarhatyylin kerroksellisuus ja kasvit ovat pääroolissa. Kokonaisuutena piha on helppohoitoinen. Katolla on kukkiva ketoviherkatto, jonka toteutuksessa on mukana myös Helsingin yliopiston Viides ulottuvuus – viherkattotutkimusohjelma.




Kohde: 35 Urban Villa 1
5h + k +khh+ s + tornihuone 116,5 m²
Näytteilleasettaja: ATV Invest & Co., puh. 040 371 6598 Arkkitehti: Olli Jokinen Energialuokka: C ET-luku: 155 Arvioitu lämmitysenergiankulutus (kWh/vuosi): 8 033 Runkomateriaali: kivi (Harkkoblock elementtijärjestelmä/eristeharkko EMHU-380) Lämmitysjärjestelmä: kaukolämpö
Erityistä: Kansainvälistä arkkitehtuuria urbaanille perheelle. Talo edustaa kubistista arkkitehtuuria. Perusmuodoltaan rakennus on kuutiomainen, joka on jaoteltu lohkomalla ja värejä käyttämällä kolmeen osaan. Osia sitoo toisiinsa niiden välinen valoisa käytävämäinen tila. Minimalistinen arkkitehtuuri luo rakennukseen staattisen, rauhallisen ja arvokkaan tunnelman. Toiminnallisesti talo on jaettu kahteen kerrokseen. Maantasokerros on varattu aktiiviselle elämälle ja toinen kerros on varattu levolle ja puhtaudelle. Ylimpänä on vielä pieni tornihuone, jonka kautta on kulku kattoterassille, joka on tarkoitettu urbaanille, yksityiselle vapaa-ajalle.
Piha korostaa luonnon monimuotoisuutta. Piha on myös esteettinen kokemus, jossa brittiläisen puutarhatyylin kerroksellisuus ja kasvit ovat pääroolissa. Kokonaisuutena piha on helppohoitoinen. Katolla on kukkiva ketoviherkatto, jonka toteutuksessa on mukana myös Helsingin yliopiston Viides ulottuvuus – viherkattotutkimusohjelma.




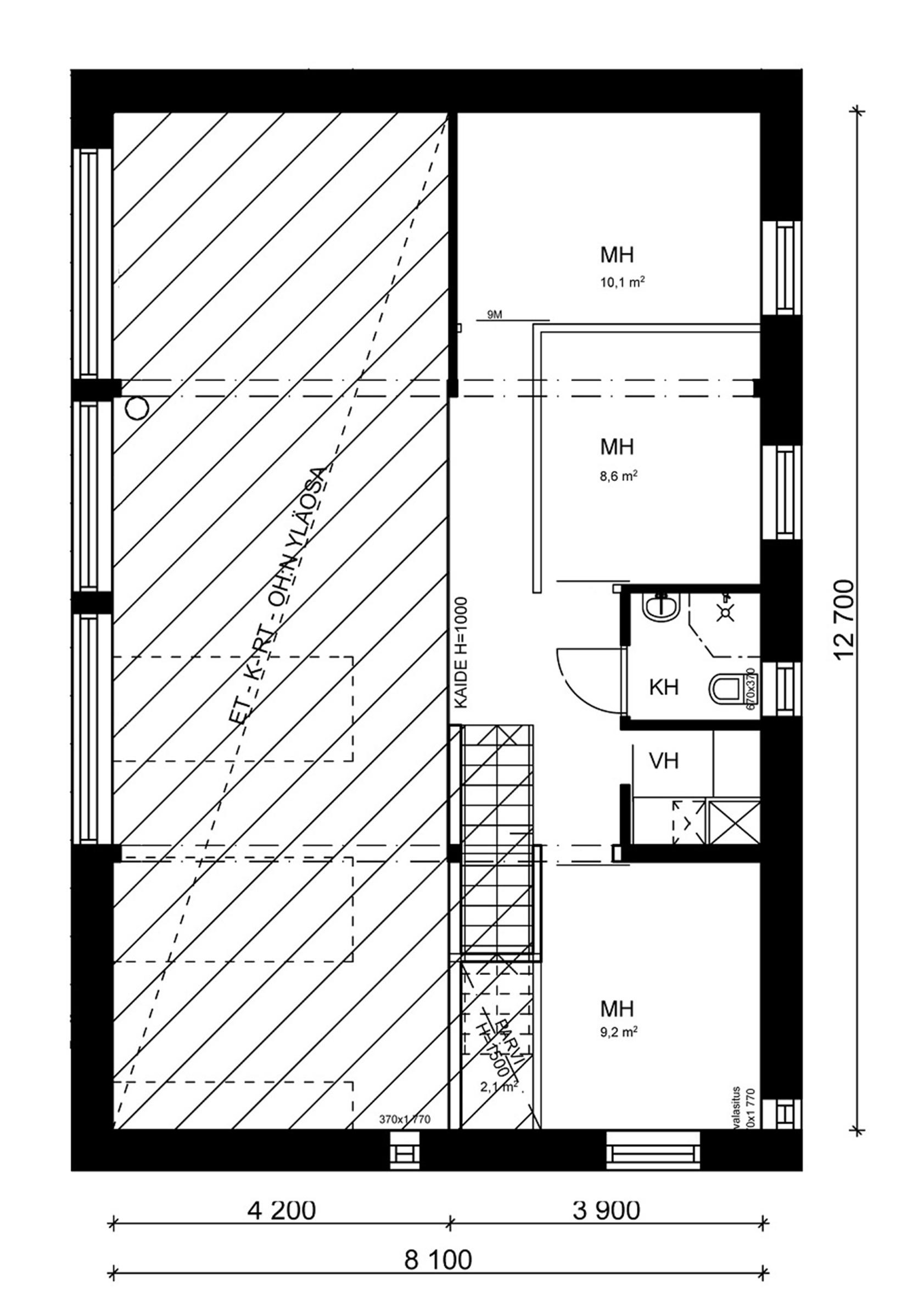
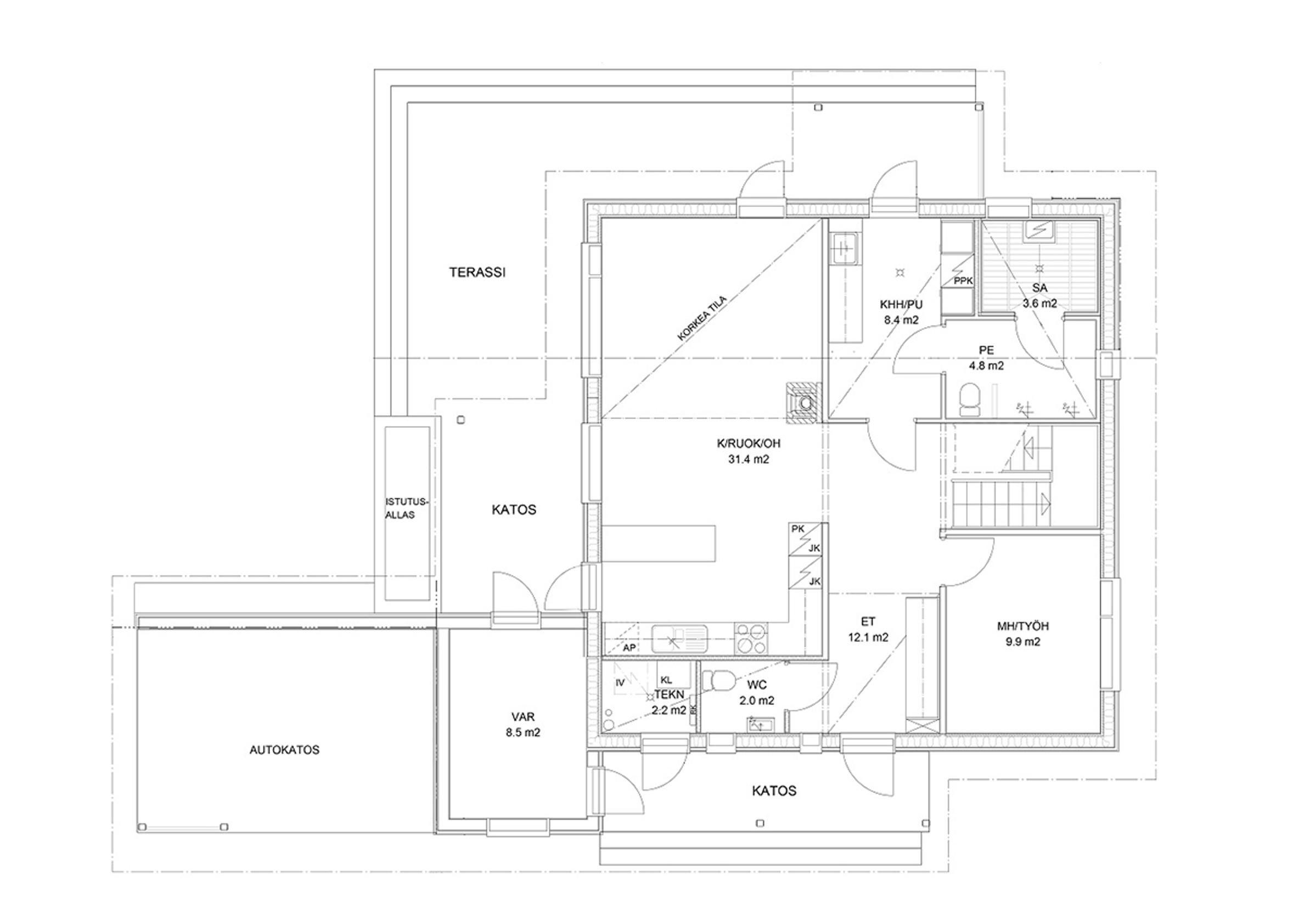
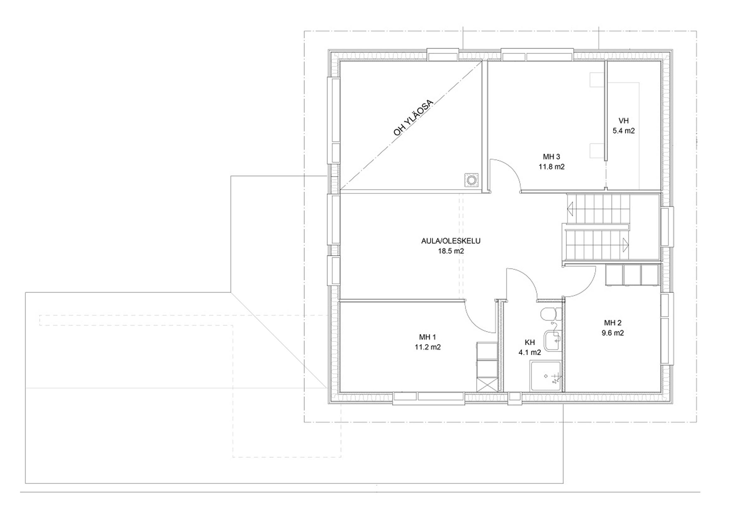
Kohde 36: Jämerä-Leija
5h + k + khh + s 154 m²
Näytteilleasettaja: Aeroc Jämerä, puh. 029 009 2270 Arkkitehti: Mika Rahunen / Arkkitehtuuritoimisto Sintonen-Rahunen-Karjalainen Energialuokka: C E-luku: 136 Arvioitu lämmitysenergiankulutus (kWh/vuosi): 24 993 Runkomateriaali: kivi, höyrykarkaistu kevytbetoni Lämmitysjärjestelmä: kaukolämpö
Erityistä: Talo on suunniteltu yksilöllisesti asukkaiden tarpeisiin. Alapohja, ulko- ja sisäseinät, portaat, välipohja ja yläpohja ovat höyrykarkaistua kevytbetoni, jolloin ei tarvita erillistä lämmöneristettä. Höyrysuluttomat kevytbetoniseinät tasaavat sisäilman kosteutta, minkä ansiosta huoneilma ei ole liian kuivaa lämmityskauden aikana. Talon sijoittelussa tontille on huomioitu ilmansuunnat. Ensimmäisessä kerroksessa on kahden kerroksen korkuinen oleskelu (et/k/ruok./oh) sekä vanhempien makuuhuone, jonka yhteydessä pukeutumistila, pesuhuone ja apukeittiö. Toinen kerros on lasten valtakuntaa, jossa hauska lasikaiteeseen kiinnitetty läksyjentekopaikka. Sauna ja ”viherhuone” ovat omassa siivessään ensimmäisessä kerroksessa.
Piha on suunniteltu moderniksi citypihaksi.






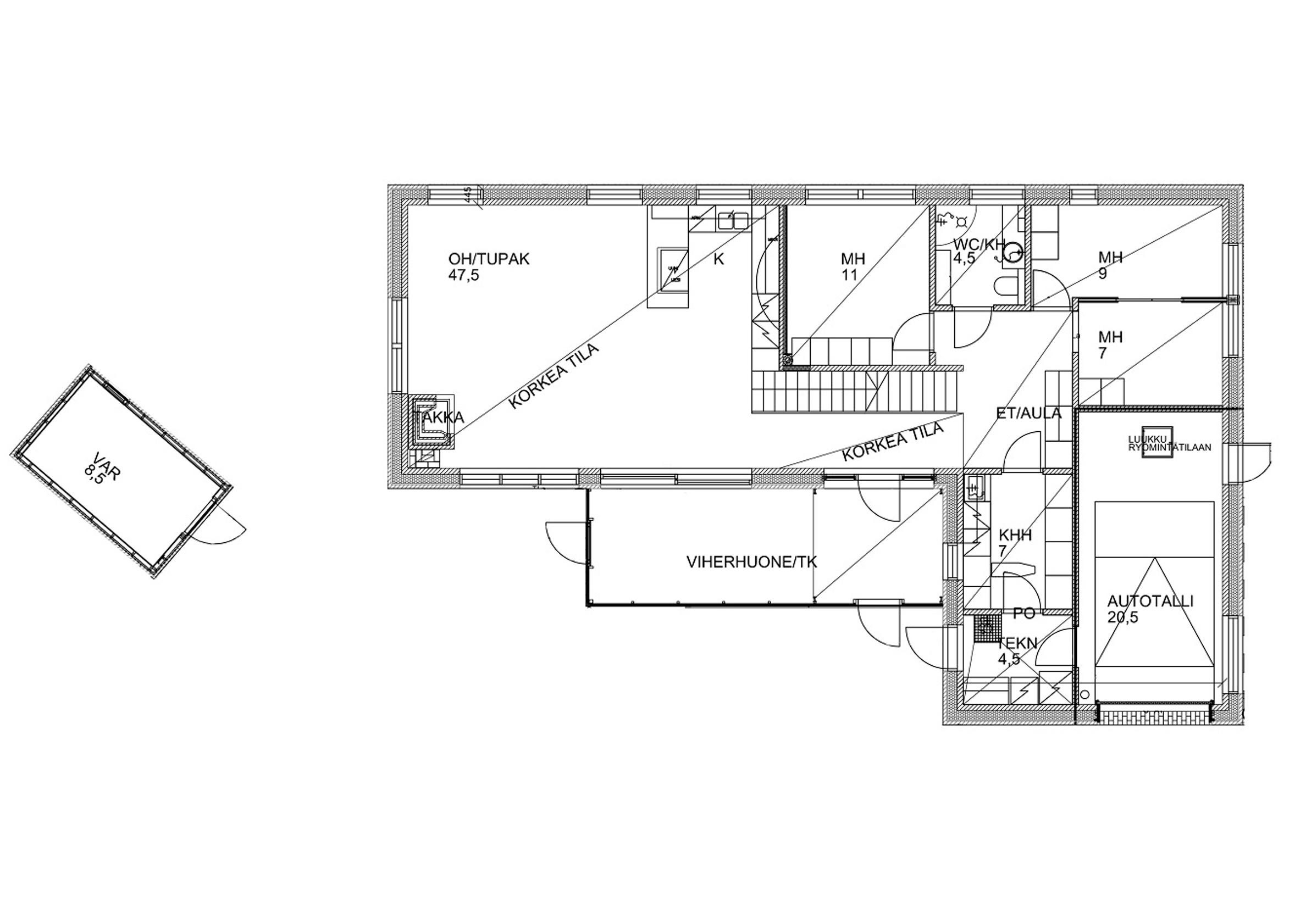
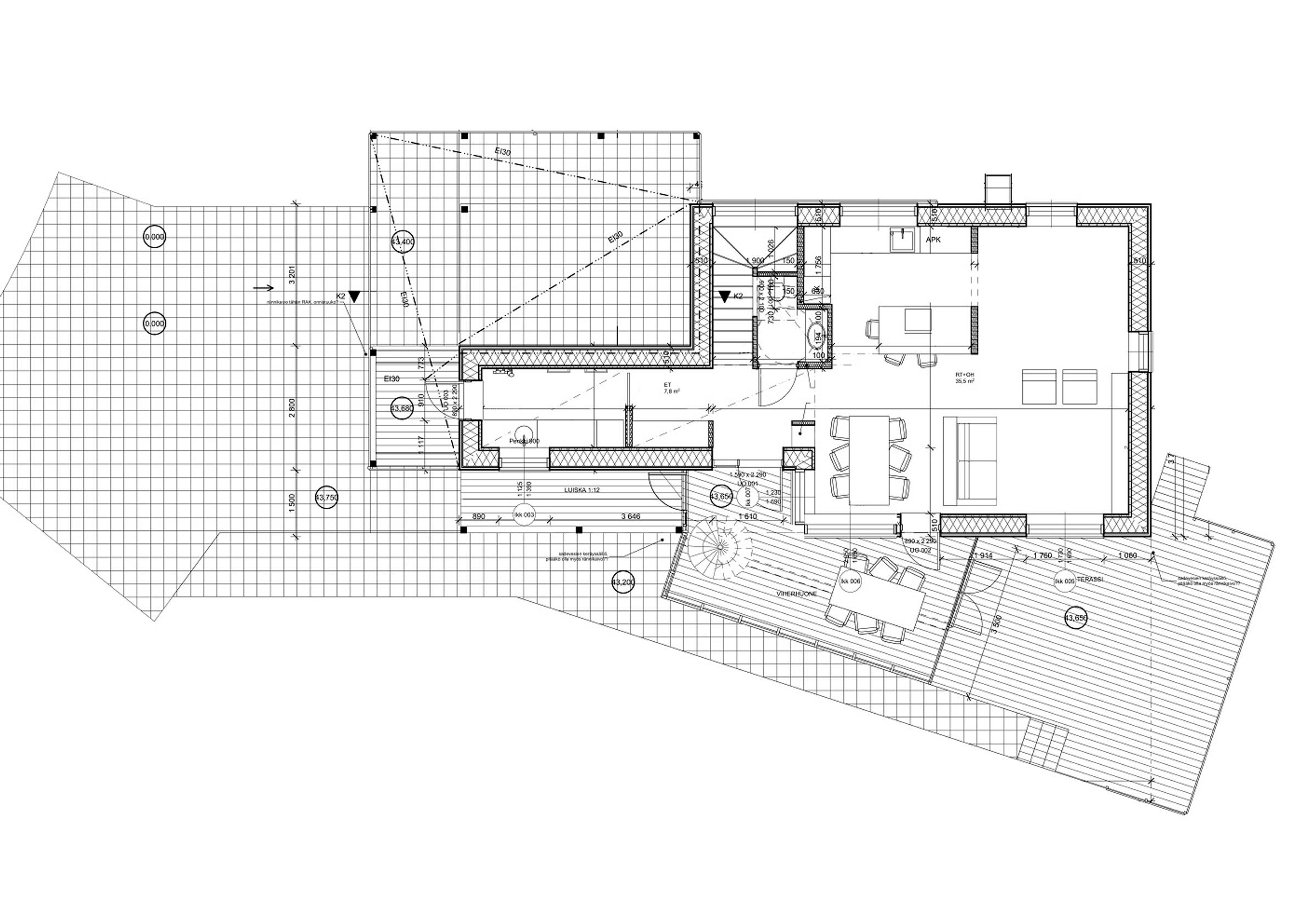
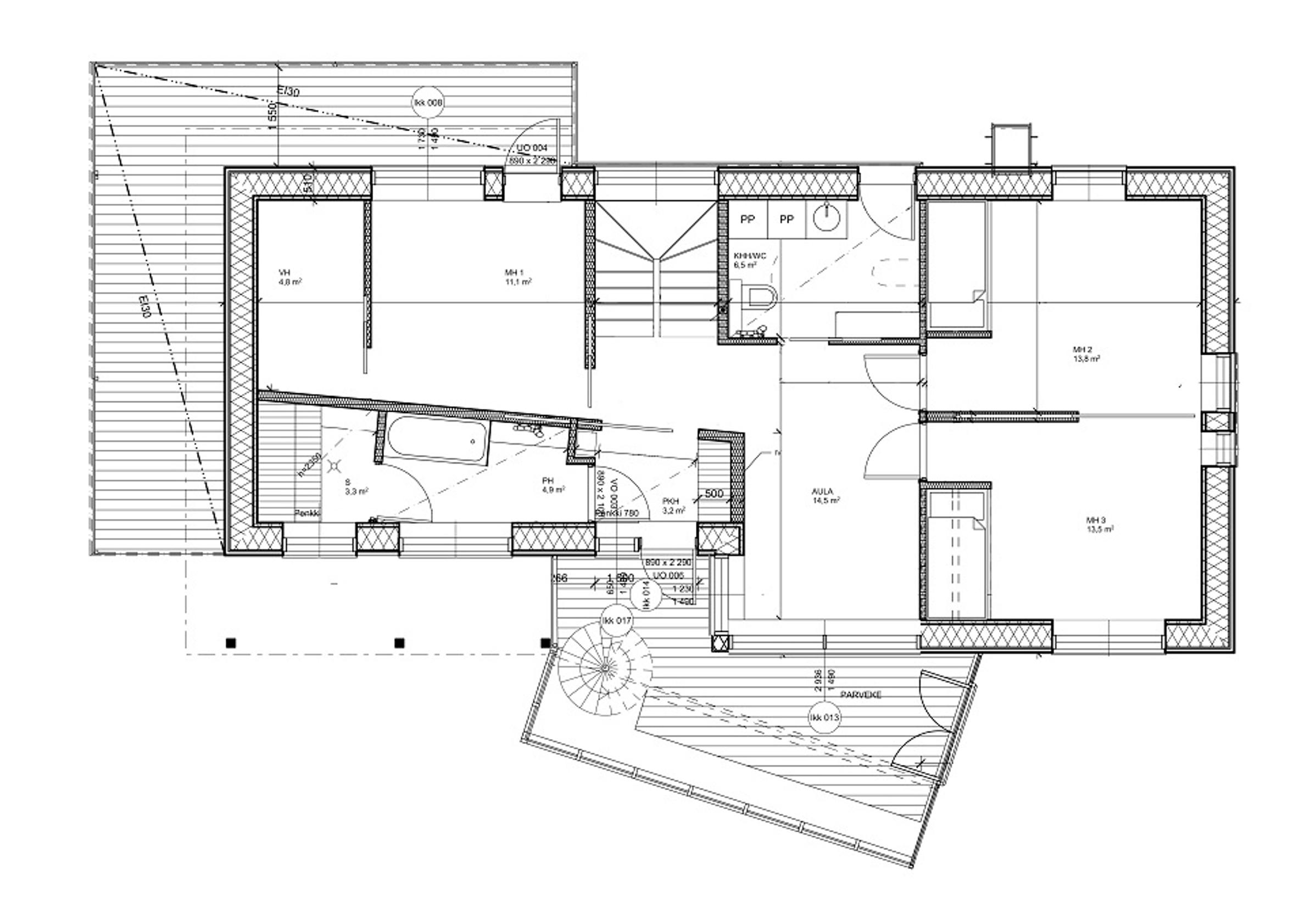
Kohde 37: Terca Tiger
6h + k + khh + s + viherhuone 180 m²
Näytteilleasettaja: Wienerberger, puh. 020 748 9200 Arkkitehti: Visionar Oy / Jorma Öhman Energialuokka: B E-luku: 100 Arvioitu lämmitysenergiankulutus (kWh/vuosi): 8 264 Runkomateriaali: Tiili Lämmitysjärjestelmä: Maalämpö
Erityistä: Täystiilisen Terca-ulkoseinärakenteen ja SPU-eristeen yhdistelmällä ulkoseinän U-arvo on 0,11 W/m2K. Tiiliverhous varaa lämpöä ja tasaa lämmönvaihtelua ja alentaa siten energiakustannuksia jopa 8 % lämmityskaudella. Energiataloudellisuutta parantavat myös lämmitysmuodoksi valittu maalämpö sekä lämpökatto, jossa aurinkokeräimet on integroitu teräskatteeseen. Tiilitalo on alusta alkaen suunniteltu rakentajaperheen asumistarpeita ja harrastuksia silmällä pitäen.Unelmakodin keskipisteenä on talon "kainaloon" sijoittuva lähes 6,5 m korkea viherhuone, jossa saa nauttia auringonvalosta koko päivän!
Messutalon julkisivu ja yksi sisäseinän pinnoista on muurattu Wienerbergerin Ruskonkirjavasta Makasiini-uutuustiilestä. Tiilen pinta on rouhean karhea ja värisävy tummahko punaruskeankirjava.
Pihasta suunniteltiin yhdistetty hyöty- ja leikkipiha. Lasten kanssa kasvatetaan yrttejä, marjoja ja omenoita. Lapsille on myös leikkialue pation vieressä ja talon takana pelialue. Syreenien suojassa voi rentoutua lämmitettävässä pihapaljussa.






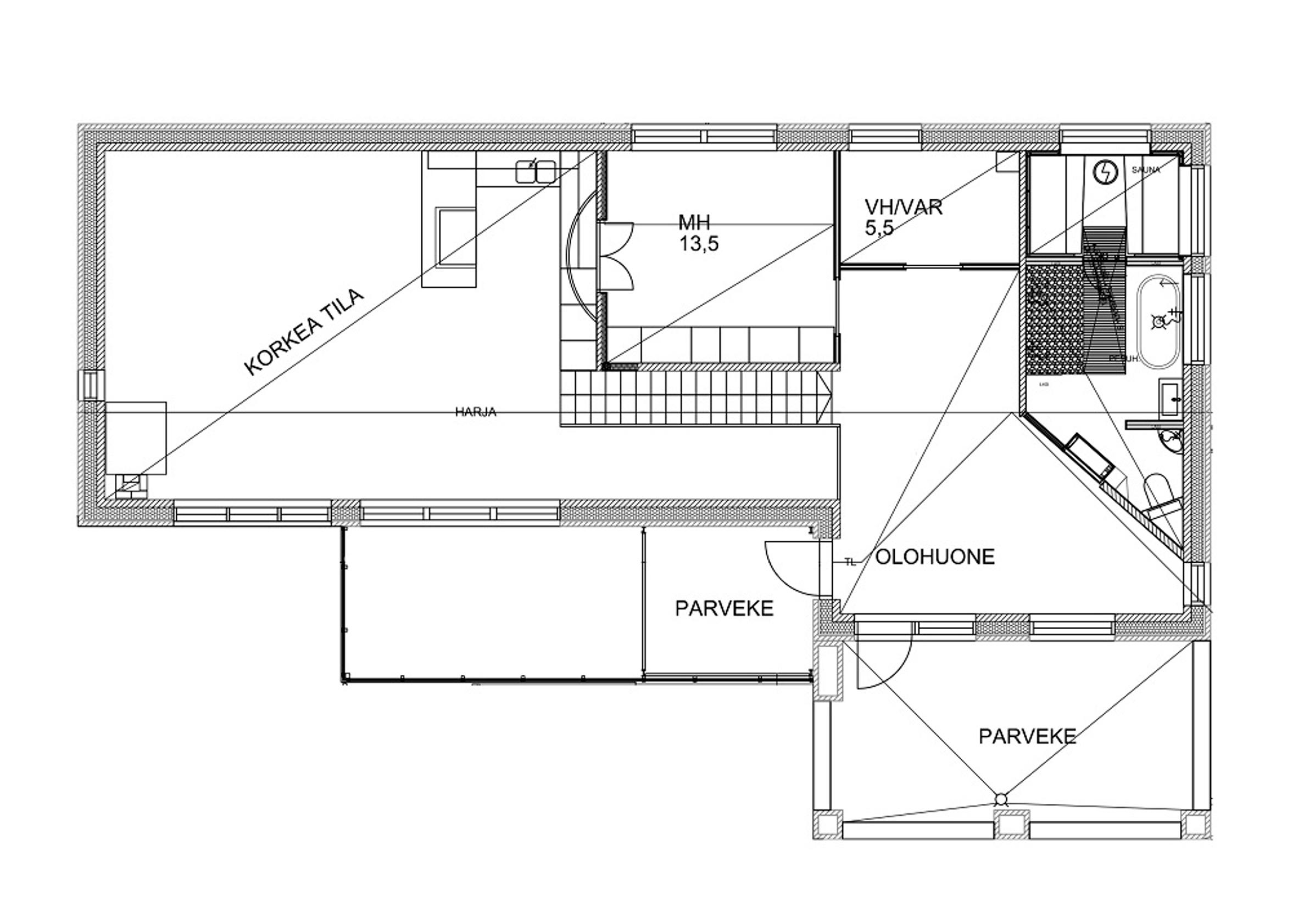
Kohde 38: Rock-kivitalo Aletta
5h+k+ khh + höyrysauna + s 165 m²
Näytteilleasettaja: Rock-kivitalot, puh. 0400 455 227 Arkkitehti: OSUMA Arkkitehdit Oy / Aki Hiltunen Energialuokka: B E-luku: 123 Arvioitu lämmitysenergiankulutus (kWh/vuosi): 12 504 Runkomateriaali: kivi (Siporex-kevytbetoni) Lämmitysjärjestelmä: maalämpö
Erityistä: Talossa on kaksi saunaa: höyrysauna ja perinteinen sähköllä lämmitettävä. Viisihenkisen perheen uniikkikodin suunnitellun pohjana oli sujuva, toimiva ja elävä arki. Perheen toivelistalla oli tilat niin yhdessäoloon kuin rauhoittumiseenkin, seurusteluun ja koulutöihin. Lisäksi tilojen avaruus, selkeys ja kodikkuus olivat tärkeitä teemoja. Talossa haluttiin kunnioittaa pelkistettyä, tiloihin pohjautuvaa kauneutta sekä valon ja varjon liittoa. Talon lukuisat yksityiskohdat tuovat oman mausteensa koko talon olemukseen; kulmat, näkymät, terassin jylhä olemus, ikkunoiden muotokieli ja näkymä-valo-akselit, jotka risteilevät tilojen halki.
Piha tarjoaa luonnollisen jatkumon sisätiloille. Suunnittelun tyyli on hyvin tavanomainen. kivetys/ nurmi/terassi. Patiolta on portaat 2. kerroksen suurelle 40m2 kattoterassille.






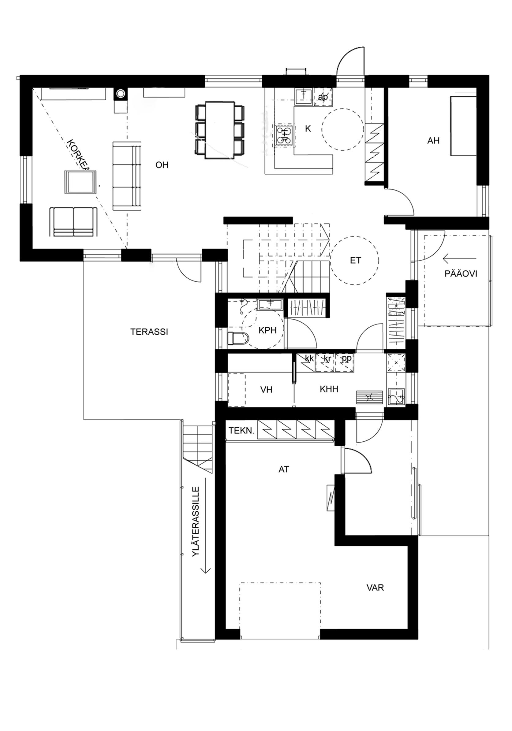
Kohde 39: Kastelli
5h+k+khh+s 145 m²
Näytteilleasettaja: Kastelli-talot, puh. 010 277 6600 Arkkitehti: Erkki Eskelinen Energialuokka: B E-luku: 118 Arvioitu lämmitysenergiankulutus (kWh/vuosi): 6 108 Runkomateriaali: puu, suurelementit Lämmitysjärjestelmä: kaukolämpö
Erityistä: Kohtuuhinnalla koti pienelle kaupunkitontille. Messutalo on erinomainen ratkaisu kadun pohjoispuolen tontille. Ulko-oleskelutilat ovat rakennusmassan suojassa ja avautuvat iltapäivä- ja ilta-auringon suuntaan. Julkisivujen rappaus viimeistelee ulkonäön. Sisustus on modernin ja kodikkaan liitto. Täydellisen liiton muodostavat myös kalliimman ja alhaisen hinta-tason tuotteet. Eri hintatasojen yhdistely on ollut jo pitkään trendinä pukeutumisessa, mutta yhdistely toimii myös sisustuksessa.
Kokonaisuus on harkitun yksinkertainen ja avara, olematta kuitenkaan kliininen. Tietotekniikan valtaaman arjen keskellä tässä kohteessa ajatuksena on ”slow life”. Pysähdytään hetkeen ja yhdessä oloon. Kotona ladataan omat akut laitteiden akkujen sijaan. Käytännöllinen ja tyylikäs piha pienelle tontille.






Kohde 40: Verso
4–5h + k + khh + s 148 m²
Näytteilleasettaja: GreenBuild, puh. 020 794 9600 Arkkitehti: Kirsi Ojala Energialuokka: C E-luku: 156 Arvioitu lämmitysenergiankulutus (kWh/vuosi): 7 720 Runkomateriaali: selluvillaeristeinen puurunko, pre cut Lämmitysjärjestelmä: PILP
Erityistä: Arkkitehtuuriltaan VERSO edustaa ajatonta suomalaista rakennusperinnettä. Arkkitehtisuunnittelussa on huomioitu passiivinen auringon lämpö ja valo. Modernin kaupunkipuutalon selkeään suorakaidemassaan tuo persoonalista ilmettä ja ”modernia twistiä” ruohokattoinen viherhuone. Oleskelutilat avautuvat pihalle aurinkoisiin ilmansuuntiin kun taas Tiikerinsilmä-aukion suuntaan julkisivu on lähes umpinainen.
Kotimaisessa puupassiivitalossa on elinkaaren aikaiset hiilidioksidipäästöt minimoitu käyttämällä puupohjaisia ja kierrätettyjä rakennusmateriaaleja, kuten selluvillaa. Kohteen suunnitteluratkaisut perustuvat kansainväliseen "ECO2-wood in carbon efficiency" -projektiin. Kohteen laskennalliset CO2-ekv:t ovat 11,37 tonnia materiaalien osalta sekä 2,23 tonnia vuotuisen energiakulutuksen osalta. Rakennuksen sisäilman laatuun on kiinnitetty eritystä huomioita mm. ääneneristyksessä ja meluntorjunnassa.
Helppohoitoinen piha on suunniteltu lapsiperheelle. Pienistä puista osa on hedelmäpuita, tontille on istutettu myös muutama marjapensas. Paahteiselle seinustalle on suunniteltu havukasveja, mm kotimaisia pylväskatajia ja helppohoitoisia perennoja. Hulevesien hyötykäyttöä varten maahan on upotettu 1600 litran säiliö, josta sadevettä saa käyttöön uppopumpulla ja letkulla.






Kohde 41: Tiilerikoti
4 h+ k+ kph/khh+ viherhuone + s 113 m2
Näytteilleasettaja: Tiileri, puh. (02) 484 300 Arkkitehti: Arkkitehtuuritoimisto Jukka Ulvinen Energialuokka: B E-luku: 156 Arvioitu lämmitysenergiankulutus (kWh/vuosi): 3 000–4 000 Runkomateriaali: poltettu tiili Lämmitysjärjestelmä: Ilma-vesilämpöpumppu
Erityistä: Ekologinen talo, jossa materiaalina on hengittävä ja sataprosenttisesti kierrätettävä tiili. Ulkoseinärakenteissa ei käytetä lainkaan ilmaa läpäisemättömiä materiaaleja, jolloin talo säätelee automaattisesti huoneilman kosteutta. Seniorpariskunnalle suunnitellussa talossa korostuu myös helppohoitoisuus ja turvallisuus. Suunnittelun lähtökohtana on ollut esteettömyys niin talossa kuin pihamaallakin.
Tiilestä muurattu talo on helppohoitoinen ja huoleton, joka merkitsee kustannussäästöjä koko talon elinkaaren ajan. Talon olohuoneesta pääsee suoraan viihtyisään viherhuoneeseen, joka lisää kesäkauden pituutta niin keväällä kuin syksylläkin. Talon tunnelmanluojana toimii varaava nuotiotakka, joka on sijoitettu optimaalisesti talon keskelle.
Sisustamisemme kultaisena lankana on kodinomaisuus, luonnonläheiset materiaalit ja helppohoitoisuus. Ajatuksena on ollut saada asukkailleen lämpimän pehmeä, ajaton koti, jossa rentous, rosoisuus ja tyylikkyys kohtaavat. Värimaailma on raikas mutta maanläheinen.
Pihamaa suunniteltiin perinteiseksi ja helppohoitoiseksi. Pihalla on pääosin nurmea, sekä havu-, perenna- ja marjapensaita. Pihasuunnitelmassa on esteettömyyteen kiinnitetty erityistä huomiota. Esimerkiksi lumitöiden määrä on minimoitu toimivalla pihasuunnittelulla ja katolle tulevilla kunnon lumiesteillä.
Pihamaalla on myös grillaus- ja oleskelupaikka muurattuine kesäkeittiöineen.




Kommentit