
Vantaan asuntomessut: kohteet 21–31
Vuoden 2015 asuntomessuilla Vantaalla on yhteensä 41 kohdetta, joista Meidän talo esittelee kaikki 32 pientalokohdetta.
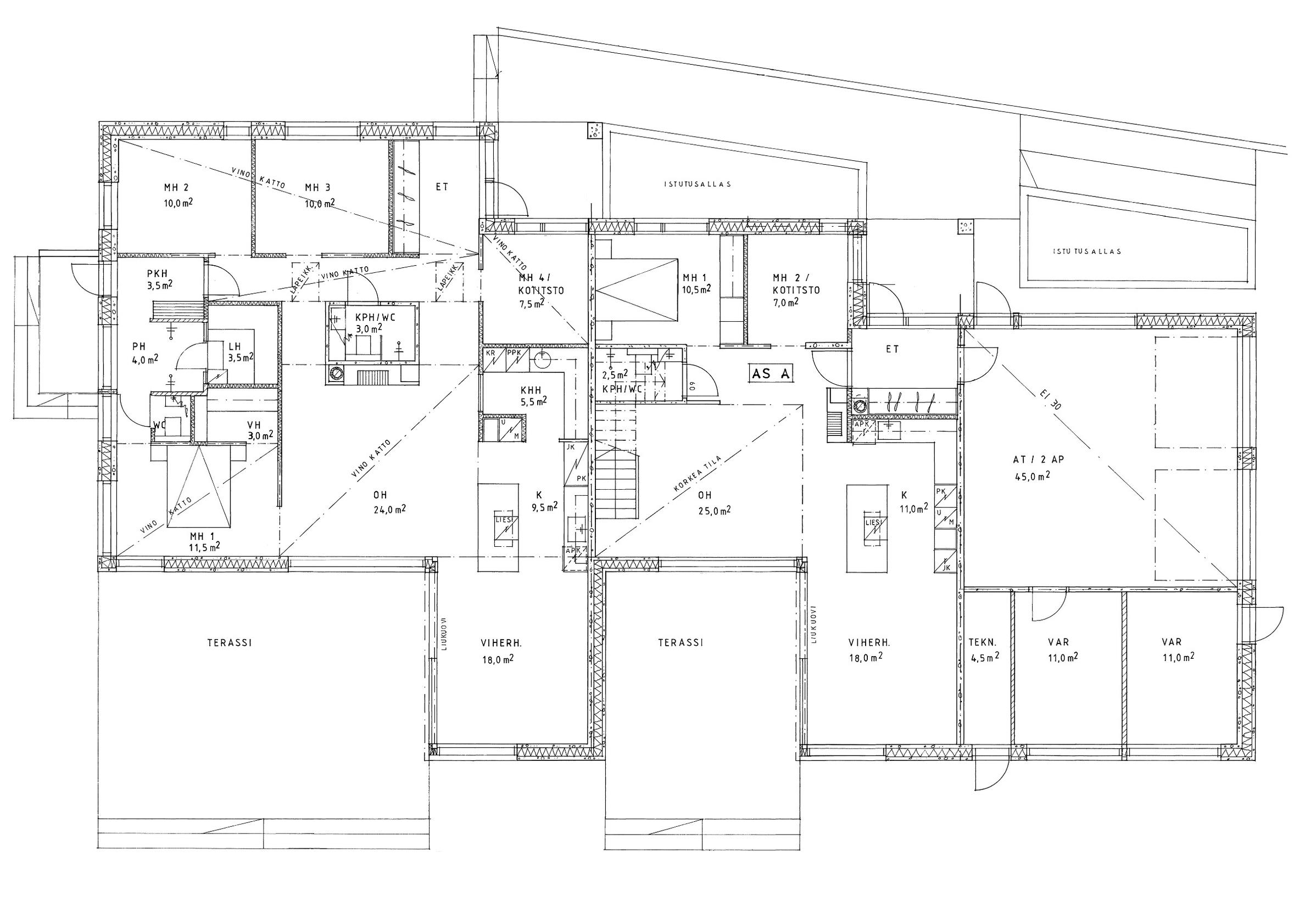
Kohde 21: Profin House
Asunto a 5 h + k + rt + khh + s 132 m², asunto b 5 h + k + khh + s 138 m²
Näytteilleasettaja: Profin, puh. (08) 815 3700 Arkkitehti: Arkkitehtuuritoimisto Nakari & Vimpari Energialuokka: B E-luku: 118 Arvioitu lämmitysenergiankulutus (kWh/vuosi): 21 000 Runkomateriaali: kivi, betonielementti Lämmitysjärjestelmä: Kaukolämpö
Erityistä: Kahden perheen paritalossa valoisuus ja kahden värin, mustan ja valkoisen kontrasti luovat tilaa modernille arkkitehtuurille. Talon valmiit, sisäpuolelta viimeistellyt betonipinnat edustavat uutta betonirakentamisen suuntaa. Päänäytteilleasettajan Profin Oy:n ikkunat ja lasiliukuseinät ovat uusimman Fullglass-tuoteperheen tuotteita, joissa ikkunoiden ulkopinta on kauttaaltaan lasia.
Piha on tyyliltään selkeälinjainen, moderniin kaupunkitaloon sopiva. Ikivihreillä ja havuilla tuodaan vihreyttä ympäri vuoden. Hyötykasveja ovat mm. hedelmäpuut. Graafisuutta korostetaan viinipunanlehtisien pensaiden avulla.






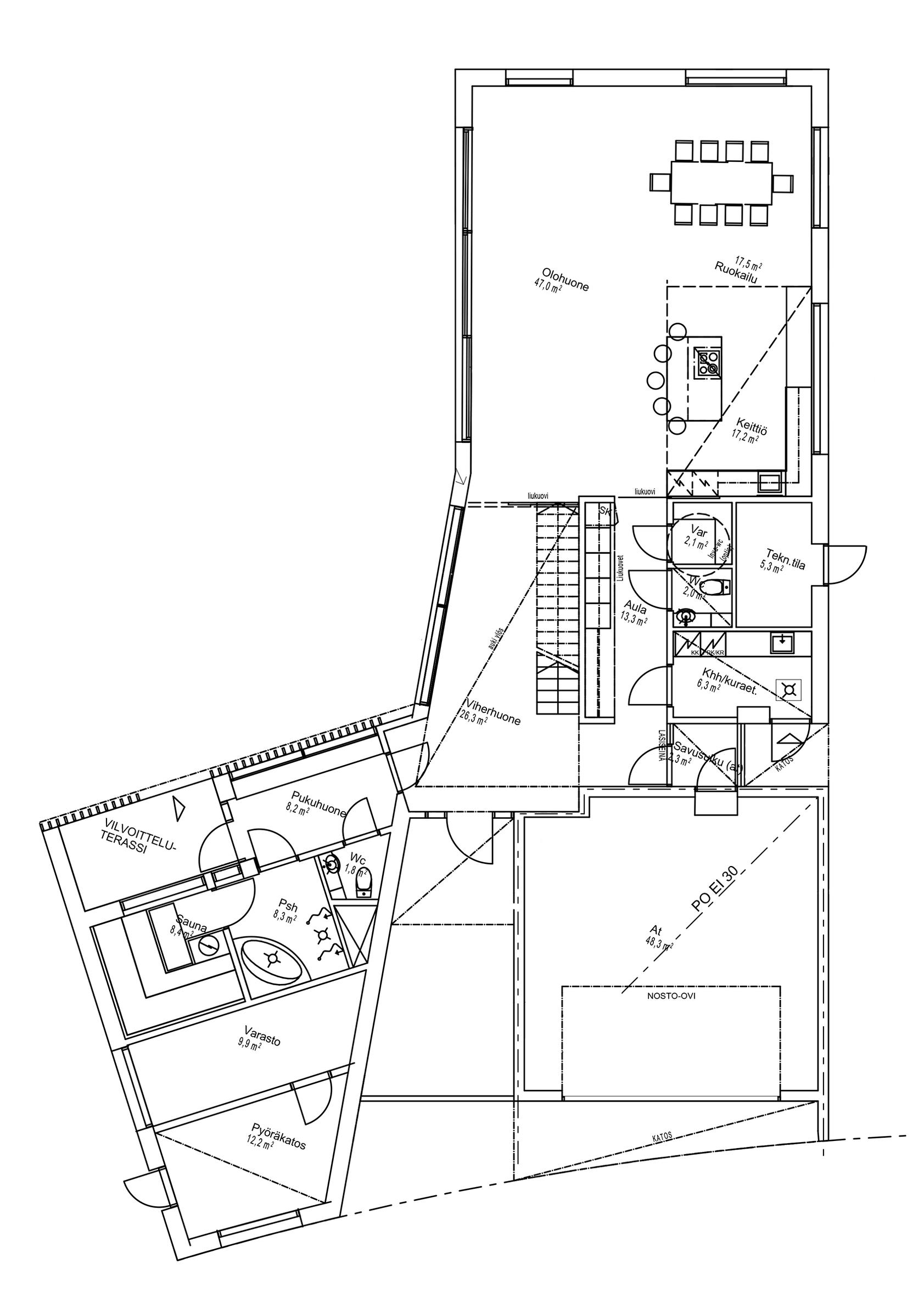
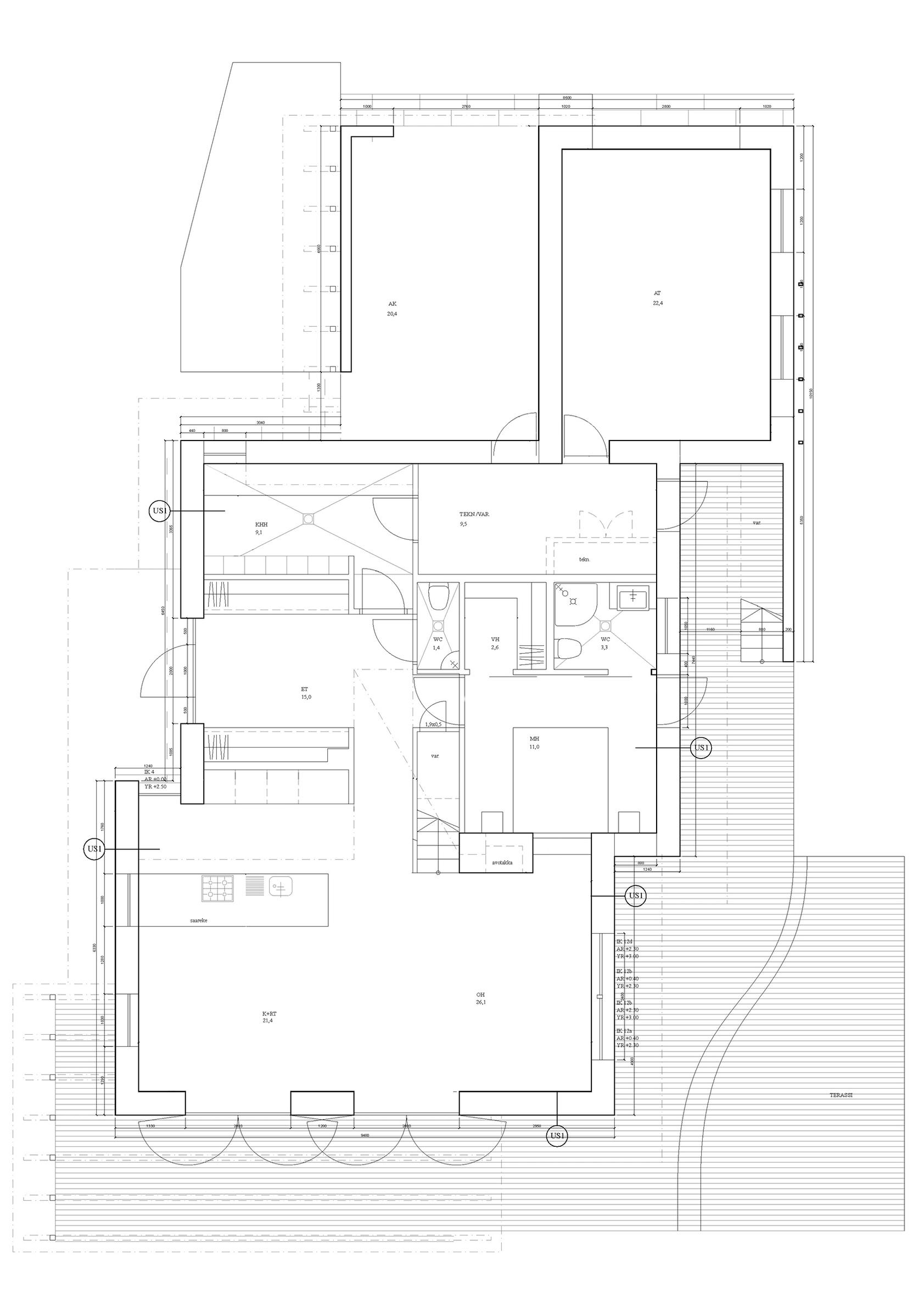
Kohde 22: LakkaLaine
6 h + k + 2 khh + s 287 m²
Näytteilleasettaja: Lakka Kivitalot Arkkitehti: Arkkitehtitoimisto Lassila & Co Energialuokka: B E-luku: 102 Arvioitu lämmitysenergiankulutus (kWh/vuosi): 16 137 Runkomateriaali: kivi (EMH-400 grafit eristemuottiharkko) Lämmitysjärjestelmä: maalämpö
Erityistä: Suunnittelun lähtökohtana on ollut arjen toiminnallisuus. Taloon haluttiin tilan tuntua, sisääntulo on korkeaa valoisaa tilaa, josta avautuvat näkymät ylä- ja alakertaan ja isolle terassille. Jokaisen makuuhuoneen yhteydessä on wc suihkutiloineen. Säilytystilaa on runsaasti ja molemmissa kerroksissa on kodinhoitotilat.
Talon sijoittuminen jakaa tontin julkiseen etupihaan ja avaraan muurilla suojattuun oleskelupihaan. Pihasuunnittelun pohjana oli saada tilan tuntu jatkumaan sisältä olohuoneesta katsottuna. Nurmikkoalue on rajattu selkeästi ja kasvillisuus noudattaa talon arkkitehtuuria. Pihalla on ulkoporeallas.






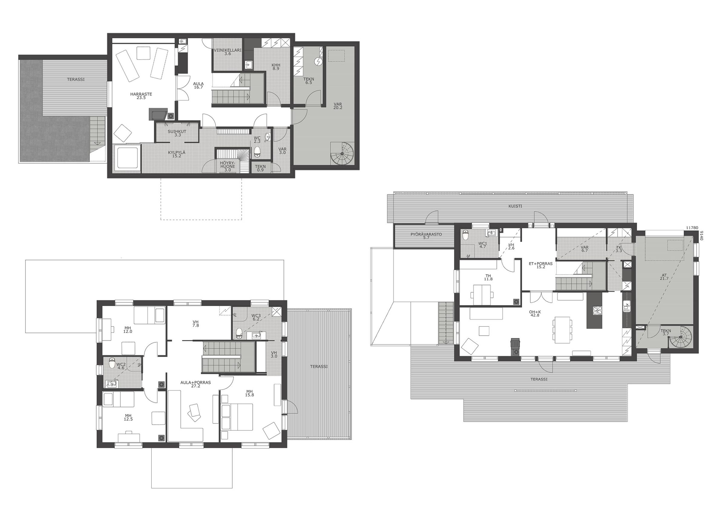
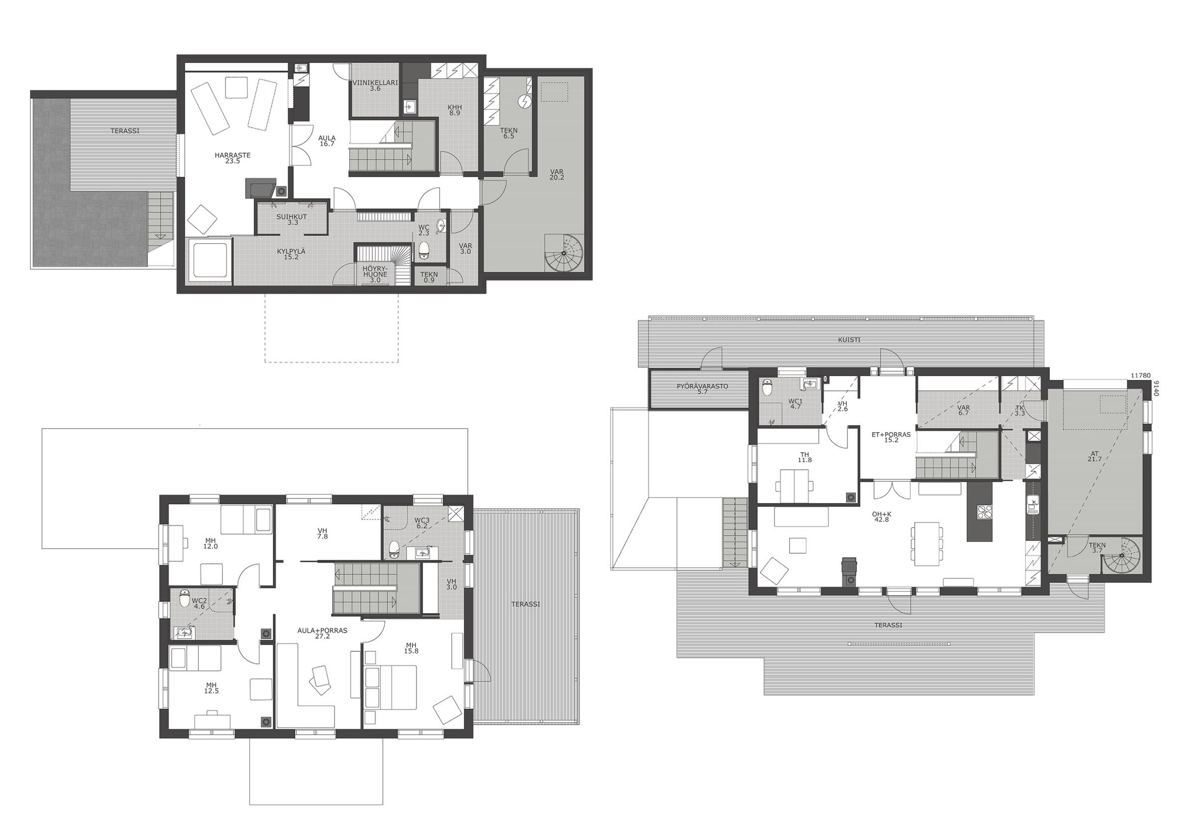
Kohde 23: Ainoa Feeniks
7 h +k + khh + höyryhuone + kylpylä 242 m²
Näytteilleasettaja: Ainoakoti, puh. 0400 501 610 Arkkitehti: slovenialainen arkkitehti Spela Puc Energialuokka: B E-luku: 91 Arvioitu lämmitysenergiankulutus (kWh/vuosi): 10 000 Runkomateriaali: Puu, suurelementti Lämmitysjärjestelmä: Maalämpö
Erityistä: Talo on rakennettu muuttovalmiina, rakennuttajaperheen asuessa Belgiassa. Pohjaratkaisu on optimoitu tilankäytön ja toimintojen, hyötyneliöiden maksimoimisen sekä myös ilmansuuntien mukaan.
Talossa kaikelle on oma paikkansa: kaksi vaatehuonetta, ruokakomero, viinikellari, kausivarasto, tekninen varasto, polttopuukuilu, polkupyörävarasto. Kellarissa on kylpyläalue, jossa on höyrysauna ja poreallas. Talon takat ovat poikkeuksellisen näyttävät. Yläkerrassa on kaksipuoleinen manttelitakka ja kellarissa takka, jossa myös hukkalämpöä hyödyntävä lämmönkeruujärjestelmä.
Pihan toiminnot jakautuvat neljään toiminnalliseen osaan: Autopiha on suunniteltu toimimaan myös lasten leikkipihana. Oleskelupihalla suuret terassit yhdistyvät pienen pihan nurmialueeseen. Hyötypiha tuottaa perheen suosikkimarjoja ja -hedelmiä. Varjoisan pohjoispihan istutuksena on niukkaa kivikkokasvillisuutta.




Kohde 24: Pastilli ja Penni
5h + k + khh + s + viherhuone, 120 m²
Näytteilleasettaja: Passiivikivitalot, puh. 020 778 0444 Arkkitehti: Arkkitehtitoimisto N-A-M Oy / Sipi Hintsanen Energialuokka: A E-luku: 84 Arvioitu lämmitysenergiankulutus (kWh/vuosi): n. 4 000/talo Runkomateriaali: kivi, paikalla valettu Neopor -valumuotti Lämmitysjärjestelmä: takkalämmitys, Tulilattia Lämmönjako: Ilmakiertoinen lattialämmitys
Erityistä: Talojen lämmönlähteenä on Tulilattia-takka, joka myös kuivattaa talot ja näin ehkäisee kosteusvaurioita. Käyttöveden lämmityksessä hyödynnetään aurinkoenergiaa.
Ensimmäisen kerroksen totuttua suurempi huonekorkeus tuo avaruutta ja tilantuntua. Saunaosastosta pääsee mukavasti vilvoittelemaan suurelle länsiparvekkeelle
Elinkaariajattelussa on tuotu esiin ekologisia kokonaisuuksia. Passiivikivitalo Pennissä ekologisuuden teema ulottuu myös sisustukseen; kalustuksessa on käytetty kunnostettuja 50-60 -luvun vintage-kierrätyskalusteita. Tontti on jaettu kahteen osaan siten, että molemmille taloille muodostuu omat suojaiset piha-alueet. Pihat on erotettu toisistaan luontevasti sekä kasvillisuudella että visuaalisesti käyttämällä pihan päällysteissä erilaisia materiaaleja.






Kohde 25: Deko 165
5h + k + khh + s 143 m²
Näytteilleasettaja: Deko-Talo Arkkitehti: - Energialuokka: C E-luku: 135 Arvioitu lämmitysenergiankulutus (kWh/vuosi): 12 900 Runkomateriaali: puu, pre-cut Lämmitysjärjestelmä: Kaukolämpö, ilmalämpöpumppu, varaava takka
Erityistä: Kaikki makuuhuoneet on sijoitettu järkevästi yläkertaan. Vanhempien makuuhuoneesta on käynti tilavalle länteen avautuvalle parvekkeelle. Talon iso ja osittain katettu terassi on sijoitettu oleskelupihan suuntaan. Taloon on asennettu kotiautomaatiojärjestelmä.
Tasaista kaupunkitonttia elävöittää mansikkakumpare, jossa keväällä kukkivat hedelmäpuut tuovat pihalle korkeutta ja kuukausimansikat tuottavat satoa pitkin kesää.
Selkeälinjaisessa, toimivassa lapsiperheen pihassa on aktiiviselle perheelle paljon tilaa oleskella ja pelailla.




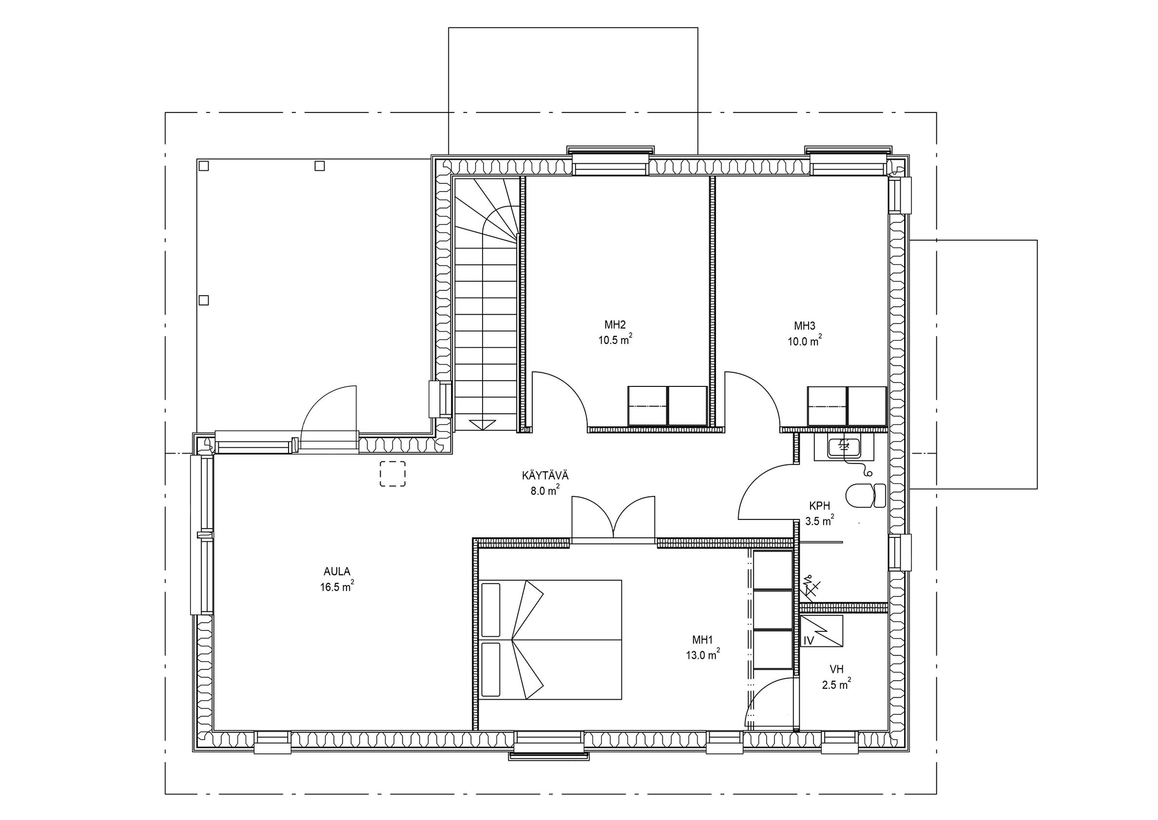
Kohde 26: Villa Kapee
5 h + k + khh + s 186,5 m²
Näytteilleasettaja: Ollikaisen Hirsirakenne, 010 835 7500 Arkkitehti: Jussi Hietalahti/Arkkitehtitoimisto J10 Energialuokka: C E-luku: 139 Arvioitu lämmitysenergiankulutus (kWh/vuosi): 11 500 Runkomateriaali: puu, lamellihirsi 270mm Lämmitysjärjestelmä: Maalämpö
Erityistä: Tervantuoksuisesta hirrestä rakennetussa talossa on tavallisuudesta poikkeavia ratkaisuja. esim. uutta kiintokalustetekniikkaa. Taloon on myös asennettu viimeisintä älykotitekniikkaa edustava kodinohjausjärjestelmä, joka lanseerattiin Suomessa kuluvan vuoden alussa.
Monimuotoiset liuskekivipinnat ja yhtenäiset kasviryhmät tekevät pihasta helppohoitoisen. Koristekasvien lomassa on tilaa puutarhan hyötykasveille, jotka ovat myös kauniita ja luovat tilan tuntua sekä yksityisyyttä tiiviillä alueella. Näkymiä ei haluta kuitenkaan kokonaan peittää, jotta valoa pääsee sisälle ja pihan oleskelupaikoille, joista auringonpalvoja voi valita mieluisimman.






Kohde 27: Valhalla
6 h + k+ khh + s 143 m2
Näytteilleasettaja: Design-Talo, 020 746 3940 Arkkitehti: Energialuokka: C E-luku: 128 Arvioitu lämmitysenergiankulutus (kWh/vuosi): 12 150 Runkomateriaali: puu, suurelementti Lämmitysjärjestelmä: kaukolämpö, lisälämmönlähteenä varaava takka
Erityistä: Talo on suunniteltu perheen intohimojen, toiveiden ja tarpeiden pohjalta, lähtökohtanaan pohjaratkaisumalli D1 162. Julkisivuihin perhe valitsi ajattoman kauniin rappauksen. Talon nimi Valhalla tarkoittaa viikinkien taivasta ja se tulee perheen innostuksesta viikinkikulttuuria kohtaan. Viikinkiaihetta esiintyy esimerkiksi valokatkaisimissa.
Erilaiset havu- ja lehtikasvit antavat pihalle suojaa ja ilmettä. Etupihan oleskelupuutarhassa on tilaa leikeille ja luksusta arkeen tarjoaa takapihan poreallas.




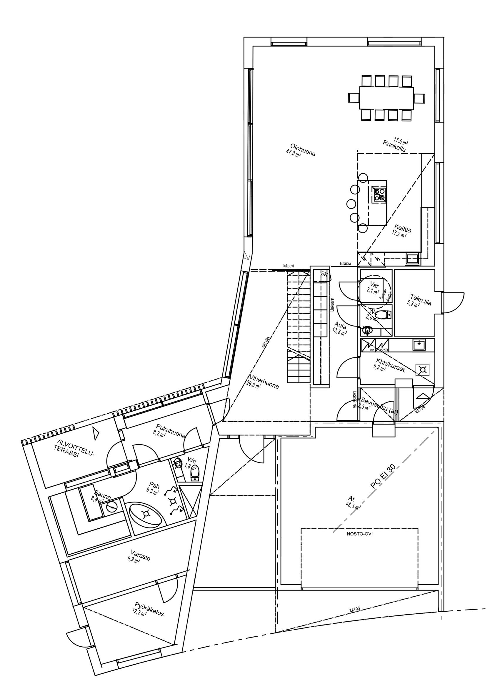
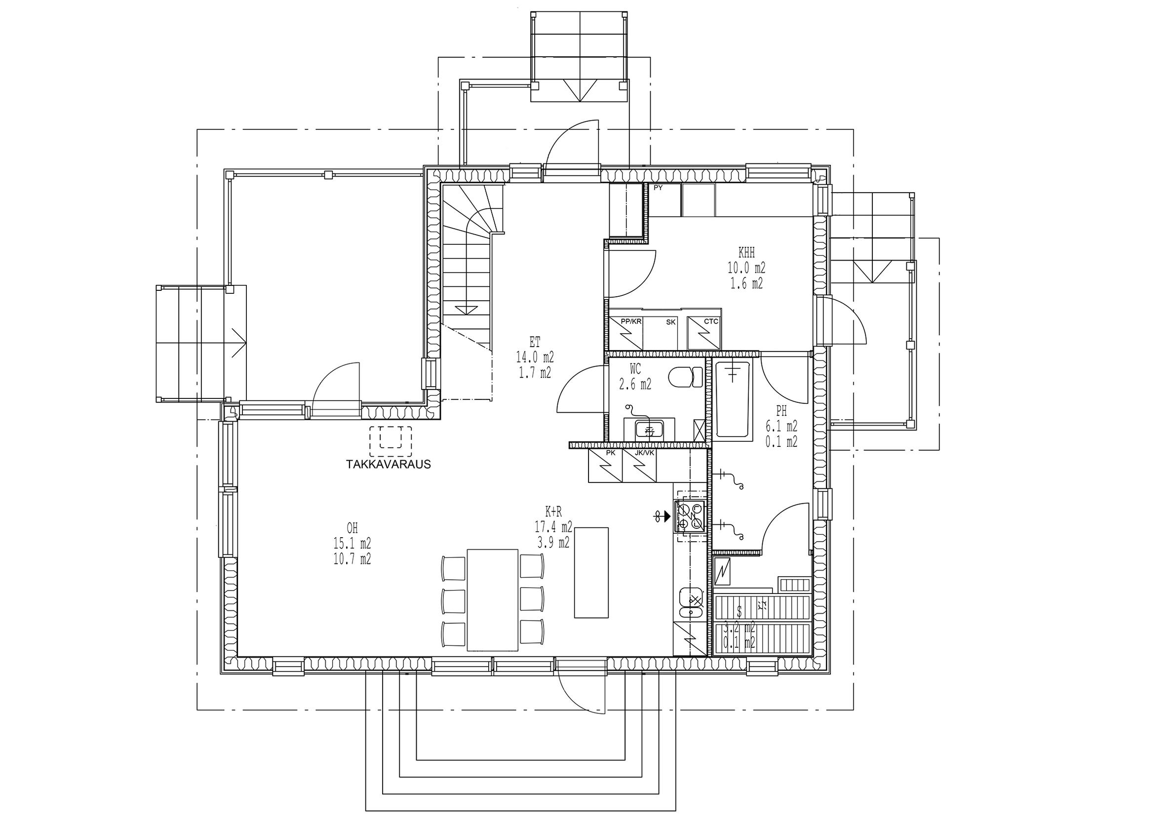
Kohde 28: Passiivikivitalojen kosteusturvatalo
5h + k + khh + s 164 m2
Näytteilleasettaja: Passiivikivitalot, 020 7780 444 Arkkitehti: Martin Lukasczyk Energialuokka: A E-luku: 88 Arvioitu lämmitysenergiankulutus (kWh/vuosi): n. 5 500 Runkomateriaali: kivi, paikalla valettu Neopor-valumuotti Lämmitysjärjestelmä: Tulilattia - takkalämmitys
Erityistä: TTY:n kosteusseurantakohde. Talo kuivattaa itse itsensä uudella patentoidulla järjestelmällä, joka ehkäisee kosteusvahingot. Kivitalossa on pyöreät ulkokulmat. Sisustuksessa on erikoista olohuoneen upotettu oleskeluryhmä, jolla on haettu japanilaista "henkeä".
Pihaan on haettu japanilaista henkeä, mutta unohtamatta perheen aktiivista elämäntapaa.






Kohde 29: Muurametalo Villa Chili
4 h + k + khh + s 136 m2
Näytteilleasettaja: Muurametalot Arkkitehti: Mikko Mella-Aho, Suunnittelutyö Tilatoive Energialuokka: B E-luku: 135 Arvioitu lämmitysenergiankulutus (kWh/vuosi): 11 418 Runkomateriaali: puu, tilaelementti Lämmitysjärjestelmä: maalämpö
Erityistä: Huonejako päästää valon virtaamaan jokaisesta ilmansuunnasta. Alakerran 4 ulko-ovea avautuvat eri ilmansuuntiin. Talossa on 2-kerroksinen terassi. Idea värikkäistä seinistä (mm. keltainen, violetti, oranssi, vihreä) sai alkunsa chilien väreistä. Lähes koko talossa on täyden spektrin päivänvalo, koska perheen äiti pitää hyvää valoa tärkeänä etenkin lapsille.
Piha on helppohoitoinen, mutta linjakas ja ennen kaikkea vehreä hyötytarha. Kasvit ja pinnat muodostavat kontrastin talon kulmikkuudelle. Upea liuskekivialue tulee vehreydyttyään kruunaamaan koko pihan, ja ilahduttamaan tuoksuillaan ja sadollaan. Hieman leikkimieltäkin on mukana kuten kattokruunu kasvihuoneessa, joka illan pimeydessä luo upeaa tunnelmavaloa pihalle ja sisälle olohuoneeseen. Tontin suurehko pihakiveys on monimuotoinen roomalainen kivetys, joka muodostuu kahdeksasta erikokoisesta kivestä.






Kohde 30: Villa Falken
6h + k + khh + s 189 m2
Näytteilleasettaja: Fiskarhedenvillan Arkkitehti: Andreas Nordström Energialuokka: B E-luku: 109 Arvioitu lämmitysenergiankulutus (kWh/vuosi): 12 174 Runkomateriaali: Puu, pre-cut Lämmitysjärjestelmä: Maalämpö
Erityistä: Ruotsalaisen talotehtaan New England -vaikutteisessa talossa on kolmen makuuhuoneen yhteydessä myös vaatehuone. Suurimman makuuhuoneen yhteydessä on myös oma kylpyhuone.
Talotehtaan tavaramerkki on muunneltavuus, joka antaa mahdollisuuden luoda täsmälleen omien tarpeiden mukaan suunnitellun yksilöllisen kodin. Seinän jatkaminen, ikkunan siirtäminen tai vaikka tornin rakentaminen eivät tuota ongelmia.
Piha on helppohoitoinen. Tilava tontti rajautuu kahdelta sivultaan puistoalueeseen. Kaikki puut ovat pienikasvuisia ja osa lehtipuista on hedelmäpuita. Tontille mahtuu myös kasvimaa. Aurinkoisen terassin näkösuojaksi on suunniteltu pylväsmäisiä havuja, joiden välissä kasvaa helppohoitoisia perennoja. Ulko-ovien luo seinustalle istutetaan kuivassa viihtyviä havukasveja ja joiden aluskasvina on perennoja.






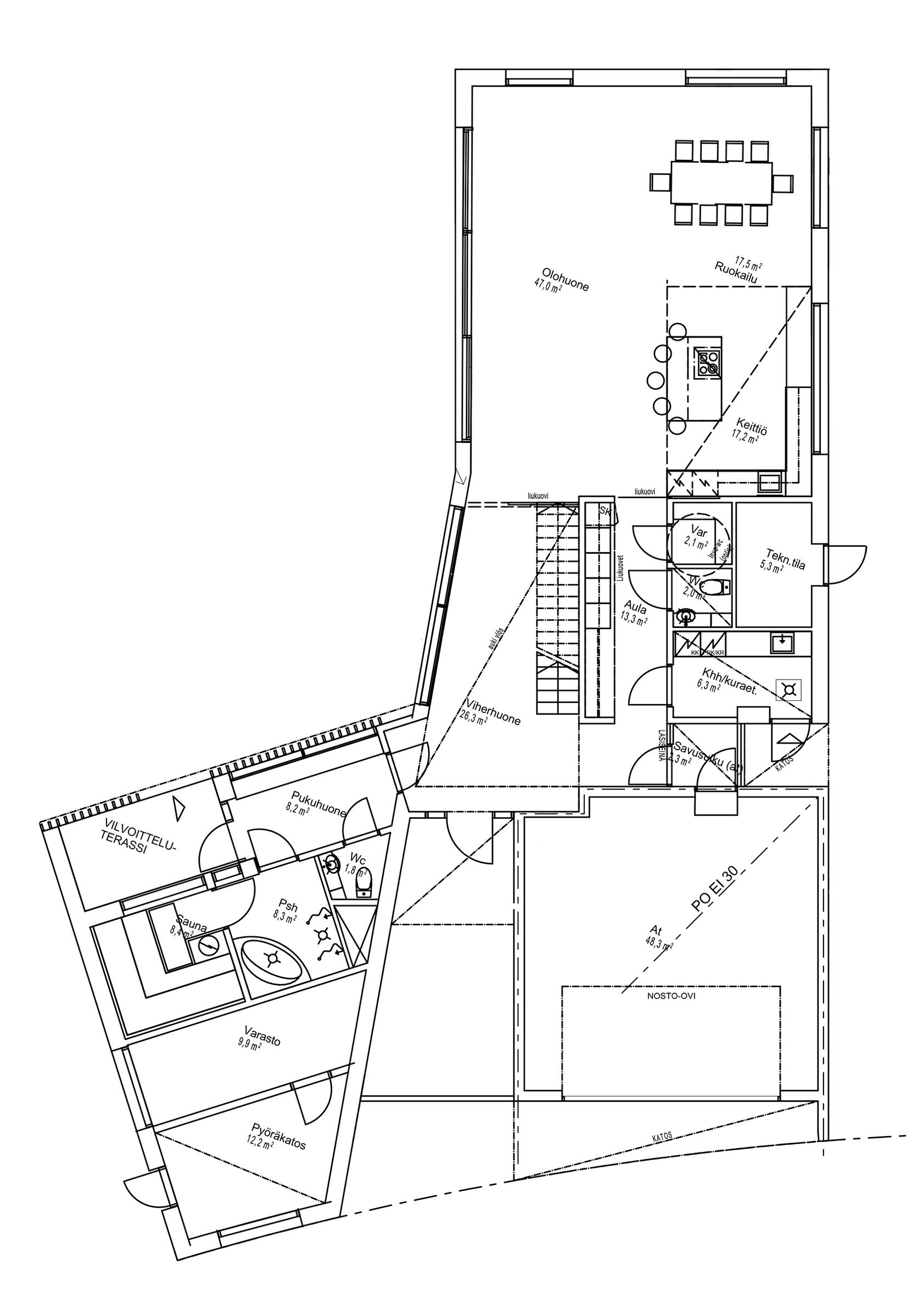
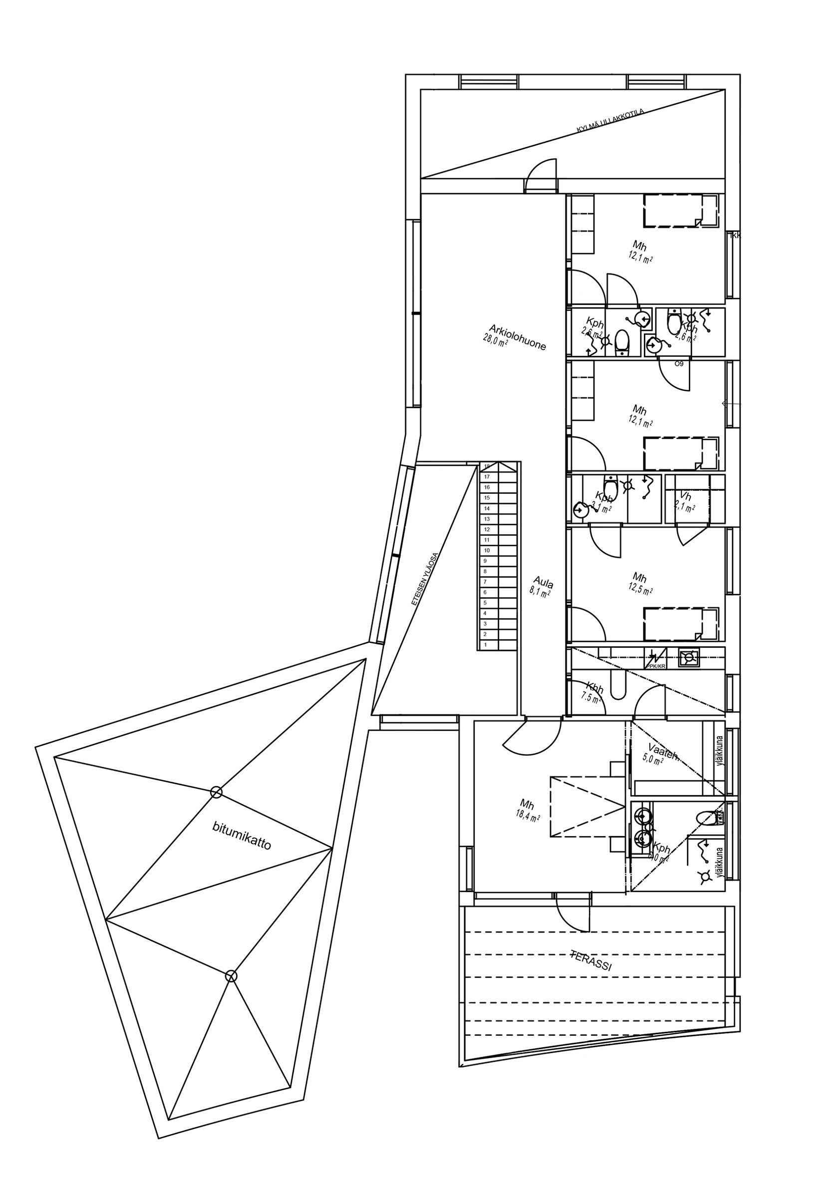
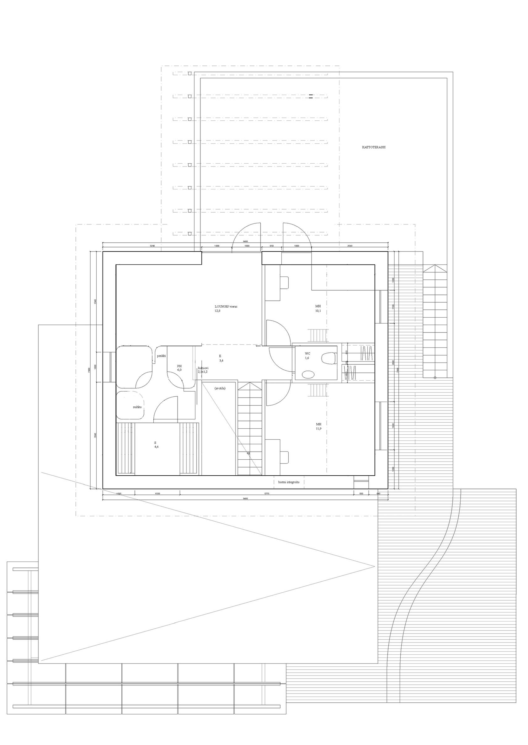
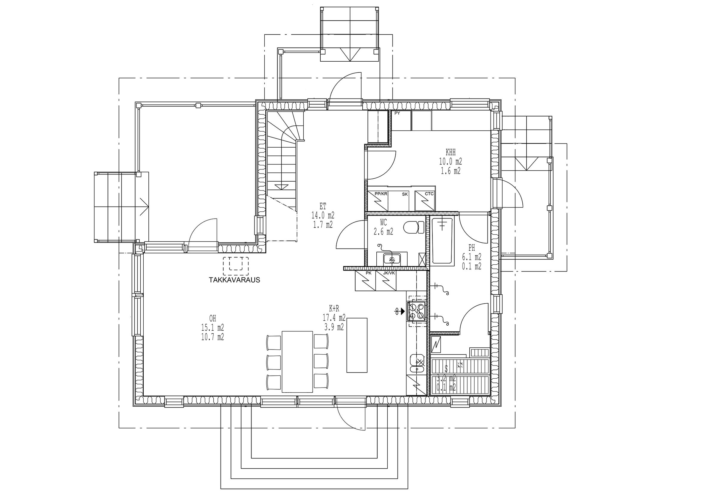
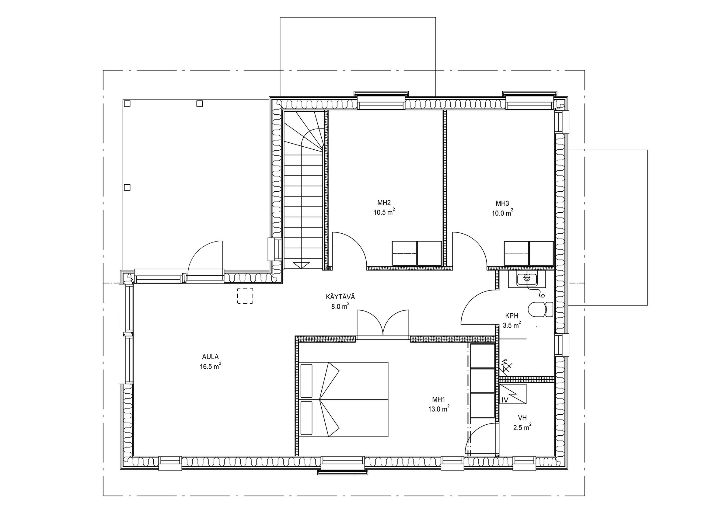
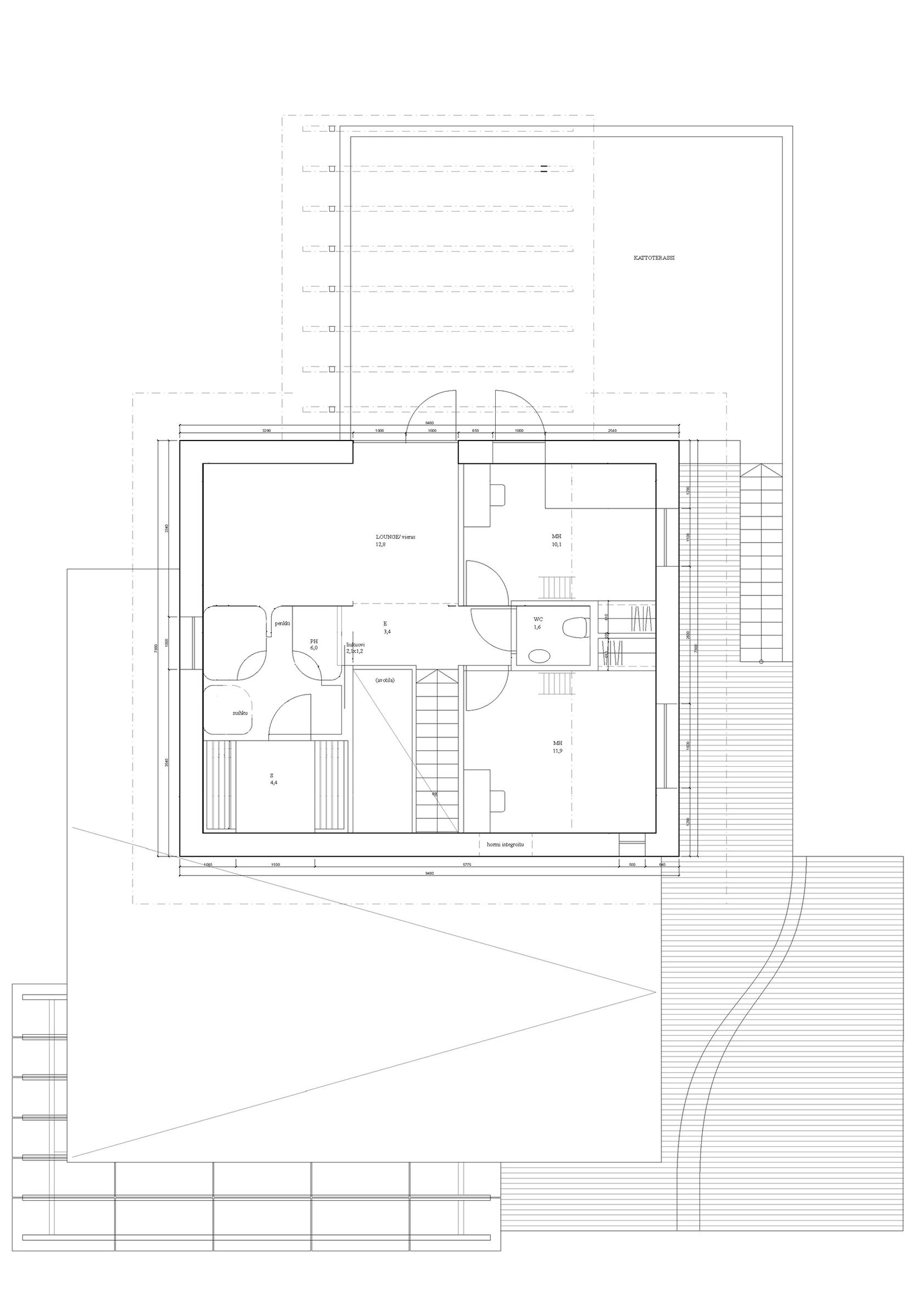
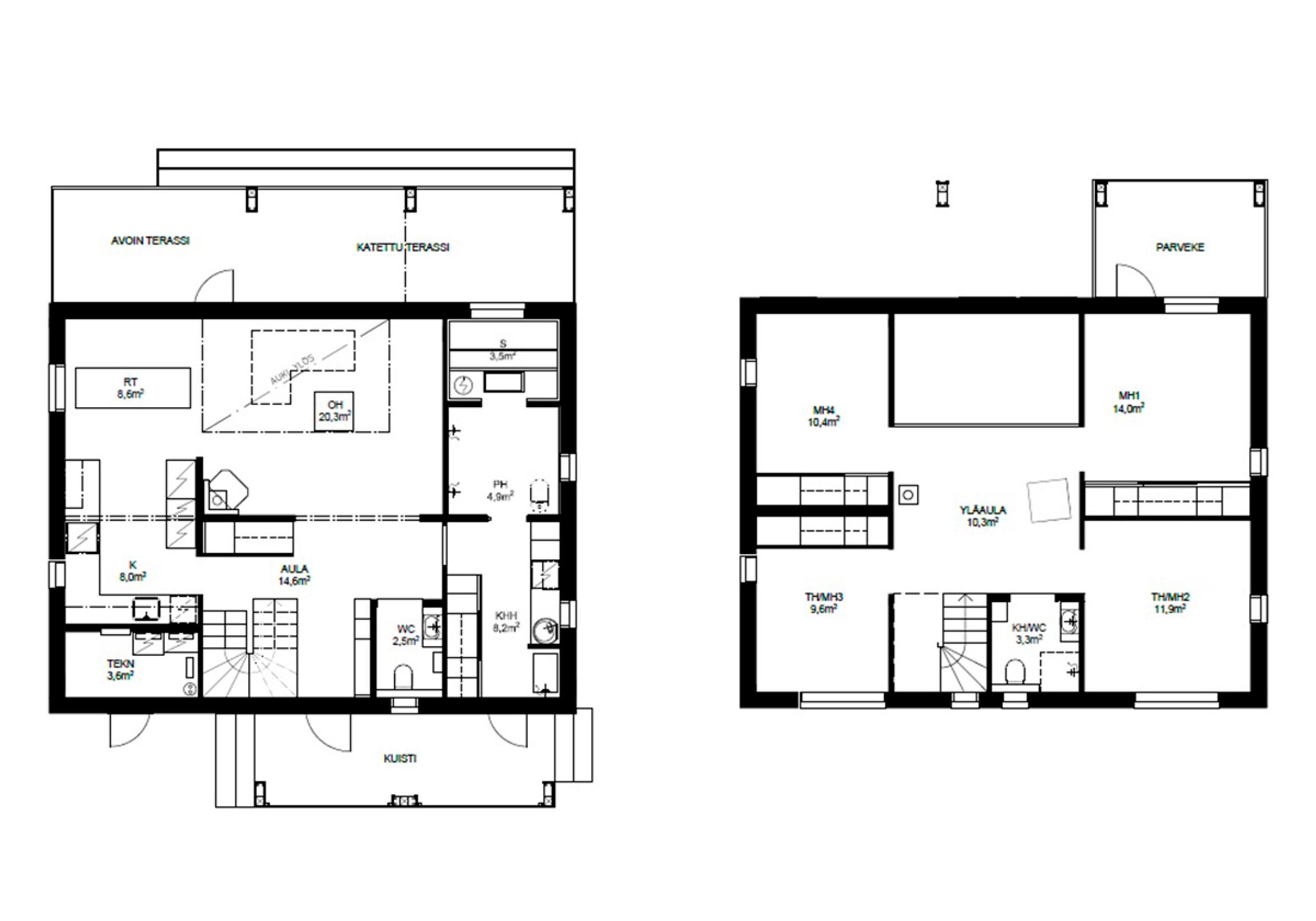
Kohde 31: Casa del Limon
5h+k+khh+s+ viherhuone + kattoterassi 158,5 m2 + viherhuone 18 m2
Näytteilleasettaja: Lammi-Kivitalot, puh. 020 753 0457 Arkkitehti: Katja Maununaho, Arkkitehtitoimisto Huvila Oy Energialuokka: B E-luku: 110 Arvioitu lämmitysenergiankulutus (kWh/vuosi): 4 554 Runkomateriaali: kivi (LammiLämpökivi LL400) Lämmitysjärjestelmä: maalämpö
Erityistä: Casa del Limonin tärkeimmät inspiraationlähteet ovat suomalaisen lapsiperheen arkielämän tarpeet ja meksikolaisen arkkitehtuurin maanläheinen ja runsas materiaali- ja värivalikoima. Neliöihin nähden huoneita ja toimintoja on paljon, mutta ne on saatu hyvällä suunnittelulla toimivan kokoisiksi. Huonejako on suunniteltu niin, että yksityiset tilat ovat yläkerrassa ja alakerrassa julkisemmat tilat.
Talo on suunniteltu elämään perheen mukana. Yläkerrassa on aluksi lapselle/lapsille yksi iso huone, joka muuttuu vaatekaappeja siirtämällä kahdeksi erilliseksi makuuhuoneeksi. Kattoterassi on olohuoneen päällä, jotta se ei varjosta yhtään ikkunaa. Yläkerran huonekorkeus on lähes 4 m, joka mahdollistaa esim. parvien rakentamisen lastenhuoneisiin, jolloin huoneista tulee entistä tilavammat.
Julkisivussa on käytetty meksikolaista cantera-kiveä. Samaa kiveä on myös viherhuoneen lattia. Sisätilojen laatat ovat meksikolaista marmoria. Myös altaat ovat marmoria. Skandinaavista värimaailmaa ei talossa ole. Ulkoa talo on oranssi. Sisätiloissa on käytetty paljon puuta eikä valkoisia seinäpintoja juuri ole.
Pihasuunnittelun lähtökohtana oli värikäs, koko kesän kukkiva perennapuutarha, jonka pyöreät muodot keventävät modernin talon kulmikkuutta. Lapsiperheen pihalle on varattu myös reilusti tilaa leikkiä ja oleskella. Meksikolaishenkisen talon lämmin väritys toistuu pihan kasvivalinnoissa.




Kommentit