
Vantaan asuntomessut: kohteet 11–20
Vuoden 2015 asuntomessuilla Vantaalla on yhteensä 41 kohdetta, joista Meidän talo esittelee kaikki 32 pientalokohdetta.
Kohde 11: Designer 151
4 h+ k+ khh+ s 151 m²
Näytteilleasettaja: Design-Talo, 020 7463 940 Arkkitehti: Aaro Virkkunen, Arkkitehtitoimisto Avarc Oy Energialuokka: B E-luku: 119 Arvioitu lämmitysenergiankulutus (kWh/vuosi): 13 284 Runkomateriaali: puu, suurelementti Lämmitysjärjestelmä: kaukolämpö, varaava takka
Erityistä: Designer-talomalliston arkkitehtuurin perusidea on avaran ja muunneltavan pohjaratkaisun ja suojattujen terassitilojen liittäminen kokonaisuudeksi. Kaupunkimainen mallisto soveltuu myös täydennysrakentamiseen. Asuntomalleja on 93-167 m2. Piha on perusratkaisuiltaan hyvin yksinkertainen. Pintamateriaaleilla ja kasvillisuudella tontti on jaettu kahteen osaan: liikkumiseen ja oleskeluun. Pintamateriaalien kontrasti tekee aluerajauksista yksinkertaiset ja tyylikkäät. Kasvillisuuden sijoittelulla pihoille on luotu selkeät tilojen rajat. Itäpuolen rajakasvit on valittu yhteistyössä naapurien kanssa.




Kohde 12: Designer 93
4 h+ k+ s 93 m²
Näytteilleasettaja: Design-Talo, 020 7463 940 Arkkitehti: Aaro Virkkunen, Arkkitehtitoimisto Avarc Oy Energialuokka: B E-luku: 127 Arvioitu lämmitysenergiankulutus (kWh/vuosi): 8 558 Runkomateriaali: puu, suurelementti Lämmitysjärjestelmä: kaukolämpö, varaava takka
Erityistä: Designer-talomalliston arkkitehtuurin perusidea on avaran ja muunneltavan pohjaratkaisun ja suojattujen terassitilojen liittäminen kokonaisuudeksi. Kaupunkimainen mallisto soveltuu myös täydennysrakentamiseen. Asuntomalleja on 93-167 m2. Piha on perusratkaisuiltaan hyvin yksinkertainen. Pintamateriaaleilla ja kasvillisuudella tontti on jaettu kahteen osaan: liikkumiseen ja oleskeluun. Pintamateriaalien kontrasti tekee aluerajauksista yksinkertaiset ja tyylikkäät. Kasvillisuuden sijoittelulla pihoille on luotu selkeät tilojen rajat. Itäpuolen rajakasvit on valittu yhteistyössä naapurien kanssa.




Kohde 13: Designer 167
5 h+ k+ khh+ s 167 m²
Näytteilleasettaja: Design-Talo, 020 746 3940 Arkkitehti: Aaro Virkkunen, Arkkitehtitoimisto Avarc Oy Energialuokka: B E-luku: 113 Arvioitu lämmitysenergiankulutus (kWh/vuosi): 12 577 Runkomateriaali: puu, suurelementti Lämmitysjärjestelmä: kaukolämpö, varaava takka
Erityistä: Designer-talomalliston arkkitehtuurin perusidea on avaran ja muunneltavan pohjaratkaisun ja suojattujen terassitilojen liittäminen kokonaisuudeksi. Kaupunkimainen mallisto soveltuu myös täydennysrakentamiseen. Asuntomalleja on 93-167 m2. Piha on perusratkaisuiltaan hyvin yksinkertainen. Pintamateriaaleilla ja kasvillisuudella tontti on jaettu kahteen osaan: liikkumiseen ja oleskeluun. Pintamateriaalien kontrasti tekee aluerajauksista yksinkertaiset ja tyylikkäät. Kasvillisuuden sijoitteluilla pihoille on luotu selkeät tilojen rajat. Itäpuolen rajakasvit on valittu yhteistyössä naapurien kanssa.






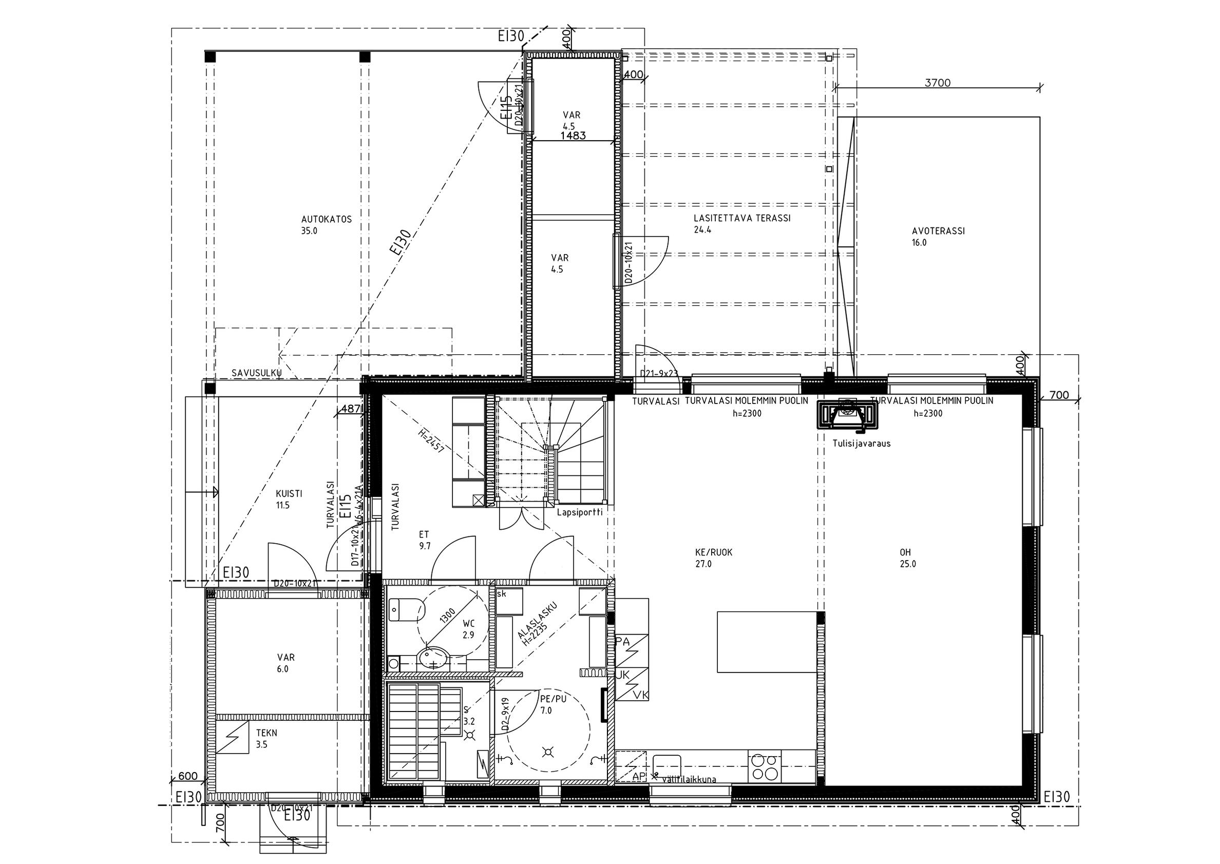
Kohde 14: Kontio Harunire
5 h+ k+ rt+ khh + s 170 m²
Näytteilleasettaja: Kontiotuote, 020 770 7400 Arkkitehti: Olavi Kujanen, Kontiotuote Energialuokka: C E-luku: 136 Arvioitu lämmitysenergiankulutus (kWh/vuosi): 10 011 Runkomateriaali: puu, lamellihirsi 205 mm Lämmitysjärjestelmä: Kaukolämpö
Erityistä: Japanilaisvivahteinen skandinaavisen linjakas puutalo on ulkoapäin pieni, mutta sisätiloiltaan iso. Julkisivuissa on leikitelty muodoilla ja ikkunoiden sijoittelulla. Moni-ilmeisyys jatkuu myös talon sisätiloissa: välipohjan porrastus rytmittää ja yläkerran vino sisäkatto avartaa tiloja. Nykypäivän vaatimukset täyttävässä hirsirunkoisessa talossa aidot materiaalit, hyvä akustiikka, terveellinen sisäilma ja tämän päivän talotekniikka kohtaavat viihtyisissä ja kodikkaissa puitteissa.
Piha on suunniteltu japanilaisen puutarhan pelkistetyn tyylin mukaisesti. L-muotoinen talo jakaa tontin julkiseen sisääntulopihaan ja suojaisaan, etelään ja länteen avautuvaan oleskelupihaan. Kasvit ovat esillä yksilöinä ja ne luovat katseelle luontevia kiinnekohtia. Japanissa talolle istutetaan usein nimikkokasvi. Perhe ihastui Japanin jalavaan. Neidonhiuspuu ja Japanin vaahtera syysväreineen ovat osa lapsuuden maisemia Japanista.






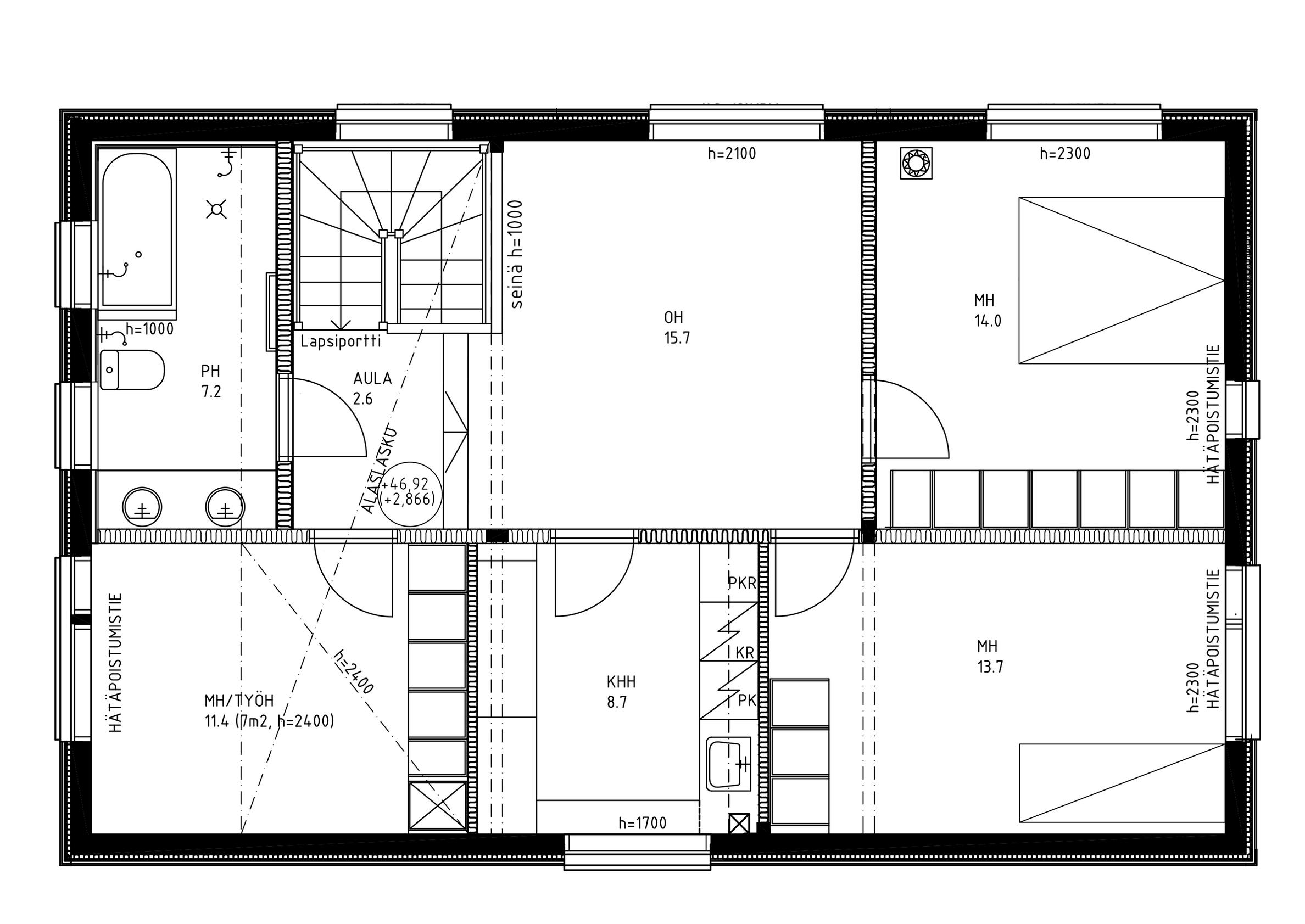
Kohde 15: DEKO 192
5h + k + khh + s 160 m²
Näytteilleasettaja: Deko-Talo Arkkitehti: - Energialuokka: B E-luku: 121 Arvioitu lämmitysenergiankulutus (kWh/vuosi): 11 748 kWh Runkomateriaali: Puu, pre cut Lämmitysjärjestelmä: Maalämpö, varaava takka
Erityistä: Masterbedroomin yhteydessä on ylellisen kokoinen pukeutumistila. Säilytystilat on mietitty tarkoin: talossa on pukeutumistilan lisäksi mm. kaksi vaatehuonetta. Olohuoneen korkea tila tuo asuntoon avaruutta ja valoisuutta. Sisustuksen mukavana yksityiskohtana on mm. keittiön shakkiruutulattia.
Puutarha on asukkaiden toiveiden mukainen yksinkertainen, selkeä ja käytännöllinen. Istutusalueet sijoitettiin tontin reunoille, jotta keskelle jää mahdollisimman paljon nurmialuetta peleihin ja leikkeihin.




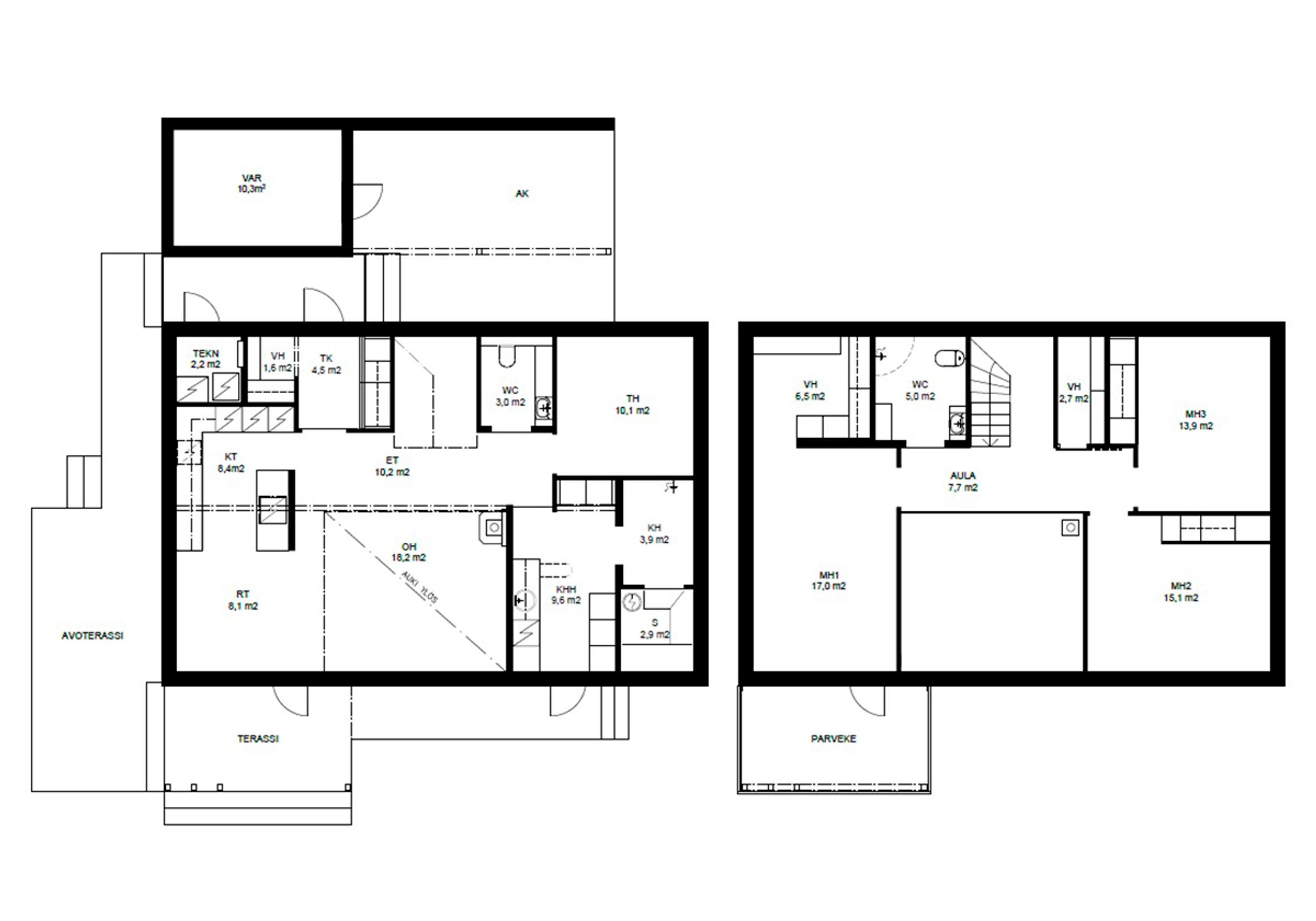
Kohde 16: Talo IsoKivi
4 h + k + rt + khh + harrastetila + s 99, 99 m²
Näytteilleasettaja: Potius, 010 231 1580 Arkkitehti: Tuomas Niemi Energialuokka: B E-luku: 101 Arvioitu lämmitysenergiankulutus (kWh/vuosi): 17 600 molemmat asunnot yhteensä Runkomateriaali: kivi, betonielementti Lämmitysjärjestelmä: Maalämpö
Erityistä: Talo on kappalemaisten betonirakenteiden sommitelma, jossa esivalmistettuina elementteinä toteutetut ”isot kivet” liittyvät toisiinsa suurten lasipintojen välityksellä. Kiven pääraaka-aineet ovat betoni, teräs ja lämmöneriste. Rakennuksen rungossa on käytetty hiertorapatun pinnan lisäksi luonnollista arkkitehtonista lautamuottipintaa. Syvyyttä kiviosiin tuo vahvasti pigmentoitu musta betoni, josta on valettu myös rakennuksen sisäportaat.
Pihan tyyli jatkaa sisältä tuttuja selkeitä linjoja, inspiraatiota on haettu Japanista. Pienessä pihassa on koko tila käytetty hyödyksi. Talon isoilla terasseilla on paljon hyötykasveja, ja näin ne on liitetty osaksi pihamaata.




Kohde 17: Villa Beauty
4h+k+ khh + s + työtilat 171,5 m²
Näytteilleasettaja: Honkatalot, 020 175 8428 Arkkitehti: Janne Kantee/ Honkatalot Energialuokka: C E-luku: 133 Arvioitu lämmitysenergiankulutus (kWh/vuosi): 12 107 Runkomateriaali: Puu, pre-cut Lämmitysjärjestelmä: Maalämpö
Erityistä: Arkkitehtuuriltaan selkeälinjaisen ja modernin talon sydän on keittiön, ruokailutilan ja korkean olohuoneen muodostama tilakokonaisuus. Suunnittelun lähtökohtana oli tehdä terve talo hengittävillä ja hyvän sisäilman takaavilla materiaaleilla sekä rakenteilla. Asuintilojen lisäksi talosta löytyy perheen äidin yrityksen työtilat.
Pihan suunnittelun ja istutuksien valinnassa on ollut lähtökohtana helppohoitoisuus. Talon muoto tekee pihasta suojaisa, jonka keskipisteenä on uima-allas ja sitä ympäröivä terassi. Terassien käytettävyyttä on lisätty markiiseilla.




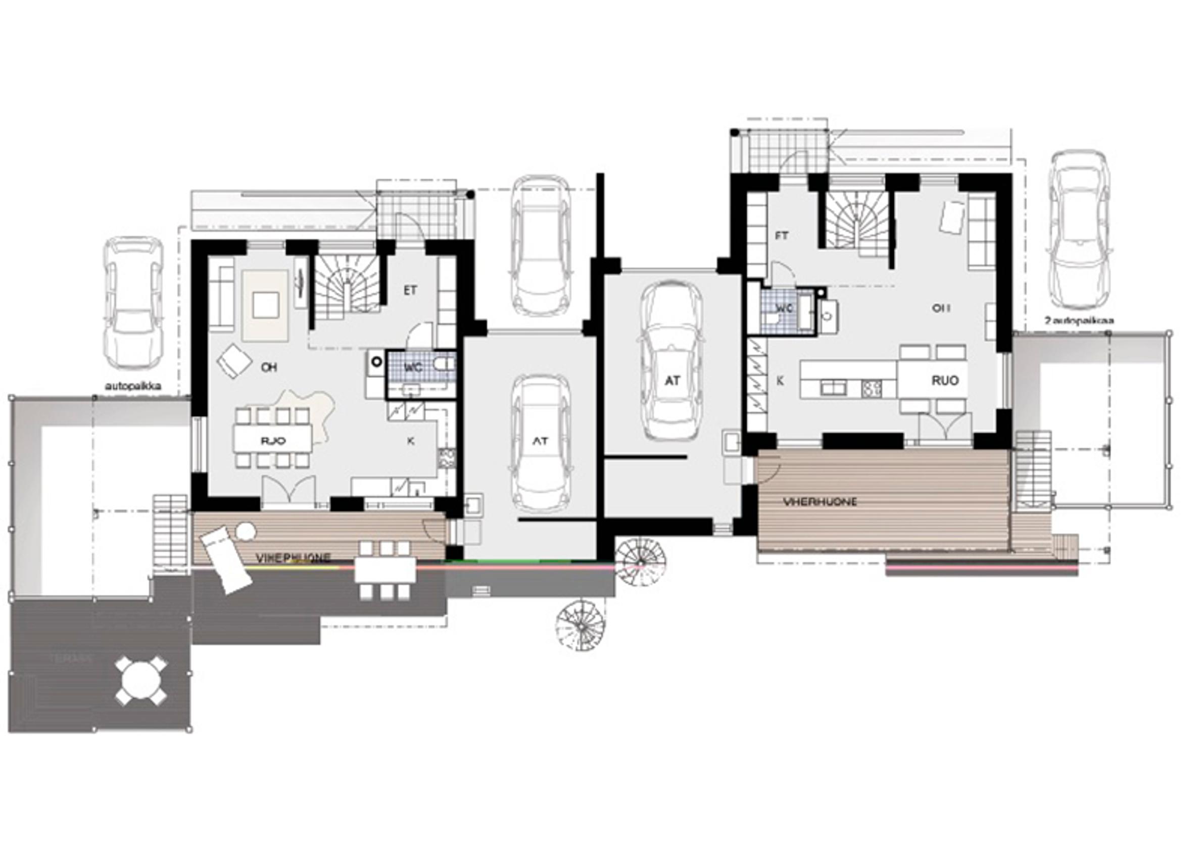
Kohde 18: Honka Savukvartsi
As1: 5h+viherh+k+khh+ s, as2: 2h+k+kph yht. 192 m²
Näytteilleasettaja: Honkarakenne Arkkitehti: Jaakko ja Elizaveta Parkkonen Energialuokka: B E-luku: 123 Arvioitu lämmitysenergiankulutus (kWh/vuosi): 8 711 Runkomateriaali: puu, lamellihirsi (Honka FXL 134) Lämmitysjärjestelmä: Aurinko/puulämmitys -hybridivaraajalla, vesikiertotakka
Erityistä: Ekologinen sukupolvitalo mukautuu tiloiltaan elinkaarensa aikana erilaisiin käyttötarpeisiin. Sisätilojen suunnittelussa on lähtökohtana ollut mahdollisimman esteetön näköyhteys eri ilmansuuntiin. Samoin talon läpi kulkevat näkymälinjat. Kohde on muunnos arkkitehtipariskunnan Honkarakenteelle suunnittelemasta Savu-mallistosta. Rakennusmateriaaleiksi on valittu ainoastaan ekologisia, vähäpäästöisiä, kierrätettäviä ja helposti huollettavia materiaaleja.
Piha on suunniteltu toiminnalliseksi ja esteettiseksi. Hulevedet kerätään kosteikkopainanteeseen, jonka monilajinen ilme luo viihtyisän ympäristön oleskeluterassille. Pihalle on istutettu harmoninen kokonaisuus näyttäviä hyöty- ja koristekasveja. Kasvivalinnat vaihtelevat ympäri pihaa kasvuolosuhteiden mukaan. Pohjoisosassa on varjoisan paikan kasvillisuutta, etupihalla aurinkoisen paikan niittykasveja ja eteläosan puolivarjossa kosteikkokasvillisuutta. Asukkaan toiveesta pihalle on istutettu myös harvinaisempia kokeellisia lajeja kuten erilaiset vaahterat, viiniköynnökset ja tyrni.






Kohde 19: Vivola
4h + k + aula + khp/khh + s 153 m² (+sauna 6 m²)
Näytteilleasettaja: Vivola Arkkitehti: Arkkitehtitoimisto Tapani Takkunen Energialuokka: B E-luku: 116 Arvioitu lämmitysenergiankulutus (kWh/vuosi): 6 721 Runkomateriaali: Ristiinlaminoitu massiivipuu (CLT) Lämmitysjärjestelmä: maalämpö
Erityistä: Massiivipuurunkoisessa talossa ei ole erillistä höyrynsulkua. Massiivipuurunko on myös näkyvänä sisäpintana. Talossa on muun muassa hissi, joten esteettömyys on otettu huomioon. Lisäksi kohteessa on pihasauna.




Kohde 20 a: Rubiinikehä 23
5 h + k + khh + s 194 m²
Näytteilleasettaja: Jalokivitalo Arkkitehti: Ari Mäki-Marttunen Energialuokka: B E-luku: 101 Arvioitu lämmitysenergiankulutus (kWh/vuosi): yhteensä 13 751 Runkomateriaali: kivi, betonielementti Lämmitysjärjestelmä: maalämpö






Kohde 20 b: Kristallikuutio
5 h + k + khh + kuntosali + s 194 m²
Näytteilleasettaja: Jalokivitalo Arkkitehti: Ari Mäki-Marttunen Energialuokka: B E-luku: 101 Arvioitu lämmitysenergiankulutus (kWh/vuosi): yhteensä 13 751 Runkomateriaali: kivi, betonielementti Lämmitysjärjestelmä: maalämpö






Kommentit