
Porin asuntomessut: kohteet 3–15
Porin asuntomessukohteiden 3–15 joukossa on niin erilaisia pientaloja kuin seitsemän asunnon rivitalokin. Täältä löydät Porin asuntomessujen kohteet 3–15 sekä talojen havainnekuvat, pohjapiirrokset ja tekniset tiedot.
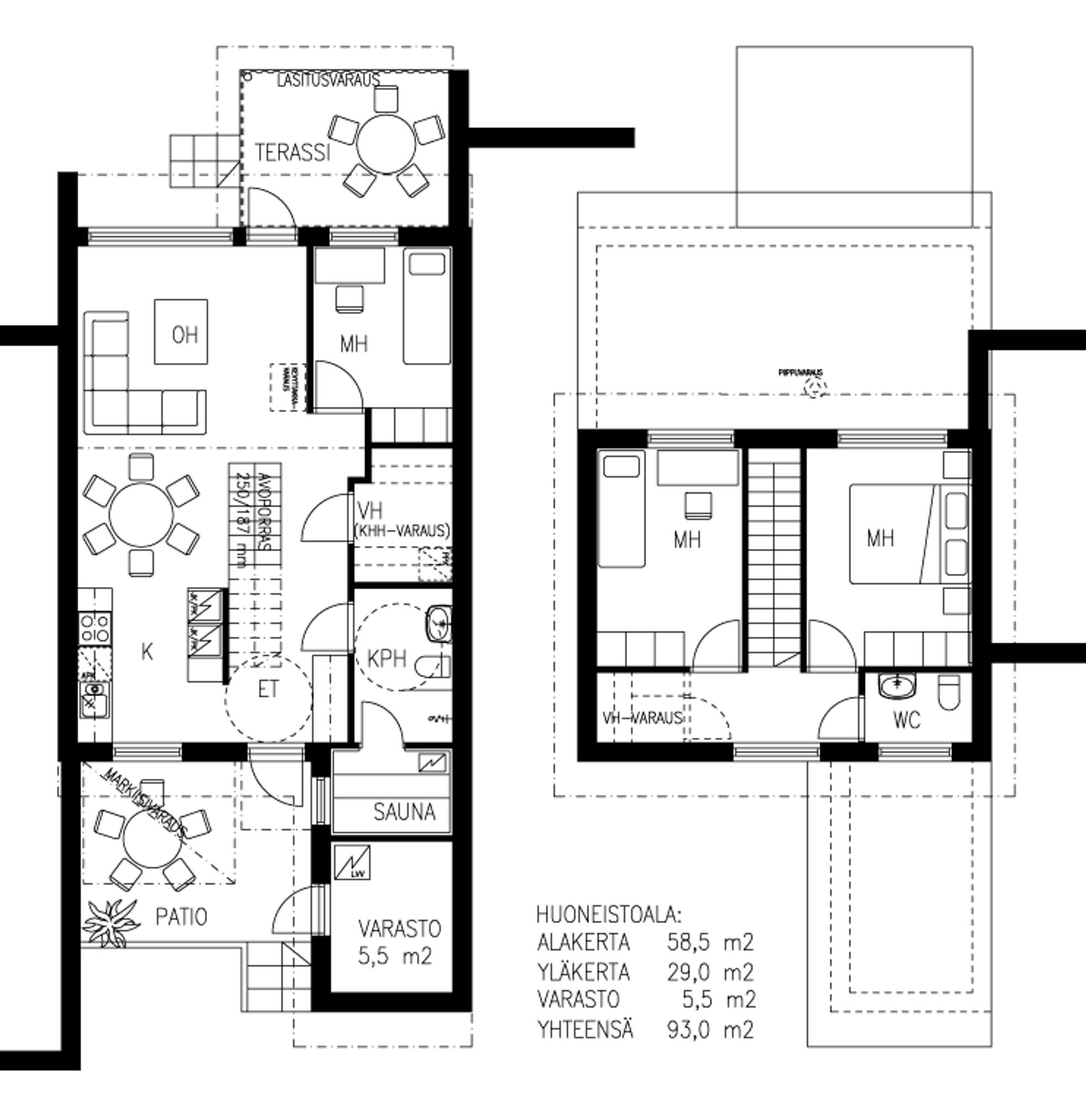
Kohde 3: As Oy Porin Jokisimpukka


Huonejako, kerrosala/huoneistoala: 3–4 h, 93 m² x 7
Näytteilleasettaja: As Oy Porin Jokisimpukka
Arkkitehti: Arkkitehtitoimisto Küttner Ky, Michael Küttner
Energialuokka: C
Lämmitysjärjestelmä: ilma-vesilämpöpumppu
Runkomateriaali: puu
Erityistä: Porrastettu asuntojen linja mukailee joen uomaa, mikä luo arkkitehtuurille uniikin ilmeen. Harmonista kokonaisuutta täydentää venelaituri. Kohteen rakennuttivat seitsemän yrittäjäperhettä.




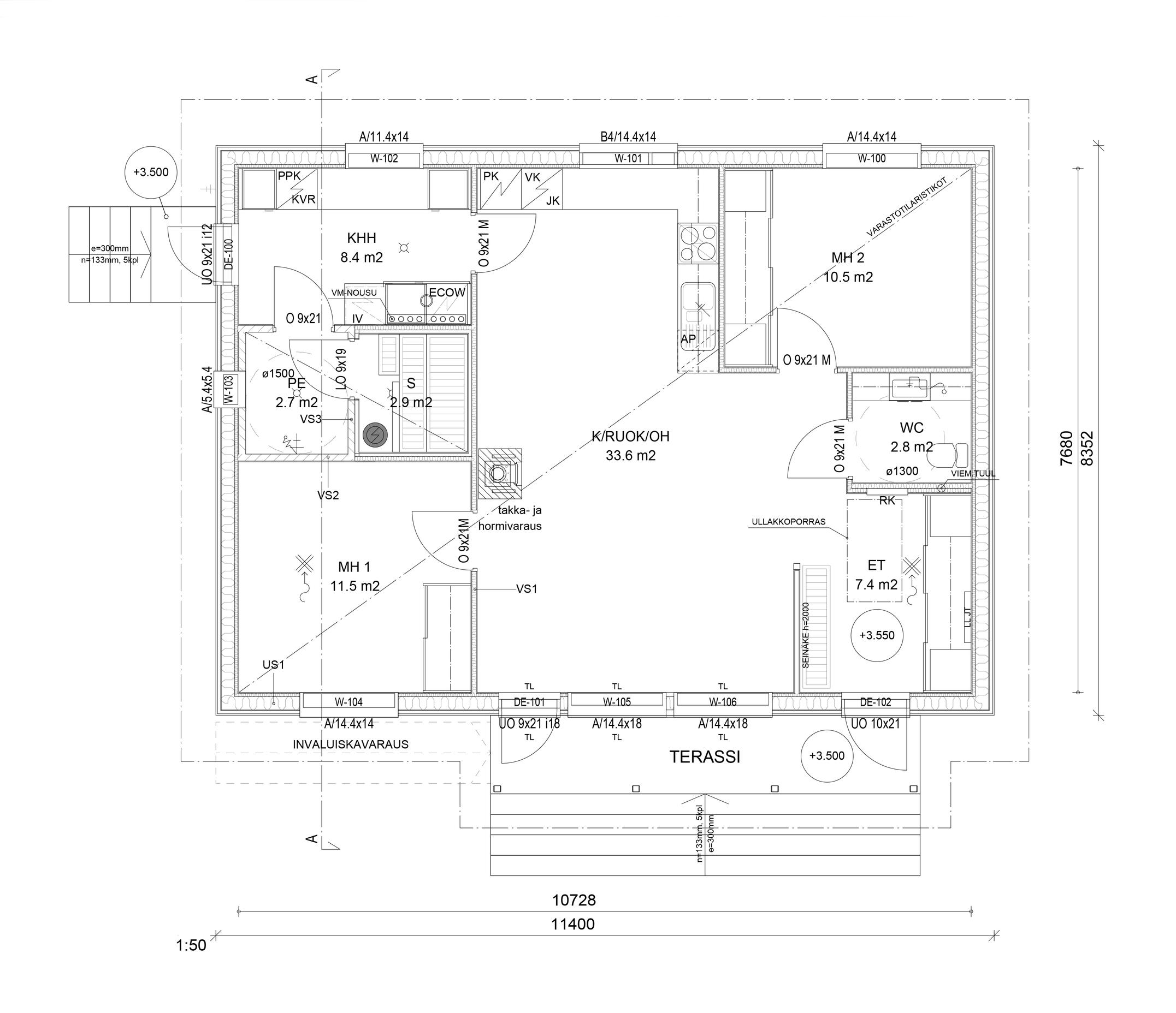
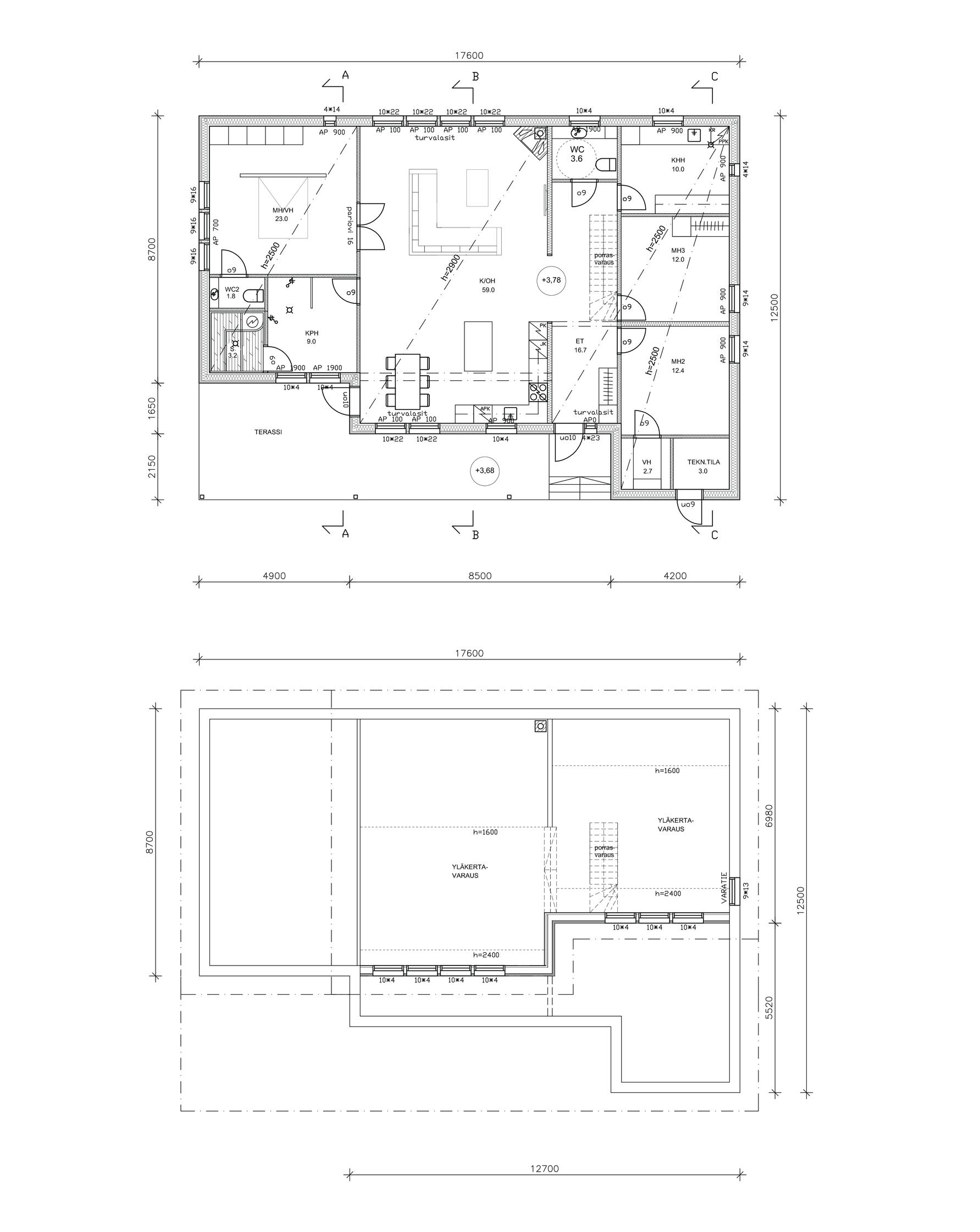
Kohde 4: Fiskarhedenvillan Pohjanvalo


Huonejako, kerrosala/huoneistoala: 6 h + k, 199 m²
Näytteilleasettaja: Fiskarhedenvillan Oy
Arkkitehti: Caroline Norrström
Energialuokka: A
Lämmitysjärjestelmä: ilma-vesilämpöpumppu
Runkomateriaali: puu
Erityistä: Arkkitehtuuriltaan dynaaminen kokonaisuus, jossa katseen vangitsevat rohkeat linjat ja korkeat ikkunat. Suunnittelussa on panostettu erityisesti talon yksityiskohtiin ja muunneltavuuteen.


Kohde 5: Herukka


Huonejako, kerrosala/huoneistoala: 3 h + k, 82,5 m²
Näytteilleasettaja: YH-Asunnot Oy
Arkkitehti: Kastelli, Kaarlo Rohola
Energialuokka: C
Lämmitysjärjestelmä: sähkölämmitys
Runkomateriaali: puu
Erityistä: Eläkeläispariskunnalle suunniteltu koti. Kokonaisuuteen kuuluu myös tilava kahden auton talli autoharrastukselle ja nikkaroinnille.


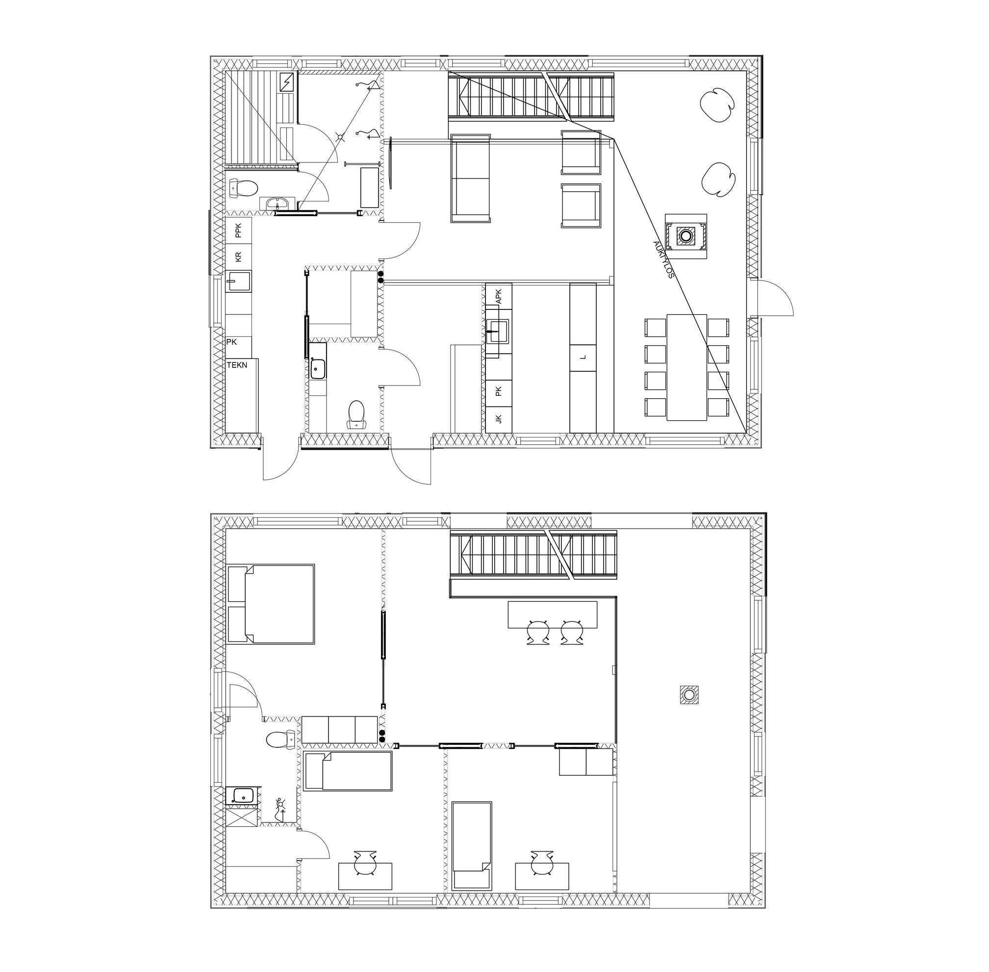
Kohde 6: Design-Talo Noste


Huonejako, kerrosala/huoneistoala: 4 h + k, 133 m²
Näytteilleasettaja: Design-Talo
Arkkitehti: Design-Talo
Energialuokka: C
Lämmitysjärjestelmä: vesikiertoinen lattialämmitys, ilmalämpöpumppu
Runkomateriaali: puu
Erityistä: Kohteen suunnittelussa on huomioitu aktiivinen arki ja perheen koirat, joten erityisesti käytännöllisyydessä ja säilytysratkaisuissa on panostettu kodin toimivuuteen.


Kohde 7: WinNovan Tähti


Huonejako, kerrosala/huoneistoala: 4 h + k, 251 m²
Näytteilleasettaja: Länsirannikon Koulutus Oy WinNova
Arkkitehti: Martin Wolff
Energialuokka: C
Lämmitysjärjestelmä: ilma-vesilämpöpumppu
Runkomateriaali: puu
Erityistä: WinNovan tähti on toteutettu opiskelijatyönä. Myös sisustuksessa ja sen yksityiskohdissa on hyödynnetty paikallisten yritysten ammattitaitoa.


Kohde 8: Jukkatalon Voima


Huonejako, kerrosala/huoneistoala: 4 h + k, 142 m²
Näytteilleasettaja: Jukkatalo Oy
Arkkitehti: Tarja Leiviskä
Energialuokka: B
Lämmitysjärjestelmä: kaukolämpö
Runkomateriaali: puu
Erityistä: Huoneet on jaoteltu toiminnallisuuksien mukaan. Kohteesta löytyy muun muassa liikuntahuone sekä erillinen oleskeluhuone.


Kohde 9: Jukkatalon Taimi


Huonejako, kerrosala/huoneistoala: 4 h + k, 113,5 m²
Näytteilleasettaja: Jukkatalo Oy
Arkkitehti: Jukkatalo Oy, Sari Uusitalo
Energialuokka: C
Lämmitysjärjestelmä: sähkölämmitys
Runkomateriaali: puu
Erityistä: Yhteen tasoon rakennetussa kohteessa on huomioitu erityisen hyvin säilytystilat ja asukkaiden harrastuneisuus. Talosta löytyy muun muassa erillinen askarteluhuone.


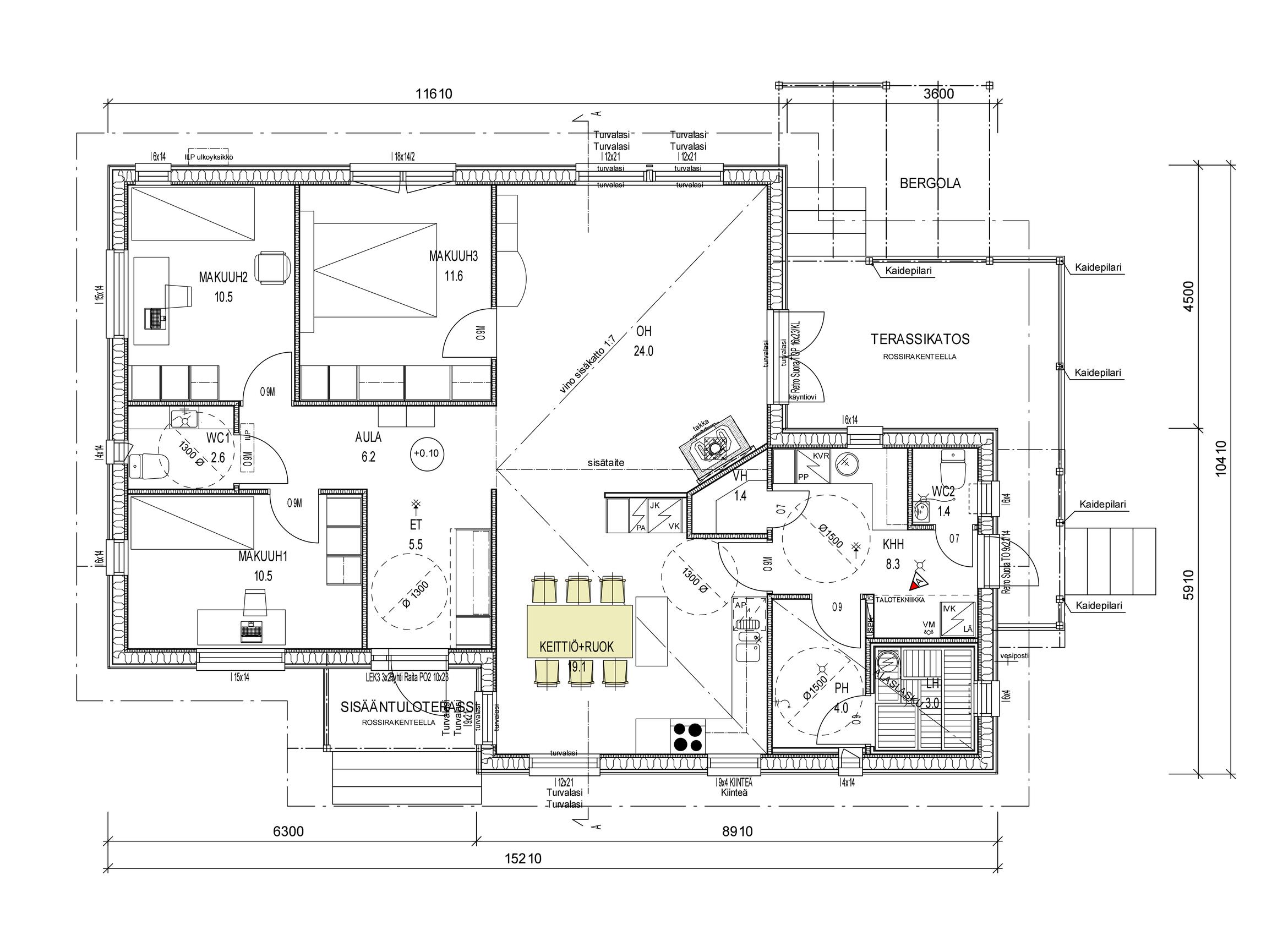
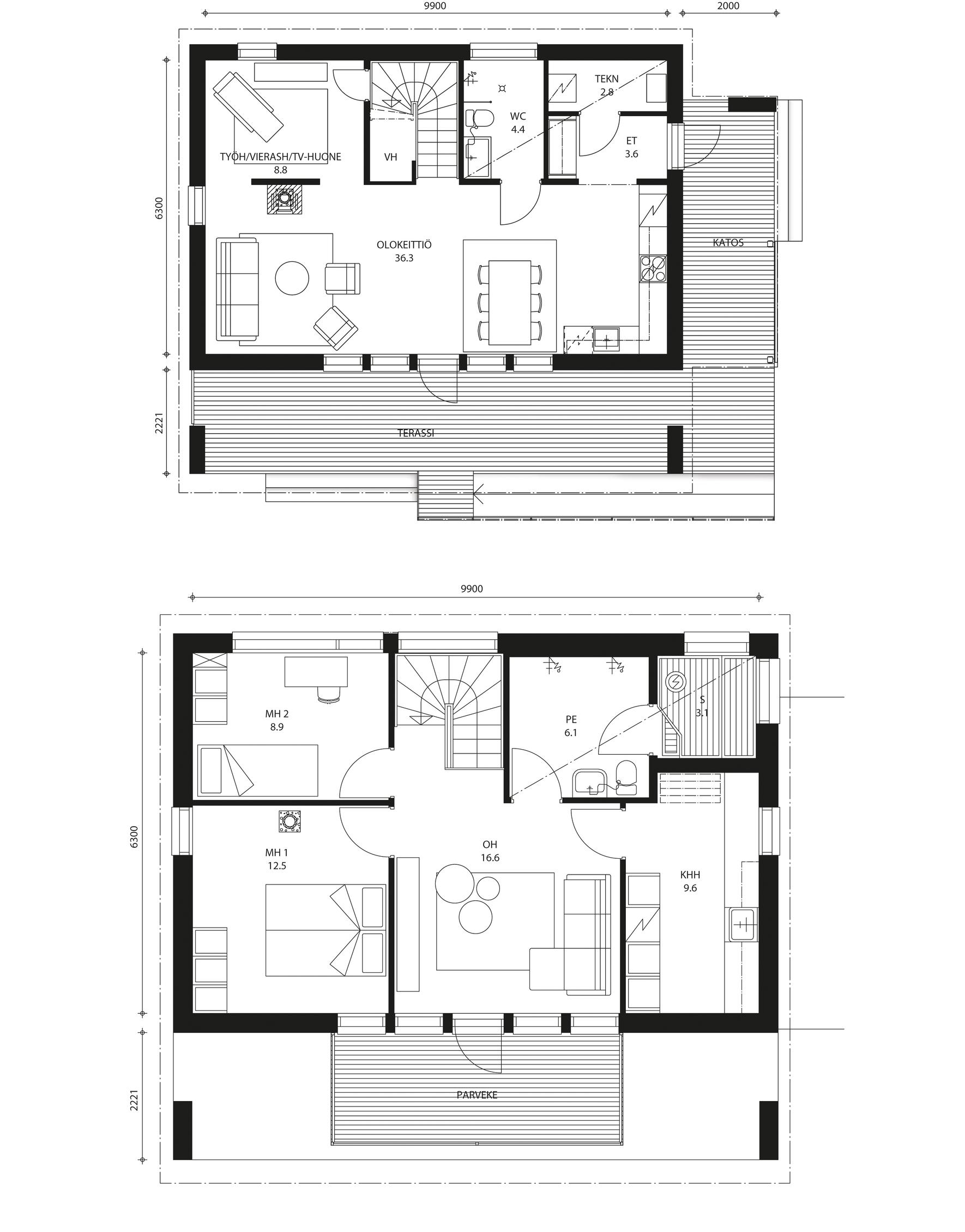
Kohde 10: Pori Energia Valovoima


Huonejako, kerrosala/huoneistoala: 5 h + k, 150 m²
Näytteilleasettaja: Pori Energia
Arkkitehti: Jani Virtanen Oy, Jani Virtanen
Energialuokka: C
Lämmitysjärjestelmä: kaukolämpö
Runkomateriaali: puu
Erityistä: Oleskelutila avautuu suojaisaan atriumpihaan. Korkeat tilat ja ikkunat päästävät sisään runsaasti luonnonvaloa.


Kohde 11: Talo Luvia


Huonejako, kerrosala/huoneistoala: 4 h + k, 159,5 m²
Näytteilleasettaja: Luvian Saha Oy
Arkkitehti: Kaappo Oy, Sini Tuomela
Energialuokka: B
Lämmitysjärjestelmä: vesikiertoinen lattialämmitys, ilmalämpöpumppu
Runkomateriaali: puu
Erityistä: Kohteessa on rakennuttajan itsensä suunnittelema pohjaratkaisu. Avoimet huonetilat mahdollistavat suuren perheen yhdessäolon.


Kohde 12: Sievitalo Kultakoivu 187


Huonejako, kerrosala/huoneistoala: 6 h + k
Näytteilleasettaja: Sievitalo Oy
Arkkitehti: Arkkitehtitoimisto Niskanen, Tapani Niskanen
Energialuokka: B
Lämmitysjärjestelmä: kaukolämpö
Runkomateriaali: puu
Erityistä: Selkeälinjainen talo, joka on suunniteltu erilaisten perheiden tarpeisiin mukautuvaksi.


Kohde 13: Talo Lintula


Huonejako, kerrosala/huoneistoala: 4 h + k, 177,4 m²
Näytteilleasettaja: K-Rauta Satakunnankatu
Arkkitehti: Arkkitehtitoimisto Kirsti Kanerva Ky, Kirsti Kanerva
Energialuokka: C
Lämmitysjärjestelmä: maalämpö, kalliolämpö
Runkomateriaali: puu
Erityistä: Kohde on kaupunkimummila, ”amerikkalainen bungalow balilaisella twistillä ja ripauksella Alvar Aaltoa”. Esteetön koti on suunniteltu palvelemaan myös ikääntyvän asukkaan tarpeita.


Kohde 14: Goto Gloria


Huonejako, kerrosala/huoneistoala: 2 h + k, 77 m²
Näytteilleasettaja: Gloria-Keittiöt Oy
Arkkitehti: Kastelli
Energialuokka: C
Lämmitysjärjestelmä: sähkölämmitys
Runkomateriaali: puu
Erityistä: Kahdelle laatua arvostavalle aikuiselle suunniteltu talo. Kohteen sisustuksessa on käytetty tummia värisävyjä ja rohkeita materiaaleja.


Kohde 15: Kastelli Viva


Huonejako, kerrosala/huoneistoala: 4 h + k, 121 m²
Näytteilleasettaja: Kastelli-talot Oy
Arkkitehti: Arkkitehtitoimisto Jaakko Eskelinen Oy, Jouko Saari
Energialuokka: B
Lämmitysjärjestelmä: kaukolämpö
Runkomateriaali: puu
Erityistä: Pääsisäänkäynti on sijoitettu talon päätyyn, mikä mahdollistaa talon sijoittamisen pienellekin tontille. Suunnittelussa on pyritty huomioimaan hukkaneliöiden minimointi.

