
Keittiön suunnittelu: opas toimivaan ja ergonomiseen tilaan
Keittiön suunnittelussa kannattaa ottaa huomioon neliöiden hyötykäyttö sekä kalusteiden ja koneiden sijoittelu. Näillä vinkeillä suunnittelet toimivan keittiön, jossa arki sujuu helpommin.
Keittiön suunnittelu: vinkit toimivaan keittiöön
Keittiön suunnitteluvaiheessa kannattaa miettiä erityisesti liikeratoja ja ergonomiaa, sillä pieneltäkin tuntuvat asiat voivat sujuvoittaa arkea huomattavasti.
- Tasojen korkeus on ratkaiseva osa keittiön käyttömukavuutta. Työtaso on sopivalla korkeudella, kun käsivarsi on 90 asteen kulmassa ja tasoon on käsivarresta noin 15 cm.
- Tasojen sijoittelulla on merkitystä. Tilaa kannattaa varata tarpeeksi niin työskentelyyn kuin laskutasoiksi.
- Sijoita liesi lähelle vesipistettä, jotta kuuman kattilan kanssa ei tarvitse toikkaroida pitkiä matkoja.
- Ovien ja luukkujen avautumissunnat kannattaa huomioida paitsi toimivuuden myös kulkuväylien kannalta.
- Pistokkeiden paikat vaikuttava osaltaan työskentelyn sujuvuuteen. Sijoita yksi pistoke jokaista 60 cm:n työaluetta kohti. Vesipisteeseen täytyy olla väliä vähintään 20 cm sivusuunnassa ja 50 cm korkeussuunnassa, jos pistorasiassa ei ole kantta.
Keittiön materiaalien valinta
Valitse jo keittiön suunnitteluvaiheessa materiaalit sen mukaan, kuinka pitkään haluat keittiösi kestävän. Laadukas keittiö voi olla investointina iso, mutta se palvelee käytössä kymmeniä vuosia ja vaikuttaa asunnon jälleenmyyntiarvoon.
Keittiömateriaalien tulisi olla myös helposti huollettavia. Kannattaa siis suosia materiaaleja, jotka on tuotettu lähellä ja joiden korjaus tai freesaus onnistuu helposti tarpeen vaatiessa.
Keittiön kodinkoneiden valinta
Kodinkoneet on hyvä valita ennen keittiösuunnitelman teettämistä, jotta niiden tilantarve ja muut sijoitukseen liittyvät vaatimukset voidaan ottaa suunnittelussa huomioon. Jos astianpesukone sijoitetaan kalusterivin päähän, mitoituksissa on syytä huomioida, että astianpesukoneen luukku mahtuu myös avautumaan.
Kylmiä ja kuumia laitteita ei saanut ennen sijoittaa vierekkäin. Nykyisin kodinkoneet ovat niin hyvin eristettyjä, ettei jyrkkiä kieltoja ole enää. Lattialiettä ei tule sijoittaa kylmälaitteiden viereen.
Eri kodinkoneiden tilantarve:
- astianpesukone 30–45 cm:n etäisyydelle lattiasta
- kylmälaite lähelle ruokapöytää
- mikroaaltouuni 90–110 cm:n etäisyydelle lattiasta
- kalusteuuni 70–90 cm:n etäisyydelle lattiasta
- keittotason molemmilla puolilla laskutilaa vähintään 40 cm.
Keittiön valaistus
- Työtasoille tasaisesti ja yhtenäisesti virtaavan valon ääressä on miellyttävä työskennellä.
- Muista, että ledien pistemäisyys ja loisteputkien yhtenäinen valoviiva heijastuvat herkästi kiiltävistä pinnoista, ellei valaisimessa ole valoa hajottavaa opaalikupua.
- Työtasoille pitäisi virrata valoa 500 luksin verran. Lednauhassa olisi siis hyvä olla 15 wattia metriä kohden ja 550 mm:n pituisessa loistevalaisimessa 13 wattia metrille.
Erilaiset keittiötyypit
Keittiösuunnittelun ammattilaiset kehittivät aikoinaan erilaisia keittiötyyppejä, joissa työskentely on mahdollisimman helppoa ja ergonomista. Toimivuuden perusasiat ovat edelleen voimissaan. Pienetkin mitoitusvirheet tai kodinkoneiden ja kaapistojen epämukavat sijoitukset hankaloittavat työn sujuvuutta päivittäin.
I-keittiö


- Kun kalusteet ja koneet sijoitetaan yhdelle seinälle, puhutaan I-keittiöstä. Se on tehokas pienen talouden keittiö.
- Kalusteriviä ei kannata venyttää liian pitkäksi, jotta tehokkuus ja esteettisyys eivät kärsi. Kolme metriä on hyvä pituus. Tosin pari metriä lisää antaa enemmän mahdollisuuksia sijoittaa kodinkoneet sopivalle käyttökorkeudelle.
- Työtasojen paikat ovat ykkösasioita. Keittopisteen ja altaiden väliin tarvitaan laskutasoa vähintään 60 senttimetriä. Kylmälaitteen ja astianpesukoneen käyttö helpottuu, jos niiden läheisyydessä on edes pienikin tason pätkä.
- Kuumaa tuottavaa kodinkonetta ei kannata sijoittaa kylmälaitteen viereen, jotta kylmälaitteen energiatehokkuus ei heikkene. Jos kylmälaitteen viereen on pakko sijoittaa astianpesukone tai kalusteuuni, laadukas uuni on parempi vaihtoehto.
- Työtehoseuran mittausten mukaan hyvin eristetty uusi kalusteuuni ei juuri luovuta lämpöä ulkopuolelle, mutta astianpesukoneesta virtaava kuuma höyry saattaa tiivistyä kylmälaitteen pinnoille ja heikentää tiivisteitä.
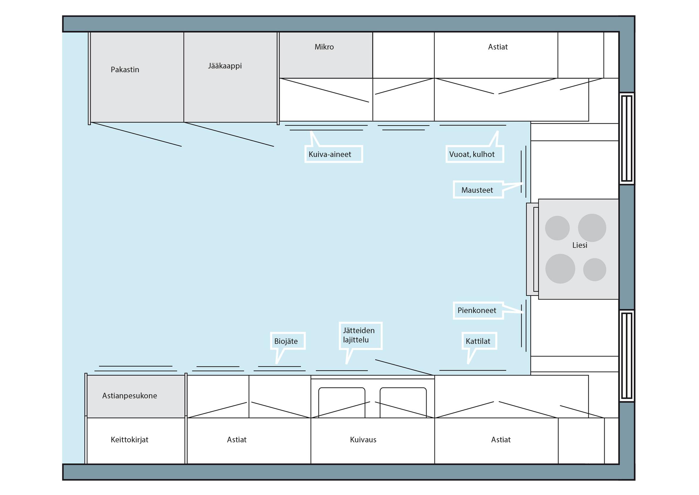
II-keittiö


- II-keittiössä kaapistot ja koneet sijoitetaan kahdelle vastakkaiselle seinälle.
- Kaapistorivien väliin pitäisi jäädä tilaa vähintään 120–130 cm, jotta vastakkain olevat ovet ja laatikostot mahtuvat avautumaan riittävästi. Ylimitoitus taas heikentää toimivuutta.
- Kahden kalusterivin keittiöön saa reilusti yhtenäistä työtasoa ja kodinkoneiden nostaminen hyvälle käyttökorkeudelle on helpompaa kuin I:n mallisessa keittiössä.
- Toimivinta on sijoittaa keittotaso ja vesipiste samalle seinustalle. Näin vältytään vaaratilanteilta kuumia kattiloita keitinvedestä tyhjennettäessä.
L-keittiö


- L-keittiö syntyy sijoittamalla koneet ja kalusteet kahdelle vierekkäiselle seinälle.
- Jos tila on riittävän kokoinen, keittiötyyppi on helpohko suunnitella ja useimmiten kompakti, hyvä perhekeittiö.
- Työ sujuu joustavasti, jos liesi ja astianpesupöytä saadaan sijoitettua samalle seinustalle tai ainakin mahdollisimman lähelle toisiaan.
- Nurkkakaapin sisustaminen perinteisillä hyllyillä on tarjolla olevista vaihtoehdoista huonoin ratkaisu. Hieman toimivampi on kaappi, jossa hyllyt kulkevat ristiin eli toinen hylly pitkittäin ja toinen poikittain. Karuselli on edullisin mekanismi, mutta se myös jättää eniten hukkatilaa.
U-keittiö


- U-keittiö on malliltaan tehokas, mutta melko haasteellinen suunnitella.
- Kaapistorivien keskelle on jäätävä riittävästi lattiatilaa eli noin 160 cm.
- Tilavassa keittiöissä kodinkoneiden nostaminen ergonomisesti hyville käyttökorkeuksille ei juuri tuota hankaluuksia.
- Jos keittiöön on suora näköyhteys oleskelutiloista, astianpesukoneen sijoittamista hyvälle käyttökorkeudelle kannattaa miettiä tarkkaan, jotta kokonaisuus olisi myös esteettisesti harmoninen.
Saarekekeittiö
- Keittiösaareketta ei kannata ahtaa liian pieniin tiloihin.
- Liian kapea saareke ei toimi edes kelvollisena apupöytänä. 180–100 cm:n kokoinen saareke toimii hyvin. Saarekkeen ja kaapistojen väliin on syytä jättää tilaa vähintään 120 cm.
- Keittotasollinen saareke ei toimi hyvin, ellei siihen saada sijoitettua myös pientä kaatoallasta hanoineen sekä kattoon, työpöytätasoon tai perinteisesti keittotason yläpuolelle asennettua liesituuletinta.
- Parhaimmillaan saarekekeittiö on suuren eli noin 16–20-neliöisen tilan ratkaisu.
Asiantuntijat: arkkitehti ja tutkimusvastaava Minna Kuusela ja tutkija Tarja Marjomaa Työtehoseurasta ja mallistosuunnittelija Sirkku Aine Puustelli Group Oy:stä.
Kommentit