
Ennennäkemättömiä ratkaisuja ja uusiutuvaa energiaa! Tutustu Mikkelin asuntomessujen talotekniikkaan
Mikkelin asuntomessujen mielenkiintoisimmat talot hyödyntävät teräs- ja hirsirakenteita, suuria ikkunoita, tehokkaita eristeitä ja uusiutuvaa energiaa. Tässä 10 poimintaa messujen kiinnostavimmasta talotekniikasta.
A-luokan pikkutalo


Energiatehokkuudeltaan messujen ainoa A-luokan talo on pieni, hyvin eristetty ja se hyödyntää vahvasti uusiutuvaa energiaa.
Kahdesta moduulista rakennettu Fortum Koti (kohde 29) on yksikerroksinen. Suorakaiteen muotoinen pohja edistää energiatehokasta rakentamista.
Kahden huoneen ja keittiön talossa on 62 asuin- ja 71 kerrosneliötä sekä koko pitkän sivun mittainen terassi, jonka toinen pääty on lasitettu.
Rakennuttaja Voitto Ahopellon mukaan energiatehokkuuden vertailuluku (E-luku) on 93, joka riittää juuri A-luokkaan.
Seinissä on yhteensä 200 millimetrin polyuretaanieriste sekä 50 millin puukuitueriste (U-arvo 0,09 W/m2K).
Yläpohjassa on 600 mm puhallusvillaa (U-arvo 0,08) ja alapohjassa yhteensä 250 mm polyuretaania, 20 mm Finnfoamia ja 35 mm:n Comfort-uralevy (U-arvo 0,09).
Talon päälämmönlähde on Mitsubishi Electricin ilma-vesilämpöpumppu (maksiteho 7,3 kW). Tukena on saman valmistajan ilmalämpöpumppu. Huomiota herättävintä on kuitenkin etelälappeella leviävä 12 × 5 metrin aurinkopaneelirivistö.
Aurinkosähköjärjestelmästä pyritään ottamaan kaikki mahdollinen irti. Kohteessa on Sonnen-akkujärjestelmä, jonne ylimääräinen energia varastoidaan myöhempää käyttöä varten.
Ilma-vesilämpöpumppua tukee kiertoilmatakka sekä sähkövastus kovimpia pakkasia varten. Lämmönjako on perinteinen vesikiertoinen lattialämmitys.
Talossa on vesien kierrätysjärjestelmä. Sadevesiä ja puhdistettua vettä otetaan talteen eri säiliöihin ja käytetään muun muassa pihan kasteluun.
– Pyrkimyksemme on, että wc:n huuhtelu onnistuisi jo kertaalleen käytetyllä, puhdistetulla vedellä. Suomessa puhdasta vettä vielä riittää, mutta muualla maailmassa sitä arvostetaan toisella tavalla, Ahopelto sanoo.
Talossa on paljon älykkäitä ratkaisuja, joita ohjaa Fortumin SmartLiving -kotiautomaatiojärjestelmä. Ekoasumista täydentää oma sähköauton latauspiste.
Perusasiat kohdallaan


Kohde 14 Uusi Aamu ei kersku eikä pöyhkeile, mutta se on rakennettu energiatehokkaaksi perusasioita kunnioittaen.
Älvsbytalon huoneistoala on 129 neliötä, eli se on noin 15 neliötä messujen keskikokoa pienempi. Puuelementtitalon energialuokka on B ja E-luku 92.
Kohteessa on yksinkertainen pohja ja paksu mineraalivillaeristys. Yläpohjan Uarvo on 0,09 (W/m2K), ulkoseinien 0,14 ja alapohjan 0,17.
Talo on kytketty kaukolämpöverkkoon, ja siinä on kiertoilmatakka. Uusiutuvaa energiaa hyödynnetään mittavan aurinkosähköjärjestelmän avulla. Talon etelälape on varustettu aurinkopaneeleilla, joita on noin 19 neliömetriä.
– Järjestelmän maksimiteho on 3 kW, joka on jo käytännössä todettu monena päivänä, rakennuttaja Ola Muttilainen kertoo.
Maisema haltuun


Saimaan rannalla on poikkeuksellisen kauniit maisemat, joten ei ihme, että monessa talossa on suuret ikkunat.
Ikkunapinta on huipussaan kohteessa 8 Villa Saimaanhelmi, jossa 45 prosenttia julkisivujen pinta-alasta on lasia. Saimaalle aukeavalla puolella molempien kerrosten seinät ovat ikkunaa lattiasta kattoon.
– Etenkin maisema yläkerran makuuhuoneesta sykähdyttää joka kerta. Ikkunoista aukeaa elävä taideteos, joka muuttuu aina sään mukaan, Tiina Maczulskij sanoo.
Honkatalojen omien, kolmikerroksisten HTWS-ikkunoiden lasit ovat laminoidut ja tavallista paksummat.
Energiatehokkuutta parantavaa argonkaasua on molemmissa väleissä. Ikkunoiden U-arvo on 0,7.
Tuplaselektiivirakenteen ansiosta ikkuna suodattaa UV-säteilyä. Ne eivät tarvinneet erillistä auringonsuojakalvoa, joka olisi vain harmaannuttanut lasia.
– Tähänastisen kokemuksen perusteella talossa ei ole liian kuuma tai valoisaa, eli ikkunat toimivat hienosti, Maczulskij kiittää.
Paksujen lasien ansiosta ikkunat eristävät tehokkaasti ääntä. Huoneistoalaltaan 190-neliöisen talon E-luku on 149, ja sen energialuokka on C.
Villa Saimaanhelmen katossa on kotimaiset ItuGraf-säteilypaneelit, jotka sekä lämmittävät että viilentävät taloa tarpeen mukaan.
Jämäkkä teräsrakenne


MinunLOFT-talot ovat teräsrunkoisia, sandwich-kevytelementeistä rakennettuja taloja.
Elementin sisällä on polyuretaaniydin. Se jäykistää kotelorakenteen tukevaksi rakennuselementiksi.
Menetelmällä on mahdollista tehdä hyvin eristettyjä ja energiatehokkaita taloja.
Polyuretaani muodostaa täysin tiiviin ja yhtenäisen eristekerroksen, joka on saumaton, yhtenäinen ja myrkytön. Eriste toimii samalla höyrysulkuna. Materiaali ei homehdu tai mätäne, mikä mahdollistaa terveen rakenteen ja puhtaan sisäilman.
Rakenteen molemmin puolin voi käyttää mitä tahansa pintamateriaalia.
MinunValon (kohde 24) ulkoseinän U-arvo on 0,08. E-luku on 118 ja energialuokka B.
Arjen luksusta


Kylpytynnyrien ja ulkoporealtaiden jälkeen messuilla nähdään aito ulkouima-allas.
Casa WelliKulhossa (kohde 18) ilma-vesilämpöpumppu (Fairland IPH Plus) lämmittää vettä parhaimmillaan 13,5 kW:n teholla. Pienellä helteellä invertterikoneen COP eli hyötykerroin on pitkälti toisella kymmenellä, kun se puskee uimalämpöistä vettä altaaseen.
– Uimakautemme on karkeasti huhtikuulta lokakuulle. Säät toki vaikuttavat, mutta altaan lämmityskustannusten pitäisi olla vain noin 20 euroa kuussa, isäntä Timo Welsby kertoo.
Allas on kotimainen Helmi 630. Metallivahvisteinen lasikuituallas on 6,3 metriä pitkä ja 3,45 metriä leveä. Veden syvyys on noin 125 cm.
Allas talvehtii veden kanssa, kunhan pinta ensin lasketaan noin 30 senttiä reunan alapuolelle niin, että putkisto ja laitteisto tyhjentyvät.
Altaan kansi on tärkeä, sillä se hidastaa lämmön haihtumista ja pitää roskat poissa. Kiskoilla liukuva kansi on matala ja huomaamaton.
Mutta miksi uima-allas Saimaan rannalle?
– Edellisessä talossa oli palju. Aika nopeasti sen käyttö jäi vähälle. Allas tarjoaa enemmän viihdykettä. Lapset voivat leikkiä ja polskia. Vastavirtalaitteella siinä voi uida. Allas on meidän kotimme luksusjuttu.
Huomaamatonta automaatiota


Markkinoilla on edullisia ja kevyitä kotiverkon ja netin kautta toimivia järjestelmiä ja sitten on taloon integroituja järjestelmiä. Kaikkia voi laajasti ymmärrettynä kutsua taloautomaatioksi.
Kotimainen EKE kotiautomaatio on vahvasti jälkimmäistä. Omatalo Ajatuksessa (kohde 3) järjestelmä on toteutettu pääosin langallisesti. Sitä ohjataan pienellä seinään asennettavalla näppäimistöllä ja omalla tabletilla tai tietokoneella, jolla saa yhteyden pilvipalveluun.
Asukkaalle kaikki toimii pääosin huomaamattomasti. Eri puolille asennetut anturit haistelevat lämmitystä, huoneiden hiilidioksiditasoa tai mahdollista palo-, murto- tai vesivuotovaaraa. Järjestelmä esimerkiksi säätää tarvittaessa lämmitystä, lisää ilmanvaihtoa tai katkaisee veden tulon.
Järjestelmä on messuillakin jo vanha tuttu, mutta sitä on jatkuvasti kehitetty.
Hirsibuumi jatkuu


Honka INK (kohde 10) on moderni citytalo, jossa on painumaton ja hengittävä massiivirakenne. Kaupunkiin soveltuva nollanurkka viimeisteleekoruttoman muotokielen.
Seinä on 204 millimetriä paksua lamellihirttä. Sisäseinä voi jäädä suoraan hirrelle, mutta kosteissa tiloissa sisäpuolelle tulee ilmarako, ohut ponttiharkkoseinä, vedeneristys ja pintamateriaali, esimerkiksi laatta.
Hirsiseinän U-arvo on 0,53. Kohteen E-luku on 124 ja energialuokka B.
Myös kohteet 5, 8, 9, 11, 12 ovat hirsirakenteisia.
Ilppi isossa roolissa
Ilmalämpöpumppu saa paljon vastuuta kohteessa 20, sillä laite puskee ilmaa valinnaisesti huoneeseen tai lattian sisään asennettuihin putkiin.
Lämmityskaudella Passiivikivitalon massiivista lattiaa lämmittäviin putkiin siirtyy kuumaa ilmaa myös takasta.
– Emme osaa vielä sanoa, onko puu vai ilmalämpöpumppu päälämmönlähde, koska vasta aika sen näyttää. Aika vähän tämä talo yleensä tarvitsee lämmitysenergiaa, rakennuttaja Santeri Seppälä sanoo.
Käyttövesi lämpiää kesäkaudella aurinkokeräimillä ja talvella sähköllä. Passiivikivitalon energiatehokkuusluokka on B.
Päälämmönlähde messutaloissa:
Kaukolampö 12 kpl
Maalämpöpumppu 11
Ilma-vesilämpöpumppu 3
Puulämmitys 1
Poistoilmalämpöpumppu 1
Ilmalämpöpumppu/puu 1
Suora sähkölämmitys 1
Kohde 4 ei ole listassa, koska se siirretään messujen jälkeen pois.
Talo kyytiin ja menoksi


Modulart Dweller (kohde 4) saapui Mikkeliin rekalla, ja se viedään messujen jälkeen samalla tavalla uuteen paikkaan. CLT- ja teräsrunko on niin jäykkä, että se kestää moduulitalon nostot ja laskut.
Latvialainen talotehdas rakentaa modernit villat tehtaassa ja tuo ne tilaajalle valmiina ja valmiiksi varusteltuna.
Nämä kaikki herkut talosta löytyvät:
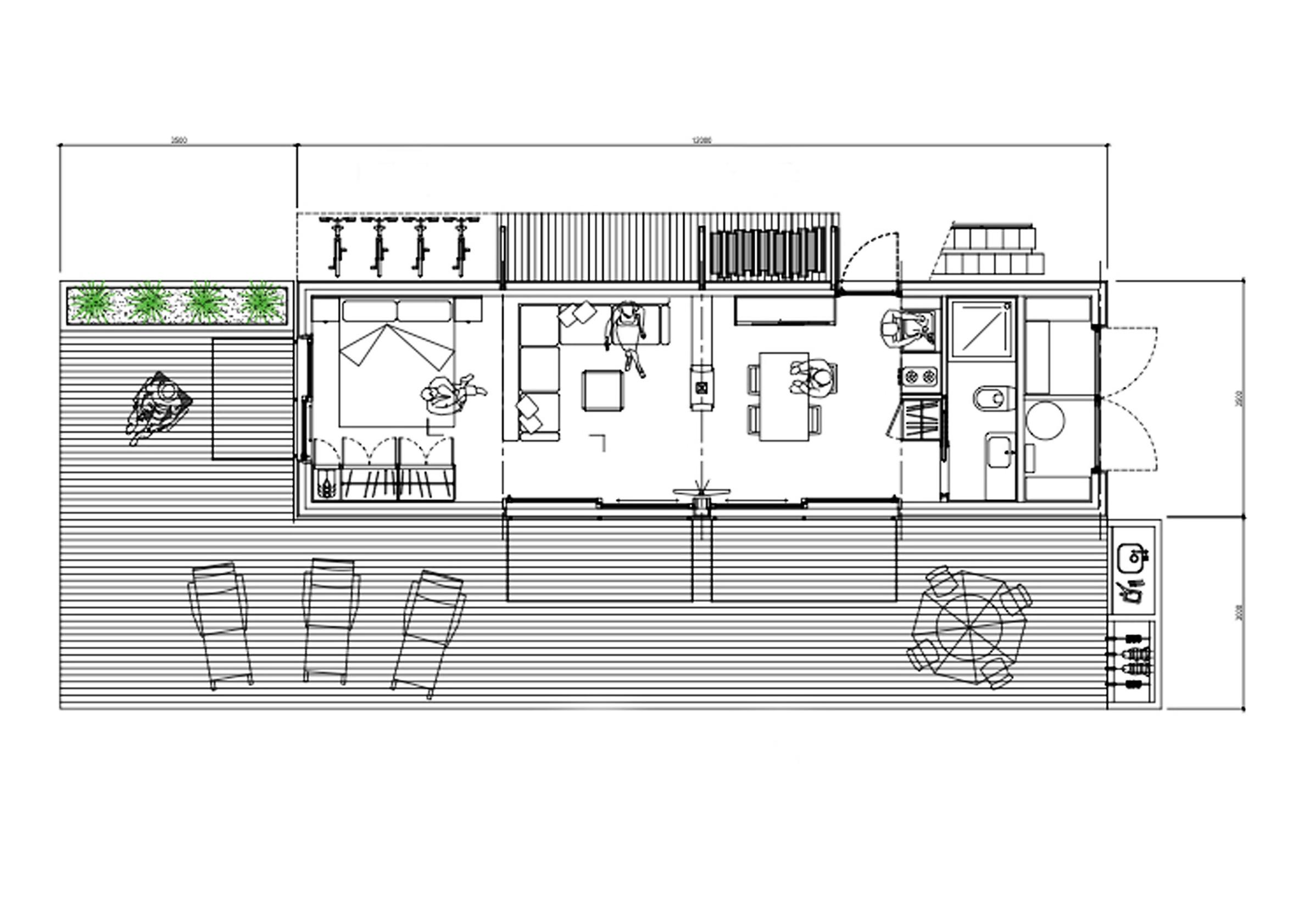
- Pohjan mitat 3,5 × 12 m
- Villa on jaettu eri alueisiin, jotka ovat: tekninen tila (A), kylpyhuone (B), avokeittiö (C), olohuone (D), makuuhuone (E) ja terassi (F)
- Huonekorkeus 2,6 m
- Runko CLT:tä eli ristiin liimattua massiivipuulevyä ja terästä
- 100 mm:n polyuretaanieriste, seinien Uarvo on 0,16, yläpohjan 0,16
- Kolminkertaiset vakioikkunat ja massiiviset liukuovet, U-arvo 0,7 (nelinkertaisina laseina pelkän lasin U-arvo 0,4)
- Sähköinen lattialämmitys (lämpöpumppu vaihtoehtona)
- Takkamahdollisuus
- Ilmanvaihto joka huoneessa
- Osittainen matalavirta
- Himmennettävät ledit
- Keittiö: uuni, keittotaso, liesituuletin, jääkaappi ja astianpesukone, keittiöhana ja lavuaari, seinäkaapisto
- Kylpyhuone: seinä wc piilohuuhtelusäiliöllä, käsienpesuallas ja allaskaappi, suihkukaappi, iso peili, kaakelilattia
- Tekninen tila: sähköpääkeskus, vesivaraaja, vesi- ja viemäriliitokset, liittymät pesukoneelle ja kuivausrummulle
- Katto mahdollista varata oleskelualueeksi tai varustaa se aurinkokeräimillä ja –paneeleilla
- Veroton hinta 45 000 euroa + kuljetus + tontin maatyöt + kunnallistekniikkaliitännät.
Pala kerrallaan


Design-Talo Pala (kohde 2) edustaa uutta ajattelua, jossa talo voidaan rakentaa heti valmiiksi tai elämäntilanteen mukaan osa ja tila kerrallaan. Laajentaminen on myöhemmin suhteellisen helppoa, koska talo kootaan erikokoisista ja toisiinsa istuvista moduuleista.
Puurunkoinen messukohde koostuu peruspalasta, lisäpalasta ja autokatos/varastopalasta. Huoneistoalaa on 122 ja kokonaiskerrosalaa 192 neliötä.
Talon energiatehokkuusluokka on B. Seinien U-arvo on 0,16, yläpohjan 0,08, alapohjan 0,14 ja ikkunoiden 1,0.
Seinissä on mineraalivillaeristys, yläpohjassa puhallettava puukuitueriste. Palaan voi vaihtoehtoisesti valita matalaenergiarakenteen tai puukuitueristyksen.
Kohteet 4 Modulart, 28 Opaali ja 20 Fortum Koti ovat myös moduuli- tai konttirakenteisia.
Kommentit