
Purkukuntoinen talo, pieni budjetti ja taaperoikäiset lapset – Sohvi ja Teemu päättivät rohkeasti pelastaa Unholan
Katto vuoti, yläkerrassa asui oravia ja olohuoneen nurkasta meni nyrkki läpi, mutta silti Sohvi ja Teemu Laine halusivat tarttua projektiin. Kymmenessä vuodessa he remontoivat vanhasta Unhola-hirsitalosta hurmaavan kodin perheelleen.
Harvalla talolla on ollut ostohetkellä niin osuvaa nimeä kuin Sohvi ja Teemu Laineen vuonna 2007 hankkimalla Unholalla. Satunnaisessa kesäkäytössä olleelle vuonna 1914 rakennetulle hirsitalolle nimi Unhola sopi kuin nenä päähän. Aikansa helmi oli todella jäänyt unholaan ja vaille huolenpitoa. Mutta edes se ei estänyt Sohvia ja Teemua ihastumasta rakennukseen ja sen hurmaavaan ympäristöön.
– Talo oli niin erilainen ja uniikki. Kaiken huipuksi asuntonäytössä muistin, että olen mennyt lapsena veneellä jokea pitkin ja katsellut jo silloin erikoisen näköistä taloa, Sohvi kertoo.
3 200-neliöinen vehmas joenrantatontti on lohkottu aikoinaan viereisestä tilasta. Talon rakennuttanut rouva oli matkaillut Amerikassa ja poiminut sieltä vaikutteita rakennuksen persoonalliseen muotoon. Talon joelle päin avautuvalla paraatipuolella oli hulppea avokuisti ja viereisellä seinustalla kaunis erkkeri. Katon rakennekin oli vertaansa vailla.










Purkukuntoisena myytyä taloa oli remontoitu edellisen kerran 1960-luvulla. Seiniä peittivät lastulevyt ja huopamainen kangas. Eristämättömässä yläkerrassa oli kaksi lastulevystä tehtyä kesähuonetta. Peltikatto oli näkyvissä ja yläkerran seinistä paistoi päivä läpi. Rakennuksen alapohjaan ei päässyt, vuotava katto oli aiheuttanut lahovaurioita, olohuoneessa linnunpesän vierestä näkyi pihalle ja nurkasta meni nyrkki läpi. Asukkaitakin talossa oli jo valmiina: Yläkerrassa oli valtava oravanpesä ja katon harjalla lepakoita. Hiiretkin olivat nauttineet olostaan.
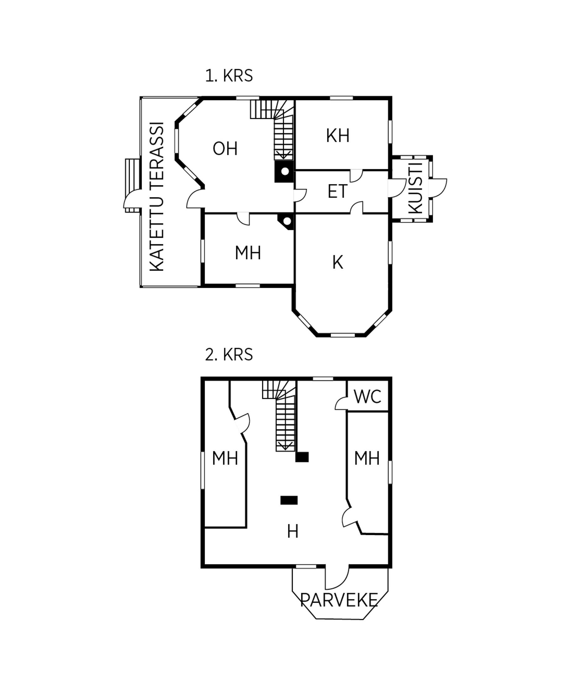
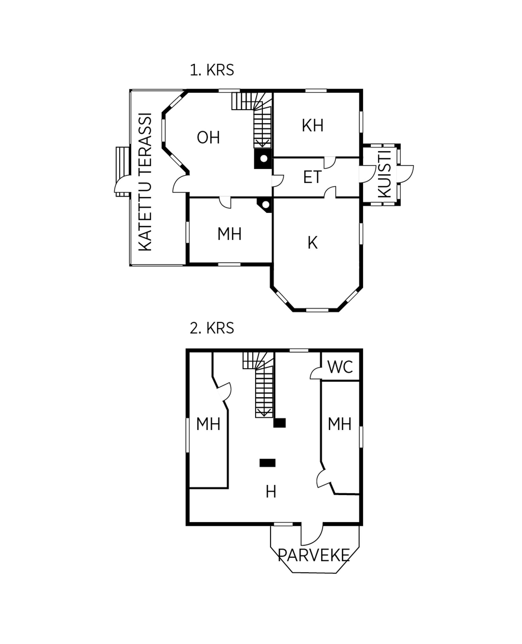
Vuonna 1914 valmistunut talossa on 170 m². Alaosa on hirsirakenteinen ja yläosa puuta. Alakerrassa on keittiö, olohuone, vanhempien makuuhuone ja kylpyhuone. Yläkerrassa on toinen olohuone, aula, lastenhuoneet ja wc. Piharakennuksessa sauna, pesuhuone ja tupa. Tontti on 3 200 m² .
Sohvilla ja Teemulla oli aiempaa remonttikokemusta vain 1940-luvun kerrostaloasuntonsa pintaremontin verran.
– Vanhempani olivat lähinnä kauhuissaan, kun taas Sohvin vanhemmat kannustivat tilan hankintaan. Ostopäätöksen jälkeen he kaikki kyllä panostivat valtavasti hankkeeseemme, Teemu muistelee.
Eikä ihme, että Unhola-projekti kauhistutti, sillä Sohvi opiskeli vielä tuolloin Helsingissä ja lapset Aivi ja Ukko olivat vasta 1- ja 3-vuotiaita.
Viihdymme kotona, koska täällä on aina mielenkiintoista tekemistä meille molemmille.














Sohvin lapsuudenkoti on samalla kylällä kuin Unhola, joten perhe myi kaupunkiasuntonsa ja muutti Sohvin vanhempien luokse. Kun rakennuslupa talon muuttamiseksi kesäkäytöstä ympärivuotiseen käyttöön heltisi, siellä aloitettiin mittava purku-, siivous- ja kierrätysurakka. Irtaimisto sortteerattiin, lastulevyt ja lasivillat poistettiin seinistä ja ala- ja välipohjat aukaistiin. Alapohjassa oli alun perin käytetty eristeenä hiekkaa ja sammalta, joiden päälle aiemmassa remontissa oli lisätty vielä lasivillaa. Kaikki vanhat materiaalit poistettiin, jotta rossipohjasta saatiin jälleen tuulettuva. Katto ja sen rakenteita oli uusittava ja tuentaa lisättävä rakennusinsinöörillä teetettyjen suunnitelmien mukaan.














Vanhan rakennusperinnön säilyttäminen on ollut koko remontin kantavana ajatuksena.
Sohville ja teemulle oli itsestään selvää, että talo remontoitaisiin perinteisin menetelmin, mahdollisimman paljon vanhaa säästäen ja hengittäviä materiaaleja käyttäen. Vanhan rakennusperinteen vaaliminen on heille tärkeää.
– Työmaalla ei naulapyssyä nähty. Kaikki on tehty ja tehdään edelleen vasaralla ja nauloilla, Teemu toteaa.
Pariskunta on tehnyt sähkö-, putki- ja peltitöitä lukuun ottamatta kaiken itse.
– Budjettimme oli tosi niukka. Osittain luhistuneesta saunasta kierrätimme terveet hirret, jotka käytettiin talon hirsivaurioiden korjaamiseen. Kaikki muukin käyttökelpoinen materiaali otettiin talteen, Sohvi sanoo.
Kun kosteus- ja lahovaurioiden eteneminen oli pysäytetty, talon runko sai jäädä tuulettumaan. Sillä aikaa puretun saunan paikalle nousi arkkitehti Juhani Bomanin suunnittelema piharakennus, jossa oli parin toiveiden mukaisesti saunan ja pesutilan lisäksi tupa keittopisteineen sekä makuutilat parvella.
Puolentoistavuoden yhteisasumisen jälkeen perhe pääsi muuttamaan piharakennukseen vuonna 2009.
– Ajatella, täällä kokkailin meille ruoat ja lapsetkin olivat vielä niin pieniä, Sohvi muistelee piharakennuksen tuvassa.
Piharakennus antoi parille aikaa päärakennuksen suunnitteluun, jota Sohvi ja Teemu kuvaavat suurpiirteiseksi.
– Kävimme Hvitträskissä, Halosenniemessä, Fiskarsissa ja Metsänkylän navetassa etsimässä ideoita. Loviisan vanhat talot -tapahtuma oli myös inspiroiva, Sohvi sanoo.
Suunnittelua ohjasi yhteinen näkemys, mutta tilojen sijoittelun kohdalla talo saneli kaatojen ja vesipisteiden paikat. Esimerkiksi entisen keittiön, nykyisen kylpyhuoneen kohdalla oli maakellari, joka oli täynnä vettä.
– Vesiputket vedettiin sitä kautta taloon. Maakellari tyhjennettiin ja peitettiin, Teemu kertoo.






talon kunnostaminen helpottui, kun perhe asui samalla tontilla. Remontti eteni hiljalleen ja opetti tekijöilleen uusia taitoja, kuten Sohville kylpyhuoneen laatoitusta ja Teemulle hirsitöitä.
– Tekemistä helpotti se, että talossa oli menossa useita erilaisia työvaiheita. Kun yksi homma alkoi kyllästyttää, oli helppo siirtyä tekemään jotain muuta, Teemu kertoo.
Perhe muutti taloon alakerran valmistuttua, ja remontti jatkui hiljalleen yläkerrassa. Parvekkeen lisäksi yläkertaan rakennettiin avointa oleskelu- ja työtilaa, wc sekä lapsille omat huoneet.
Projektit eivät suinkaan ole loppuneet talon valmistumiseen. Pihasauna on jo ehditty kertaalleen remontoida, ja talon nykyiselle paraatipuolelle Sohvi ja Teemu rakensivat lasikuistin. Suunnitteilla on ainakin venetalas joenrantaan ja savusaunastakin on ollut puhetta. Viimevuodet pariskunta on keskittynyt puutarhaan.
– Askaroiminen on meille elämäntapa ja kivaa yhteistä tekemistä, Sohvi summaa Unholansa pihamaalla.





















