
Neljä asuntoa satavuotiaassa puutalossa yhdistettiin hurmaavaksi kodiksi – ”Tämä talo on yhdenlainen huvikumpu ja siksi niin ihana”
Lotta-Pia ja Kari ostivat lisää tilaa asunto kerrallaan vanhasta puutalosta. Kun he saivat koko talon omistukseensa, se remontoitiin persoonalliseksi kodiksi kierrätysmateriaaleja hyödyntäen.
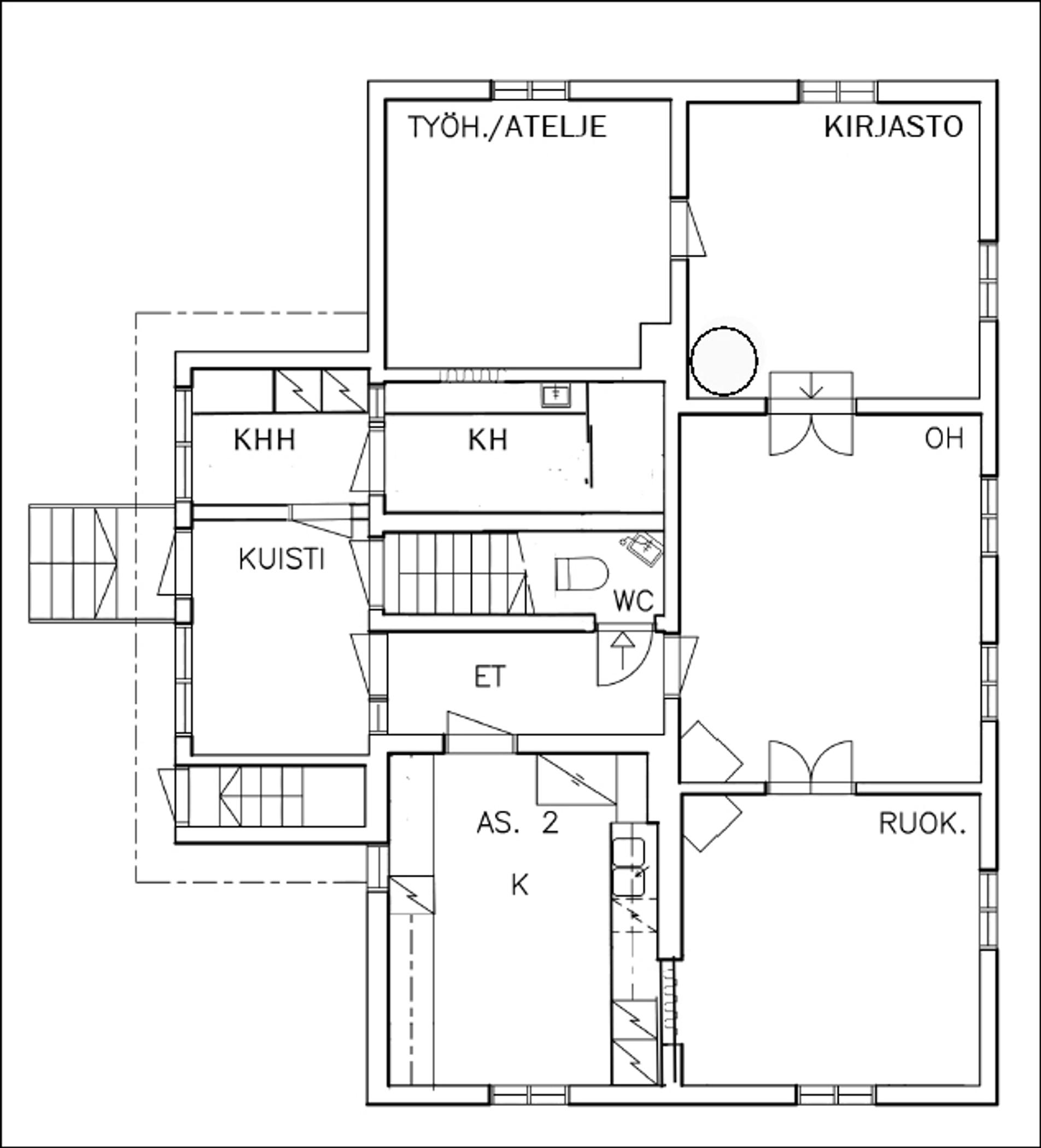
Lotta-Pia Kallio tuijottaa näkymää olohuoneen ovelta ruokasalin läpi kirjastoon ja toteaa naurahtaen, että talo on valtavan vino.
– Lattiat ovat eritasossa. Ja ovet lenkottavat. Mikään ei ole vaaterissa, hän tarkentaa.
Salolaisen Kallion perheen kodin seinien tai kattojen kulmat eivät ehkä ole talonrakennuksen oppikirjasta, mutta tunnelma 1920-luvun hirsitalossa on kohdillaan.
– Tämä talo on oikeasti yhdenlainen huvikumpu ja siksi niin ihana.


Palataan hetkeksi 1990-luvun alun Saloon, missä nuoripari Lotta-Pia ja Kari Kallio etsi ASP-lainan ehtoihin sopivaa kotia.
– Lähdimme lehti-ilmoituksen perässä katsomaan kiinnostavan oloista kerrostalokaksiota. Talon edessä ihmettelimme, että olimmeko ollenkaan oikeassa paikassa, kun osoitteessa oli vastassa mansardikattoinen puutalo, Lotta-Pia kertoo.
Myynnissä oli talon eteläpäädyn katutasossa sijaitseva kahden huoneen ja keittiön kokonaisuus, jossa oli 60 neliötä.
– Kai asunnon voi ostaa ihan vaikka sillä perusteella, että siellä on hienot keittiönkaapit? Lotta-Pia naurahtaa.
Ensimmäinen neljännes asunto-osakeyhtiöstä ja ensimmäiset 50-luvun keittiönkaapit olivat pian Kallioiden omistuksessa.
– Emme kyllä alussa ajatelleet, että joskus omistavamme talon kaikki neljä asuntoa, Lotta-Pia sanoo.



Olohuoneen uusrokokoosohvalta aukeaa kaunis näkymä koko alakerran läpi.
– Tuossa oli yhdessä vaiheessa porras yläkertaan ja tuolla seinässä oviaukko keittiöön, sohvalla istuva Lotta-Pia sanoo ja osoittelee olohuoneen eri nurkkia.
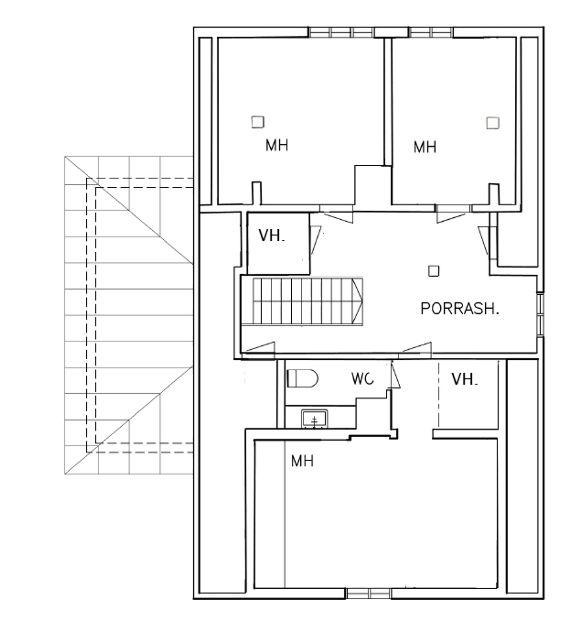
30 vuodessa Kallioiden kodin pohjaratkaisu on elänyt perheen ja neliöiden kasvaessa. Aivan aluksi nuorenparin kotina oli nykyisen keittiön, olohuoneen ja ruokasalin kokonaisuus. Muutaman vuoden asumisen jälkeen Lotta-Pialle ja Karille tarjoutui mahdollisuus ostaa asunnon yläpuolella oleva 31 neliön vinttiasunto.
– Talon porraskäytävä oli siihen aikaan kylmää tilaa, joten rakensimme oman portaikon yläkertaan.
Uusille asuntokaupoille päästiin 2002, kun talon toisessa päädyssä oleva hellahuone vapautui.
Uudesta yläkerran huoneesta tuli vanhempien makuuhuone ja pieni wc. Uusille asuntokaupoille päästiin vuonna 2002, kun talon toisessa päädyssä oleva hellahuone vapautui.
– Puhkaisimme oven nykyisestä ruokasalista ja saimme jälleen 30 neliötä lisää tilaa.




Laajennuksen myötä perhe sai Lotta-Pian nykyisen työtilan ja kirjastohuoneen, joita molempia on käytetty myös lastenhuoneina.
Vihdoin vuonna 2011 koko talo oli Kallioiden. Viimeisen neljänneksen eli yläkerran päädyn hellahuoneen myyntiä vauhditti omalla karulla tavallaan vinttiasunnon rikkinäinen vessanpönttö.
– Mietimme, että hetkinen, miten kirjastohuoneen seinällä valuu vettä, vaikka ulkona ei edes sada.
Vesivahinkoon päästiin onneksi reagoimaan heti, eikä se ollut ehtinyt kostuttaa eristeitä laajalta alueelta. Kunnollinen kuivatus riitti.
– Neuvottelimme hellahuoneen omistajan kanssa jonkin aikaa tilanteesta ja lopulta päädyimme tekemään kaupat siitä, Lotta-Pia kertoo.


Kun pönttöepisodista oli kulunut seitsemän vuotta, oli aika kääriä hiat. Välissä oli maalattu talo sekä kunnostettu piharakennus ja vanhat ikkunat. Omien remonttifantasioiden selkiyttämiseksi ja lopullisten vaihtoehtojen lukitsemiseksi remonttiprojektiin pyydettiin avuksi arkkitehti ja rakennuskonservaattori.
– Mietimme yhdessä, mitä talolle pitäisi tehdä. Pitäisikö se nostaa? Pitäisikö se suoristaa? Vai purkaa palasiksi ja koota uudelleen? Lotta-Pia sanoo.
Lopulta Kalliot päättivät olla kajoamatta rakennukseen sen enempää, sillä se ei liiku enää. Taloa ei 100 vuotta sitten rakennettu vinoksi, vaan sen kohtaloksi ovat koituneet modernin ajan hienoudet.
– Tämä tontti sijaitsi alun perin kaupungin ulkopuolella maaseudulla. Kaupunki kasvoi ja 1950-luvulla talon edessä kulkeva soratie korvattiin asfaltilla. Alkuperäisissä suunnitelmissa kadusta piti tulla leveäpi, minkä vuoksi sadevesiviemäri rakennettiin aivan talon kulmalle.
Remontissa selvisi, että talo on rakennettu todennäköisesti 1800-luvun alun talon hirsistä.
Valitettavasti tien rakentaminen vaikutti pysyvästi muuhunkin kuin kaupunkikuvaan. Lotta-Pia piirtää ilmaan kahdesta nurkasta venytetyn suorakaiteen
– Katujen kanssa samaan aikaan rakennettiin kaupungin viemäröintiä. Se kuivatti tontin, minkä seurauksena talon runko alkoi elää. Hirsirunko on nykyisin kuin salmiakki. Lapset sanovat meidän joka suuntaan vinoa taloamme vekkulaksi.
Kallioiden suunnitelmissa olikin lopulta remontoida vain uusi kylpyhuone ja saada sen myötä toimivampi arki. Aikaa budjetoitiin kolme kuukautta. Purkutöiden alettua kuitenkin selvisi, että työtä olisi enemmän ja remontti laajenisi koko taloon.
– Uuden kylpyhuoneen 50-luvulla tehty viemäröinti vaati uusimista. Päätimme sitten samalla uusia ja järkeistää kaikki viemärit ja vesijohdot sekä tehdä taloon vesikiertoinen lämmitys, Lotta-Pia toteaa.



Koti tyhjennettiin remontin alta pihalle tuotuun konttiin vuodenvaihteessa 2018–2019.
Ammattilaiset rakensivat uuden kylpyhuoneen sekä asensivat sähköt ja putket. Kalliot vastasivat itse muista remonttitöistä.
Alun perin neljäksi asunnoksi rakennetun talon vesi- ja viemäriputkissa oli aluksi setvimistä.
– Putkimies ihmetteli, mihin keittiön viemäri oikein laskee. Hän seurasi putkea talon ympäri ulos pihamaalle. Selvisi, että vesi oli mennyt ohi viemäristä ja lannoittanut pihakoivua viimeiset 20 vuotta.
Myös sähkömiehellä oli uutisia. Hän totesi perheen olleen onnekas, ettei talo ollut palanut vanhojen sähköasennusten vuoksi.
”Lattiat ovat eritasossa. Ja ovet lenkottavat. Mikään ei ole vaaterissa.”
Oman twistinsä projektiin antoivat myös vinot lattiat, joita oli jo yritetty suoristaa eri remonttien yhteydessä. Lattioiden alapohjat eristettiin, lahonneet aluslaudat korjattiin ja tarkistettiin, että niskat olivat kunnossa. Lattioiden korkoerojen kanssa pähkäiltiin etenkin vesikiertoisten lämpöpattereiden asennuksen yhteydessä.
– Ikkunoiden korkeus suhteessa lattiaan vaihtelee huonekohtaisesti ja saimme jännittää, miten patterit mahtuvat ikkunoiden alle, Lotta-Pia kertoo.



Kylpyhuone rakennettiin harkkotiilistä irti hirsirakenteisia. Näin kylpyhuoneen seinän ja hirren väli tuulettuu, mikäli sinne pääsisi kosteutta. Märkätilan lattian alle tehtiin lisäniskat, joiden päälle asennettiin vesivaneri, eriste ja vesikiertoinen lattialämmitys valuineen.
– Kylpyhuone on nyt oma möhkäleensä, joka on irti muusta rakenteesta hirsikehikon keskellä.
Myös talon edessä oleva kuisti uusittiin. Asuntoihin oli alun perin kulku avokuistin kautta, joka oli 1950-luvun remontissa muutettu umpikuistiksi. Nyt siitä lohkaistiin tila kaivatulle kodinhoitohuoneelle.
– Mietimme ensin kodinhoitohuonetta kylpyhuoneen yhteyteen, mutta remontin edetessä päädyimme tekemään erillisen tilan, joka on osoittautunut hyväksi valinnaksi.
Lotta-Pialle vanhan talon fiilis syntyy yksityiskohdista. Pieneltä tuntuvat asiat voivat olla ratkaisevia kokonaisuuden kannalta.
– Esimerkiksi meillä vanhojen ikkunoiden lasit ovat puhallettua eivätkä vedettyä lasia. Puhalletun lasin löytäminen on vaikeampaa kuin vedetyn, jota yleensä tarjotaan vanhojen ikkunoiden korjaamiseen.

Kiinnostus ekologiseen rakentamiseen ja kestäviin valintoihin näkyy koko kodissa. Kolmekymmentä vuotta sitten ihastuttaneet keittiönkaapit ovat nekin yhä paikallaan. Kaappeja on hankittu lisää vuosien varrella.
– Kari muokkasi kaapistot sopimaan yhteen. Vaikka ne näyttävät samalta niissä on pieniä mittaeroja, mutta sehän vain lisää niiden viehätystä.
Ja kestävästä rakentamisesta on hyvänä esimerkkinä talon runko. Remontissa selvisi, että talo on rakennettu todennäköisesti 1800-luvun alun talon hirsistä.
– Hirsistä löytyi niin vanhoja tapettifragmentteja, etteivät ne sovi 20-luvulle, Lotta-Pia kertoo.


Remonttibudjetti:
- LVI 25 000 €
- Sähkö 7 000 €
- Rakennustyöntekijöiden palkat 45 000 €
- Sahatavara 6 000 €
- Maalit, hanat ja muut tarvikkeet 8 000 €
Yhteensä 91 000 euroa.