
Rintamamiestalon yläkerta avartui kierrätysremontissa – kekseliäs piilokaappi tuo kaivattua säilytystilaa!
Kun rakennusarkkitehti Anna Niemelä remontoi rintamamiestalonsa yläkertaa, piirtyivät suunnitelmat maalarinteipillä lattiaan. Anna kertoo, kuinka viistokattoinen tila hyödynnettiin viimeistä kuutiota myöten.


Ostimme Oulusta, idylliseltä puutaloalueelta, vuonna 1945 rakennetun rintamamiestalon. Vuosikymmenten varrella taloon on tehty paljon muutoksia ja sitä on modernisoitu. Se on myös laajamittaisen pintaremontin tarpeessa.
Pyrimme palauttamaan sisätiloihin vuosikymmenten takaista tunnelmaa perinteisillä ratkaisuilla ja materiaaleilla. Haluamme myös hyödyntää ja säilyttää olemassa olevia materiaaleja. Jos uutta tarvitaan, suosimme kierrätettyjä rakennusmateriaaleja.
Samalla kun uusimme pintoja, muutamme huonejärjestystä. Haluamme, että huonejärjestys on mahdollisimman selkeä ja palvelee arkielämää.
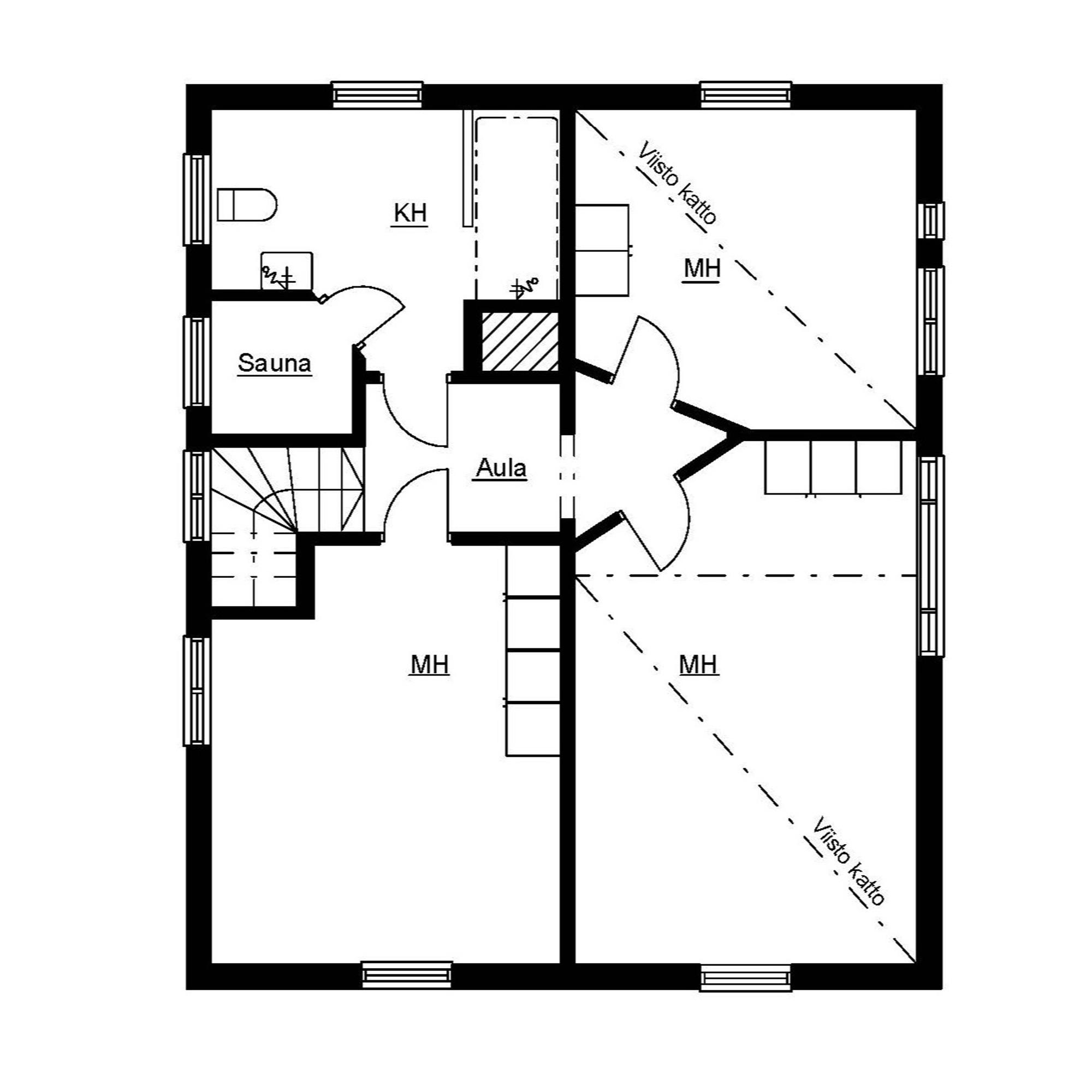
Aloitimme remontin yläkerrasta, jossa on kolme makuuhuonetta ja kylpyhuone.
Talon entiset asukkaat olivat jakaneet suuren makuuhuoneen kahdeksi. Aulatila oli kolmion muotoinen. Halusimme selkeyttää seinälinjaa ja muuttaa aulatilan neliskanttiseksi, että huoneiden kalustaminen olisi helpompaa ja tilojen välinen näkymä olisi linjakkaampi.
Talon läpi menevä kantava sisäseinälinja rajoitti kuitenkin tilojen avartamista sen verran, että aulatilan keskellä olevaa vanhaa oviaukkoa ei pystynyt suurentamaan kevyin muutoksin. Silti tila avartui mukavasti, kun poistimme karmit aukon ympäriltä ja nostimme aukon yläreunan samaan tasoon aulan alakaton kanssa.
Näin yläkerran aulan pohjaa muutettiin





Suunnittelen ja piirrän työkseni tiloja muille, mutta oman makuuhuoneeni muutospiirustukset vedin maalarinteipillä lattiaan. Tämäkin keino auttaa hahmottamaan tiloja, kun myös huonekalujen paikat voi halutessaan teippailla lattiaan. Näin kokonaisuutta voi tarkastella oikeassa koossa.
Huonekorkeus tilan korkeimmassa kohdassa on lähes 3,5 metriä. Olimme jo pystyttämässä uusia seiniä, kun keksimme, että voisimme hyödyntää aulatilan päälle jäävät kuutiot. Aulan alakaton päälle jäävään osaan saimmekin mukavasti säilytystilaa. Kutsumme tätä uutta kaappia ”piilokaapiksi”.
Aulatilan katonrajaan saatiin säilytystilaa




Laajan viistokaton maalaaminen oli työlästä. Korkeaan huoneeseen tarvittiin rakennustelineet, ja kattopalkkien ylä- ja alapuolella työskentely vaati akrobatiaa.
Halusimme säilyttää takaseinän sinisävyisen tapetin ja päätimme etsiä päätyseinään samaa materiaalia. Lopulta löysimme Decoprintin Breeze-malliston Kobe-nimisen tapetin Behangwebshopista, Alankomaista.
Vanhat parkettilattiat hiottiin ja lakattiin. Tämä oli ainoa työvaihe, johon otimme ulkopuolisen tekijän.
Viistokaton maalaus oli työläs vaihe







Suurin osa makuuhuoneen kalustuksesta, sekä tekstiilit että pienesineet, ovat edellisiin koteihimme ostettuja. Uutena hankimme ainoastaan lapekaton alle asennetun vaatekaappikokonaisuuden. Tilasimme sen naapurikunnasta Lumia-keittiöltä.
Huoneen sisustuksen viimeistelimme huonekasveilla ja taiteella. Meillä on paljon maalauksia ja savitöitä. Makuuhuoneen seinillä on sekä siskoni että edesmenneiden isäni ja isoäitini teoksia. Lisäksi kehyksissä on muutama itselle hankittu printti.




Tilaa jakavan seinän toisella puolella on lapsen makuuhuone. Niin ikään viiston katon alle ei mikä tahansa vaatekaappi mahdu, joten päädyimme tuunaamaan 1980-luvun lasivitriinistä vaatesäilytyskalusteen.
Irrotimme kaappien ovista lasit ja vetimet ja maalasimme ovet uudelleen. Lasiruutujen tilalle kiinnitimme rottinkiverkkoa. Lisäksi vaihdoimme oviin ja laatikostoihin messinginväriset nuppivetimet.




Teimme remontin tätä osuutta viikonloppuisin ja muutamina muina vapaapäivinä.
Kahden makuuhuoneen ja aulatilan remonttiin kului näin hieman alle neljä kuukautta.
Sen jälkeen sisustus on etsinyt paikkaansa. Haussa ovat vielä verhot pikkuikkunoihin sekä vaatekaapin eteen kattopalkkiin kiinnitettävä tai sitä köynnösmäisesti kiertävä valaisin.
Etsimme myös vanhoja puutikkaita, joiden avulla yltää oven päällä olevaan säilytystilaan. Tikkaat voisivat toimia myös kauniina sisustuselementtinä sekä vaatetelineenä.
Mitä maksoi?
Aikuisten makuuhuoneen remontissa pysyttiin käyttämään osittain olemassa olevia kierrätettyjä rakennusmateriaaleja. Parketin hiomista lukuun ottamatta työt tehtiin itse.
Puu-, lista- ja levytavara: 300 e
Tapetit ja maalit: 500 e
Parketin hionta: 900 e
Kalusteet: 2 200 e
Yhteensä: 3 900 e